Descrição
Descubra a excelência em um projeto de sobrado contemporâneo de 186.65m², distribuído em dois pavimentos com quatro quartos. Esta residência incorpora sofisticação e funcionalidade em cada detalhe, criando um ambiente perfeito para a vida moderna. O arquiteto concebeu os espaços para oferecer conforto, praticidade e uma estética visualmente impactante. A integração entre os ambientes é uma característica marcante, promovendo uma sensação de amplitude e fluidez. Além disso, a iluminação natural foi estrategicamente aproveitada para valorizar os materiais e criar uma atmosfera acolhedora.
Conceito e Distribuição Inteligente
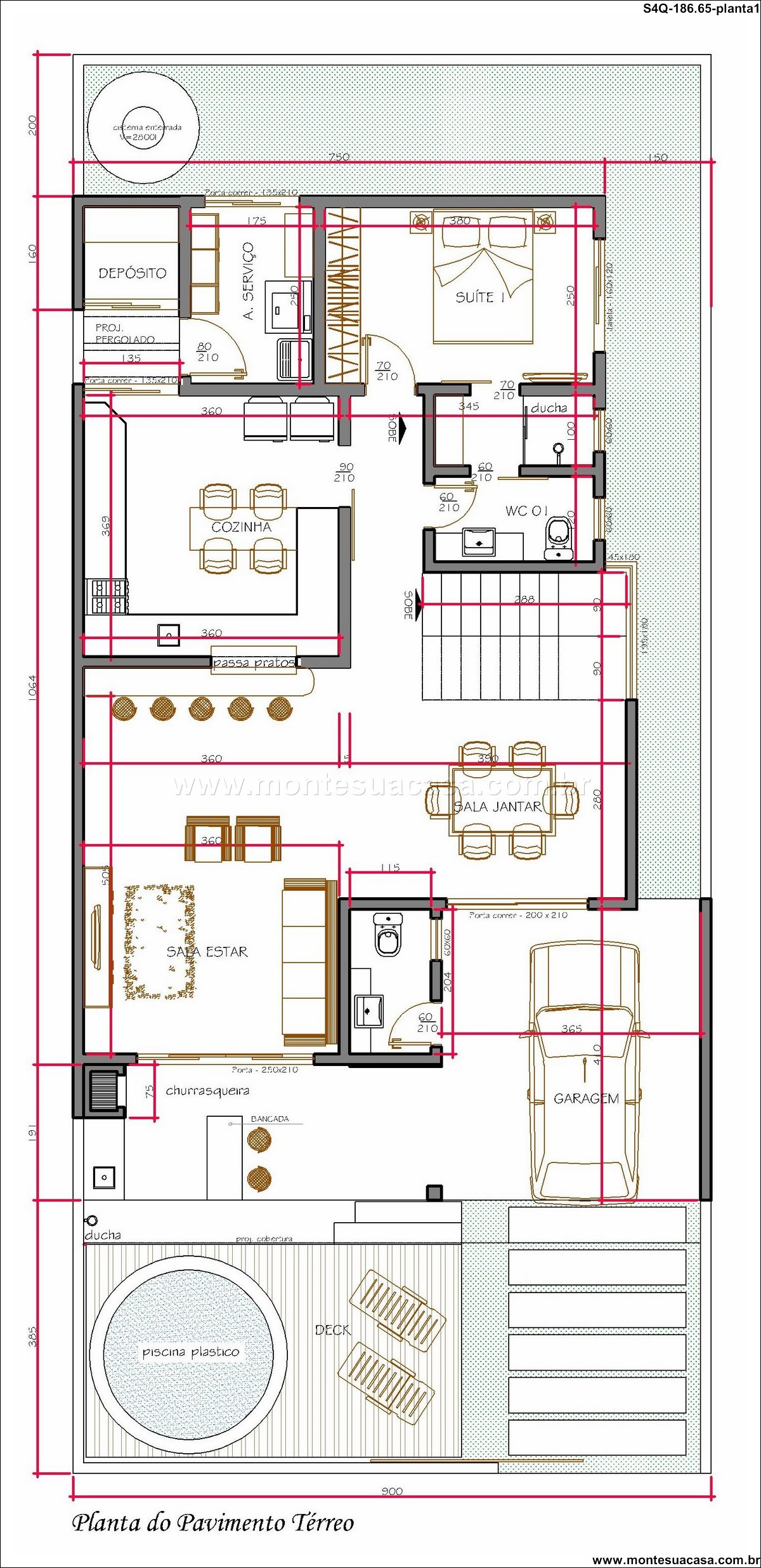
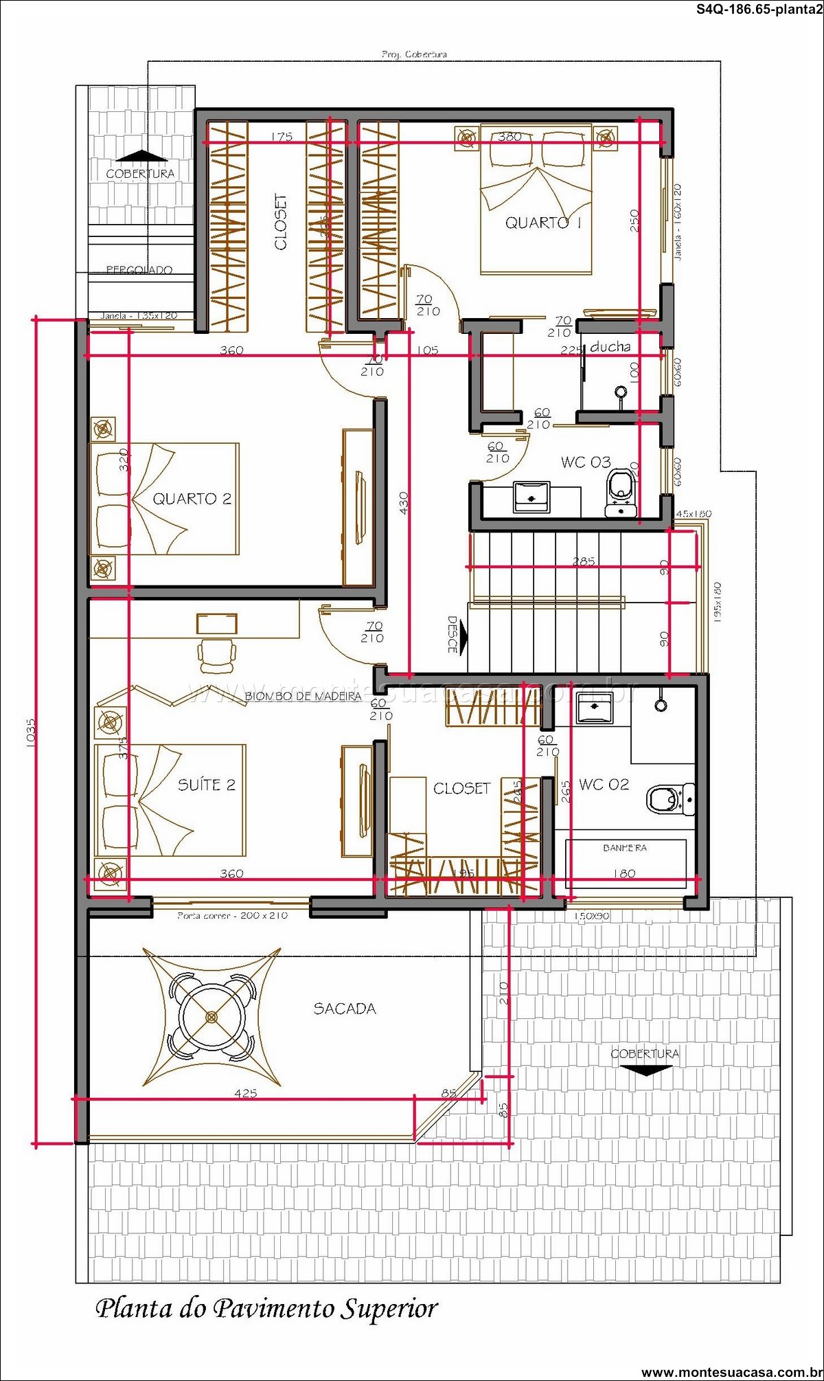
O projeto prioriza a integração entre a sala de estar, a sala de jantar e a cozinha no pavimento térreo, formando um grande ambiente social. Este layout é ideal para receber amigos e familiares, facilitando a interação entre todos. A área gourmet, perfeitamente incorporada a este conjunto, torna-se o coração da casa para momentos de descontração. O pavimento superior abriga a zona íntima, com quatro quartos incluindo suítes, garantindo privacidade e organização familiar. Dessa forma, a divisão entre áreas social e íntima é claramente definida.
Acabamentos e Materiais Selecionados
Os acabamentos foram meticulosamente escolhidos para garantir durabilidade e um visual atemporal. O piso em porcelanato de grande formato confere continuidade visual e facilidade na limpeza. Na cozinha, os armados planejados em madeira nobre e a ilha central com bancada em quartzito criam um espaço ao mesmo tempo funcional e elegante. Os banheiros seguem a mesma linguagem de qualidade, com revestimentos cerâmicos de alto padrão e metais cromados. Cada detalhe contribui para uma atmosfera de requinte e conforto em todos os cômodos.
Praticidade e Conforto no Dia a Dia
Este sobrado de quatro quartos oferece total praticidade para o dia a dia, com uma distribuição inteligente dos ambientes. A zona íntima, composta por suítes amplas, garante privacidade e tranquilidade para os moradores. Os dormitórios contam com armários embutidos que otimizam o espaço de armazenamento. A lavanderia, localizada em área de serviço bem organizada, assegura eficiência nas tarefas domésticas. Este é um lar que combina beleza estética com soluções inteligentes para uma vida familiar mais simples e agradável.
















Avaliações
Não há avaliações ainda.