Descrição
Arquitetura moderna com volumetria diferenciada
Este sobrado de 173,20m² apresenta uma composição marcada por volumes limpos, linhas horizontais e um equilíbrio entre superfícies planas e elementos marcantes, como o bloco frontal com floreiras contínuas. A fachada combina modernidade e acolhimento, utilizando variações de planos para criar profundidade visual. O grande beiral inclinado contrasta com o volume lateral mais alto, reforçando a estética contemporânea sem perder o caráter residencial.
Integração funcional no pavimento térreo
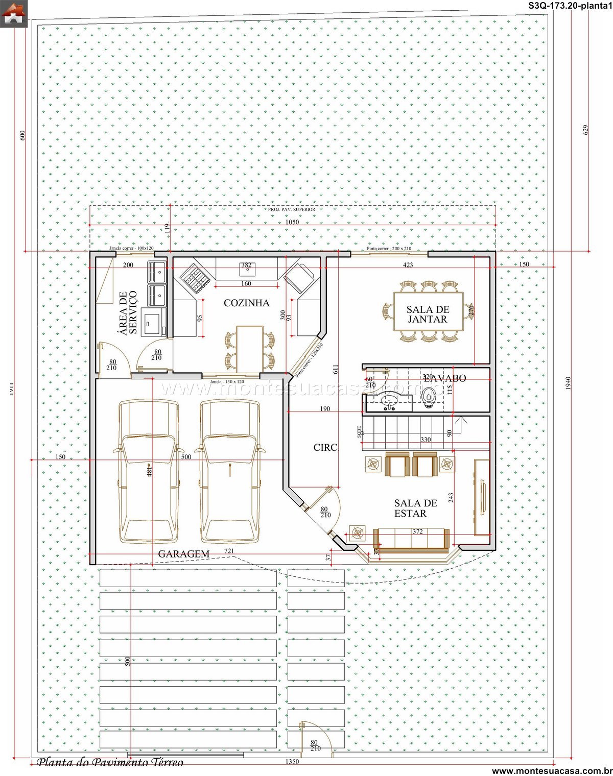
O pavimento térreo foi projetado para oferecer fluidez entre os ambientes sociais. A sala de estar frontal recebe ampla iluminação natural graças à grande janela em formato curvo, criando uma sensação imediata de amplitude. A circulação central conecta esse espaço à sala de jantar, posicionada estrategicamente para integrar-se tanto à cozinha quanto ao acesso ao quintal. Essa organização melhora o uso diário e facilita a comunicação entre os ambientes.
A cozinha, espaçosa e bem distribuída, possui acesso direto à área de serviço e ampla abertura para ventilação. A proximidade entre cozinha e sala de jantar melhora a rotina familiar, enquanto o lavabo complementa o conforto dos visitantes. A garagem coberta para dois carros oferece acesso protegido ao interior do sobrado.
Pavimento superior planejado para conforto familiar
No pavimento superior, a área íntima se destaca pela funcionalidade. O projeto conta com três quartos bem dimensionados. A suíte possui closet, banheiro confortável e acesso à sacada privativa. Essa sacada amplia a entrada de luz e cria um ambiente extra para relaxamento.
Os outros dois quartos compartilham um banheiro social e contam com excelente ventilação. O quarto frontal possui acesso direto à segunda sacada, garantindo integração visual com a fachada e valorizando o desenho do projeto.
Ambientes valorizados pela iluminação natural
O projeto aproveita aberturas amplas, esquadrias bem distribuídas e sacadas funcionais para maximizar a entrada de luz. Essa estratégia melhora o conforto térmico, reduz a necessidade de iluminação artificial e fortalece o conceito de sobrado moderno voltado para o bem-estar.
Distribuição equilibrada para rotina familiar
Com circulação eficiente, ambientes claros e integração coerente entre os pavimentos, este sobrado atende famílias que buscam um imóvel moderno, confortável e com excelente aproveitamento de espaços.












Avaliações
Não há avaliações ainda.