Descrição
Arquitetura térrea com composição moderna
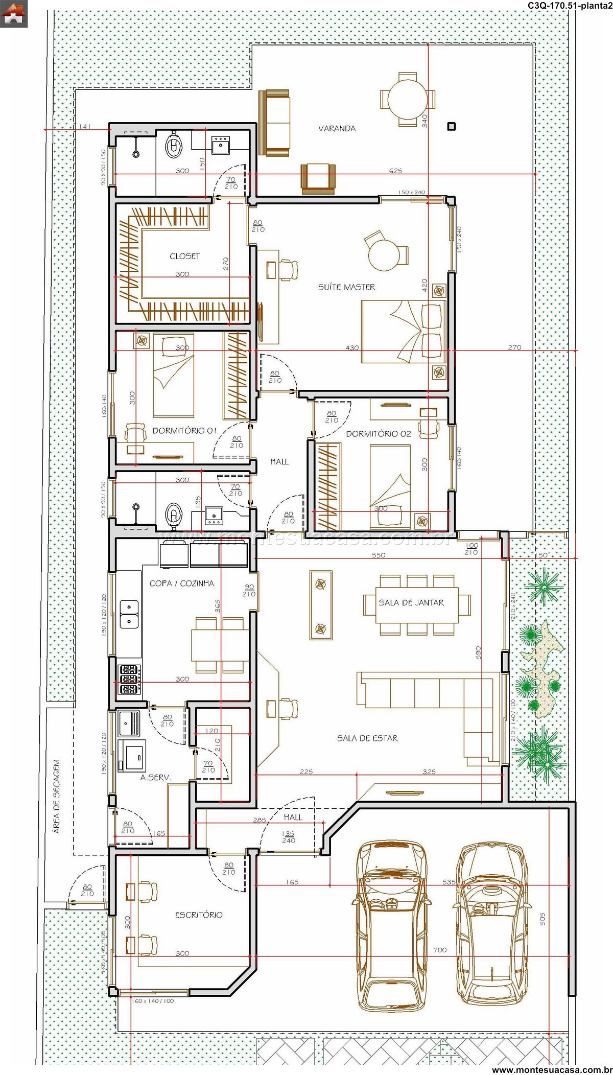
Esta residência térrea de 170.51m² apresenta uma proposta funcional, clara e objetiva. A composição utiliza formas retas, platibandas contínuas e um conjunto de volumes bem definidos, resultando em uma fachada moderna e equilibrada. A garagem para dois carros integra o corpo principal da casa e reforça a sensação de solidez. O desenho privilegia linhas limpas e aproveita o terreno de maneira eficiente.
Integração total entre sala de estar, sala de jantar e varanda
A planta traz um espaço social amplo e contínuo. A sala de estar conecta-se diretamente à sala de jantar, criando um ambiente fluido. Grandes aberturas garantem luminosidade e ventilação constante. A varanda, estrategicamente posicionada nos fundos, amplia a área social e possibilita momentos de convivência ao ar livre. O layout valoriza a circulação simples, permitindo que a casa funcione de forma prática no dia a dia.
Cozinha funcional com acesso imediato à área de serviço
A cozinha oferece praticidade total. A composição linear facilita o preparo das refeições, enquanto o acesso direto à área de serviço aumenta a eficiência. A janela voltada para a lateral favorece entrada de luz natural. Esse setor funciona sem desperdício de espaço e atende as necessidades de uma família que busca rotina organizada.
Setor íntimo com 3 dormitórios bem distribuídos
O projeto inclui três dormitórios funcionais. A suíte master destaca-se pelo closet e pela integração com a varanda posterior, criando um refúgio confortável para o casal. Os outros dois dormitórios utilizam os espaços de maneira otimizada. A circulação é curta e direta, reforçando o bom aproveitamento da metragem. O conjunto oferece privacidade e disposição coerente.
Escritório planejado na frente da casa
A inclusão de um escritório logo na entrada atende quem deseja trabalhar em casa. A posição estratégica evita interferência nas rotinas internas e melhora o uso profissional do imóvel. O ambiente possui iluminação favorável e área suficiente para mobiliário adequado.
Implantação que valoriza o terreno e o paisagismo
O projeto foi implantado de modo a criar uma área frontal bem resolvida, com acesso direto à garagem e paisagismo leve. A parte posterior mantém privacidade e oferece ambiente externo agradável. A volumetria geral dá presença arquitetônica, sem excessos




























Avaliações
Não há avaliações ainda.