Descrição
Casa Térrea Compacta de 30m² com 1 Quarto – Projeto Funcional e Aconchegante
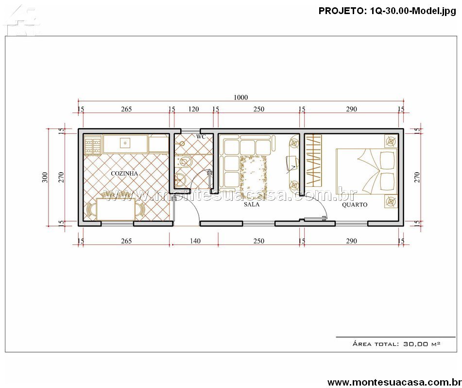
A casa térrea de 30m² foi projetada para oferecer praticidade e conforto em um espaço reduzido, sem abrir mão de um bom design e funcionalidade. Ideal para solteiros, casais ou pequenas famílias, o projeto prioriza a otimização dos ambientes e a integração entre os espaços sociais.
Distribuição Inteligente dos Ambientes
Com uma planta retangular bem organizada, o projeto conta com cozinha, sala, banheiro e um quarto. A cozinha é espaçosa o suficiente para acomodar uma mesa de refeições e possui circulação fluida, facilitando o dia a dia. A sala integrada cria uma sensação de amplitude e conecta-se naturalmente ao dormitório, proporcionando uma rotina prática e acolhedora.
Conforto e Funcionalidade
O quarto foi pensado para receber uma cama de casal e um armário, garantindo conforto e privacidade. O banheiro, estrategicamente localizado entre os ambientes, é compacto, mas bem planejado, aproveitando cada centímetro de forma eficiente.
A área total de 30m² oferece excelente aproveitamento interno, tornando o projeto ideal para terrenos pequenos ou residências de apoio em sítios e áreas de lazer.
Estilo e Fachada
A fachada apresenta linhas simples e modernas, com telhado cerâmico aparente e janelas amplas, que garantem boa iluminação natural. O destaque da frente é o detalhe em tom neutro ao redor das janelas, que confere elegância e harmonia ao conjunto. O estilo é atemporal e se adapta facilmente a diferentes regiões do país.
Versatilidade e Economia
Essa planta é uma excelente opção para quem busca baixo custo de construção, rapidez na execução e manutenção simplificada. Pode ser utilizada como casa de campo, edícula, kitnet ou moradia principal, dependendo da necessidade do morador.
Além disso, o formato compacto permite a construção em módulos, possibilitando ampliações futuras sem comprometer o design original.
Conclusão
O projeto de casa 1 quarto 30m² é a escolha perfeita para quem deseja construir um lar confortável, funcional e econômico. Com ambientes bem distribuídos e fachada charmosa, ele combina beleza, praticidade e eficiência em um único conceito arquitetônico.








Avaliações
Não há avaliações ainda.