Descrição
Visão Geral do Projeto
Este sobrado de 158,14m² foi desenvolvido para famílias que buscam conforto, funcionalidade e integração entre os ambientes. A planta prioriza circulação fluida, excelente aproveitamento dos espaços e ventilação natural em todos os cômodos. O pavimento térreo reúne as áreas sociais e uma suíte adicional, enquanto o pavimento superior concentra duas suítes amplas conectadas a uma charmosa sacada frontal.
Pavimento Térreo Integrado
A entrada conduz a uma sala ampla, pensada para comportar diferentes composições de mobiliário sem comprometer a circulação. A cozinha integrada reforça o conceito de convivência, permitindo preparo de refeições com interação direta com a sala de jantar. O espaço ficou ainda mais versátil com a bancada em “L”, ideal para refeições rápidas ou apoio durante eventos familiares.
Ainda no térreo, a suíte 3 oferece privacidade e praticidade, sendo excelente para hóspedes ou para quem deseja um dormitório acessível sem escadas. O conjunto se completa com o espaço da varanda frontal, perfeito para criar um ponto de descanso e contemplação. A garagem coberta, integrada ao espaço gourmet, valoriza o uso externo e permite recepções protegidas em dias de chuva.
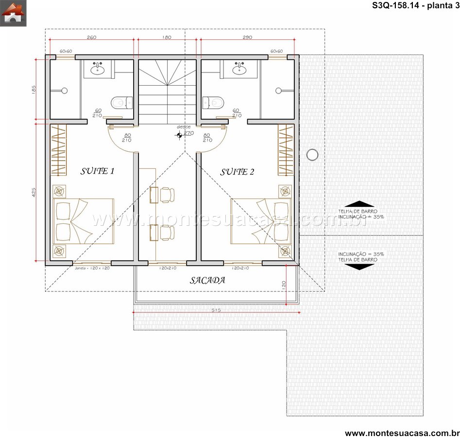
Pavimento Superior com Duas Suítes
O pavimento superior apresenta duas suítes generosas. Cada dormitório conta com banheiro privativo, proporcionando conforto diário aos moradores. Entre elas, a circulação central dá acesso à sacada frontal, que amplia a luminosidade da área íntima e cria um ponto de respiro visual. A sacada funciona também como extensão natural das duas suítes, reforçando a sensação de amplitude.
Conforto, Funcionalidade e Estética
A fachada combina linhas simples com detalhes contemporâneos, mantendo um estilo elegante e atemporal. A cobertura bem distribuída garante excelente desempenho térmico, enquanto as grandes aberturas favorecem iluminação natural. O conjunto resulta em um sobrado equilibrado, eficiente e confortável, adequado a diferentes tipos de terrenos urbanos.















Avaliações
Não há avaliações ainda.