Descrição
Projeto de Sobrado com 3 Quartos e 141,96m²
Este elegante sobrado de 141,96m² combina sofisticação, conforto e funcionalidade em um projeto moderno que se destaca pelo equilíbrio entre estética e praticidade. A fachada valoriza linhas retas e volumes bem definidos, com destaque para o uso de revestimentos em pedra natural e telhado de quatro águas, proporcionando um visual contemporâneo e imponente. O design privilegia a iluminação natural e a integração dos ambientes, criando uma residência ideal para famílias que buscam um lar acolhedor e estiloso.
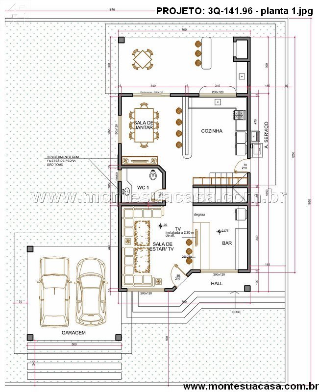
O térreo foi planejado para oferecer total integração entre os espaços sociais. A sala de estar e a sala de jantar conectam-se de forma fluida, criando um ambiente amplo e confortável para o convívio familiar. O bar localizado junto ao hall de entrada é um charme à parte, perfeito para recepcionar amigos com elegância. A cozinha, espaçosa e funcional, se abre para a área externa com churrasqueira, permitindo momentos de lazer e refeições ao ar livre. Ainda no pavimento térreo, há um banheiro social e uma garagem coberta para dois carros, com acesso direto à entrada principal.
No andar superior, o destaque fica por conta da suíte master com closet e sacada privativa, garantindo privacidade e conforto aos moradores. Os outros dois quartos também possuem sacadas e dividem um banheiro completo, ideal para uso familiar. Há ainda um espaço reservado para escritório, perfeito para quem trabalha em casa ou precisa de um ambiente tranquilo para estudos.
O projeto valoriza a ventilação cruzada, o aproveitamento da luz natural e o equilíbrio entre áreas internas e externas. A ampla varanda nos fundos oferece um espaço de convivência com vista para o jardim, reforçando o conceito de integração entre o interior e o exterior da casa.
Este sobrado é uma excelente escolha para terrenos a partir de 10 metros de frente, sendo ideal para famílias que desejam conforto aliado a um design moderno e funcional.














Avaliações
Não há avaliações ainda.