Descrição
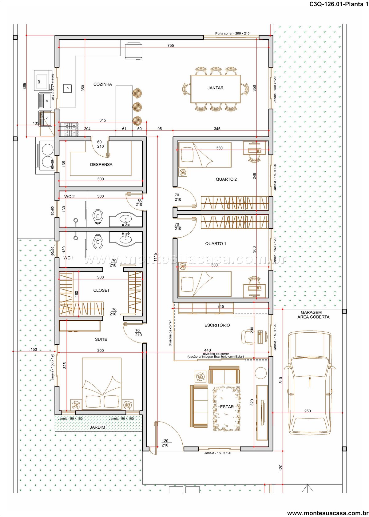
Este projeto de casa de 126.01 m² foi concebido para um terreno em aclive, demonstrando como a topografia desafiadora pode ser transformada em uma vantagem arquitetônica. A residência, com seus três quartos, distribui-se de forma inteligente pelo terreno, criando volumes modernos e integrando-se perfeitamente à paisagem natural. A arquitetura aproveita o desnível para garantir privacidade, ventilação cruzada e iluminação natural abundante em todos os ambientes, resultando em uma casa única e cheia de personalidade.
A implantação no aclive permitiu a criação de uma planta térrea muito bem resolvida. O projeto integra de maneira fluida a área social, que se abre para um amplo espaço de convivência ao ar livre. A varanda e a área de churrasco tornam-se uma extensão natural da sala, perfeita para entretenimento e momentos em família. A circulação entre os cômodos foi cuidadosamente planejada para oferecer praticidade no dia a dia, com setores bem definidos para atividades sociais e privativas.
Os três quartos garantem o conforto da família, sendo a suíte master um verdadeiro refúgio de tranquilidade. Os renderings 3D ilustram ambientes internos aconchegantes, com acabamentos de alta qualidade e um design de interiores que prioriza o bem-estar. A linguagem arquitetônica contemporânea, com linhas retas e grandes vãos de vidro, estabelece uma conexão visual constante com o exterior, trazendo a natureza para dentro de casa.
A fachada se destaca pela composição de volumes puros e texturas interessantes, que dialogam com o terreno. Este projeto prova que é possível criar uma residência moderna, funcional e cheia de estilo, mesmo em um lote com declive. A casa oferece uma experiência de morar única, onde cada espaço foi pensado para aproveitar ao máximo as potencialidades do terreno e proporcionar um lifestyle sofisticado e integrado ao ambiente.














Avaliações
Não há avaliações ainda.