Descrição
Casa térrea funcional e acolhedora
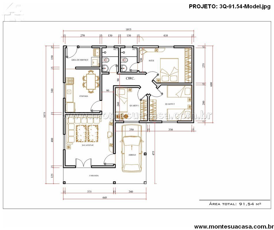
Este projeto de casa térrea com 91,54 m² foi desenvolvido para quem busca praticidade, conforto e excelente aproveitamento de espaço. O layout inteligente integra os ambientes de convivência de forma fluida, proporcionando uma rotina prática e agradável para toda a família.
Distribuição inteligente dos ambientes
A planta valoriza o convívio e a privacidade ao mesmo tempo. A entrada principal conduz à sala de estar ampla e bem iluminada, com acesso direto à cozinha integrada, que facilita o dia a dia e favorece a interação entre os moradores. A área de serviço, anexa à cozinha, garante funcionalidade e otimiza o uso do espaço.
Na parte íntima, o projeto conta com três dormitórios, sendo uma suíte confortável, ideal para o casal, e dois quartos adicionais que podem ser utilizados como dormitórios, escritório ou quarto de hóspedes. Há ainda dois banheiros completos, estrategicamente posicionados para atender toda a família com praticidade.
Conforto, luminosidade e ventilação natural
O projeto foi elaborado para proporcionar ambientes arejados e bem iluminados. As aberturas amplas favorecem a ventilação cruzada, reduzindo a necessidade de climatização artificial e promovendo bem-estar em todas as estações do ano.
Garagem e varanda integradas
A garagem coberta, localizada na parte frontal, comporta um veículo e conecta-se diretamente à sala de estar, garantindo praticidade no dia a dia. A varanda em frente à sala cria um espaço agradável para momentos de descanso ou recepção de visitantes.
Ideal para terrenos compactos
Com dimensões otimizadas e formato em “L”, esta casa adapta-se facilmente a lotes urbanos a partir de 10 metros de frente, mantendo recuos laterais e excelente aproveitamento interno. É uma solução moderna, funcional e acessível, ideal para famílias de até cinco pessoas.
Design moderno e construção eficiente
O equilíbrio entre estética e funcionalidade é o ponto forte deste projeto. O visual moderno das fachadas pode ser facilmente adaptado com diferentes acabamentos, permitindo personalização conforme o gosto e o orçamento do cliente.








Avaliações
Não há avaliações ainda.