Descrição
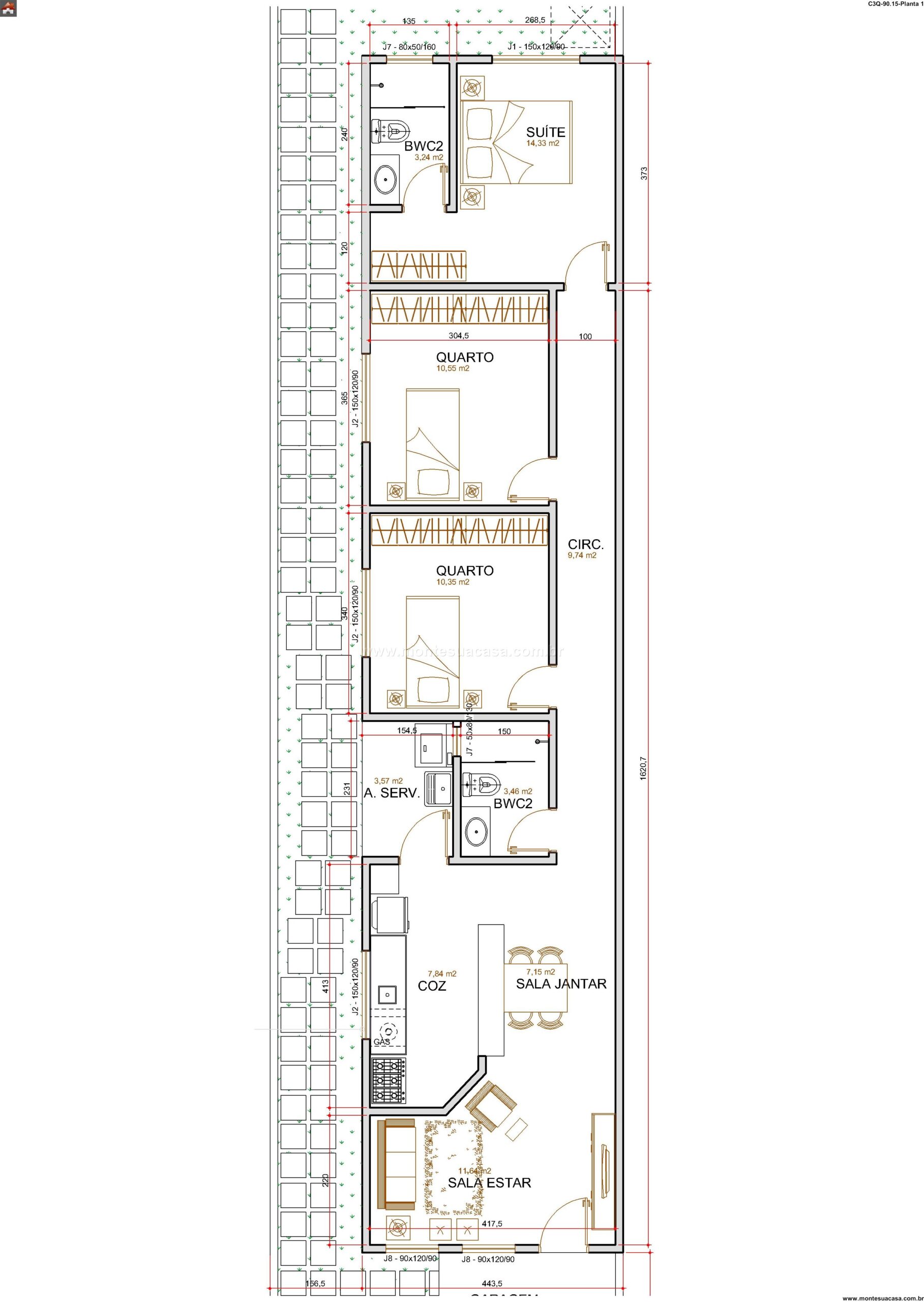
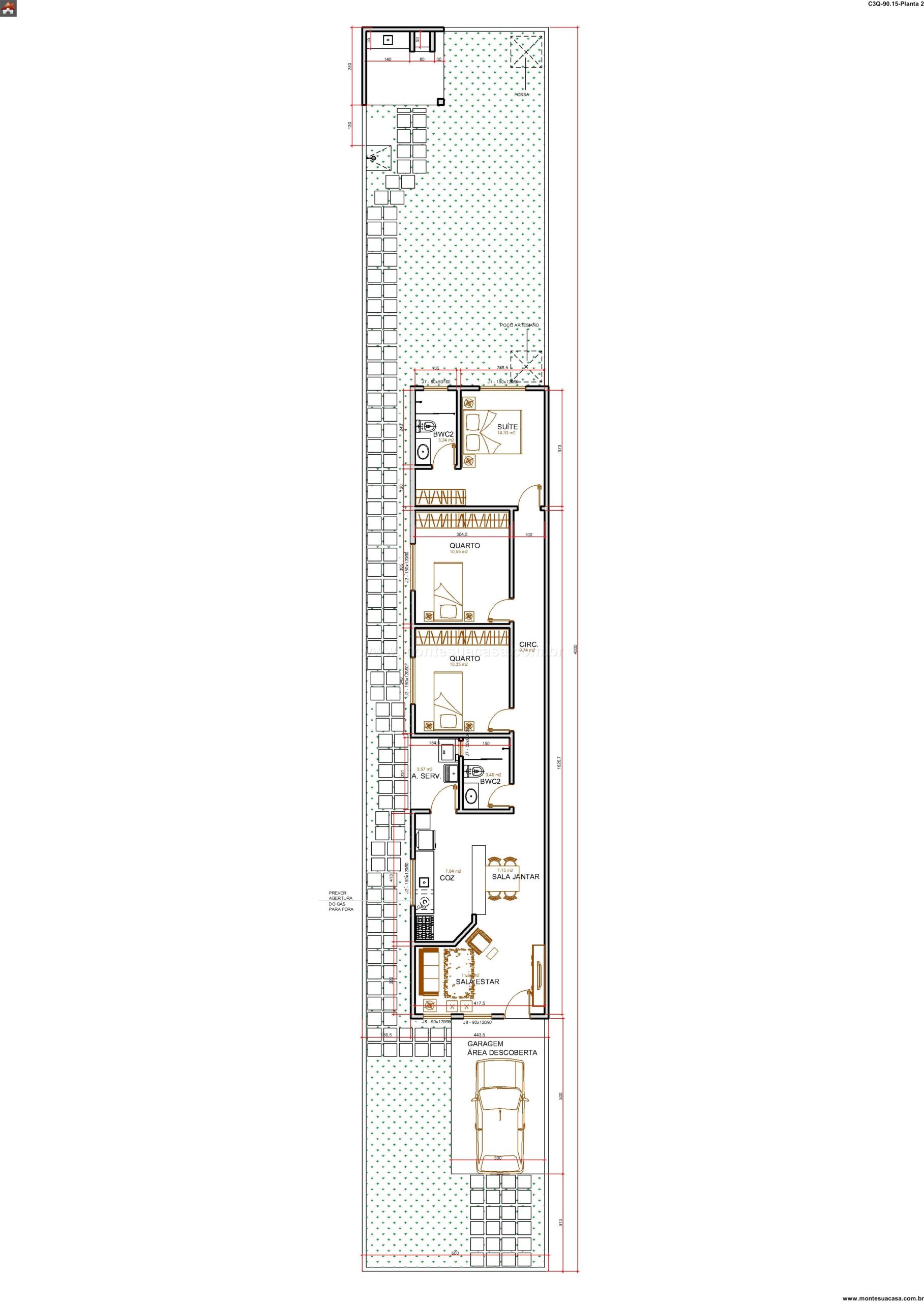
Explore este projeto arquitetônico de casa térrea que demonstra excelente aproveitamento de espaço em 90.15 metros quadrados. Desenvolvido para oferecer conforto e praticidade, este layout de três quartos apresenta uma distribuição inteligente que prioriza a qualidade de vida. A planta proporciona um ambiente familiar acolhedor e funcional, perfeito para quem busca otimização e bem-estar em um único pavimento.
Distribuição Inteligente dos Ambientes
A circulação bem resolvida de 8.24m² conecta harmonicamente todos os cômodos desta casa térrea. Dois quartos com 10.59m² cada oferecem dimensões generosas, enquanto um terceiro quarto de 9.57m² proporciona versatilidade de uso. O projeto inclui dois banheiros, sendo um suite privativo para o quarto principal, assegurando comodidade e privacidade para os moradores. A área de serviço dedicada garante organização no dia a dia.
Integração entre Espaços Sociais
A sala de estar integra-se perfeitamente à sala de jantar de 7.19m², criando um amplo ambiente de convívio familiar. Esta configuração promove interação social enquanto mantém identidade visual coesa. A cozinha de 7.84m², adjacente à área social, facilita o serviço durante reuniões e refeições. Esta integração valoriza a casa térrea, tornando-a ideal para receber visitas e para o cotidiano da família.
Conforto e Funcionalidade nos Detalhes
Cada ambiente foi meticulosamente planejado para maximizar conforto e eficiência nesta residência térrea. Os quartos espaçosos acomodam facilmente camas de casal e mobiliário adicional. A circulação central assegura mobilidade fluida entre os cômodos. O projeto incorpora soluções inteligentes que transformam esta casa num refúgio familiar moderno, onde cada metro quadrado foi cuidadosamente considerado para melhor atender às necessidades contemporâneas de moradia.















Avaliações
Não há avaliações ainda.