Descrição
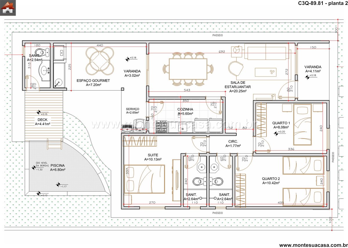
Este projeto arquitetônico contemporâneo apresenta uma casa térnea inteligente com 89.81 metros quadrados de área total. A planta foi meticulosamente planejada para oferecer conforto, praticidade e um estilo de vida moderno. Com uma distribuição eficiente dos ambientes, a residência prioriza a integração espacial e a iluminação natural. Cada metro quadrado foi otimizado para criar uma sensação de amplitude e aconchego. A fachada combina elementos clean com toques personalizados. O resultado final é uma moradia que atende perfeitamente às necessidades de uma família.
A área social da casa foi concebida como um grande ambiente integrado. Este espaço une a sala de estar, a sala de jantar e a varanda gourmet em um único e fluido ambiente. Dessa forma, a residência se torna ideal para receber amigos e familiares. A varanda gourmet, com seus 16.26m², funciona como uma extensão da área interna. Ela oferece um local perfeito para refeições informais e momentos de descontração. As aberturas amplas garantem uma transição suave entre o interior e o exterior.
A zona íntima da residência abriga três quartos espaçosos, incluindo um suíte master. O quarto principal oferece privacidade e conforto para os moradores. Os demais quartos são versáteis e podem servir como dormitórios ou home office. O projeto também inclui uma bancada de serviços prática e funcional. Esta área auxiliar organiza as tarefas domésticas do dia a dia. O banheiro social atende tanto a área de visitas quanto os quartos secundários com total comodidade.
A circulação interna foi pensada para proporcionar fácil acesso a todos os cômodos. Os materiais propostos incluem pisos cerâmicos, revestimentos de fácil manutenção e metais nobres. O projeto elétrico e hidráulico segue os mais rigorosos padrões de qualidade e segurança. A iluminação artificial complementa a abundante luz natural durante a noite. A ventilação cruzada mantém o ambiente sempre fresco e agradável. Este projeto é a base para a construção de um lar cheio de personalidade e bem-estar.














Avaliações
Não há avaliações ainda.