Descrição
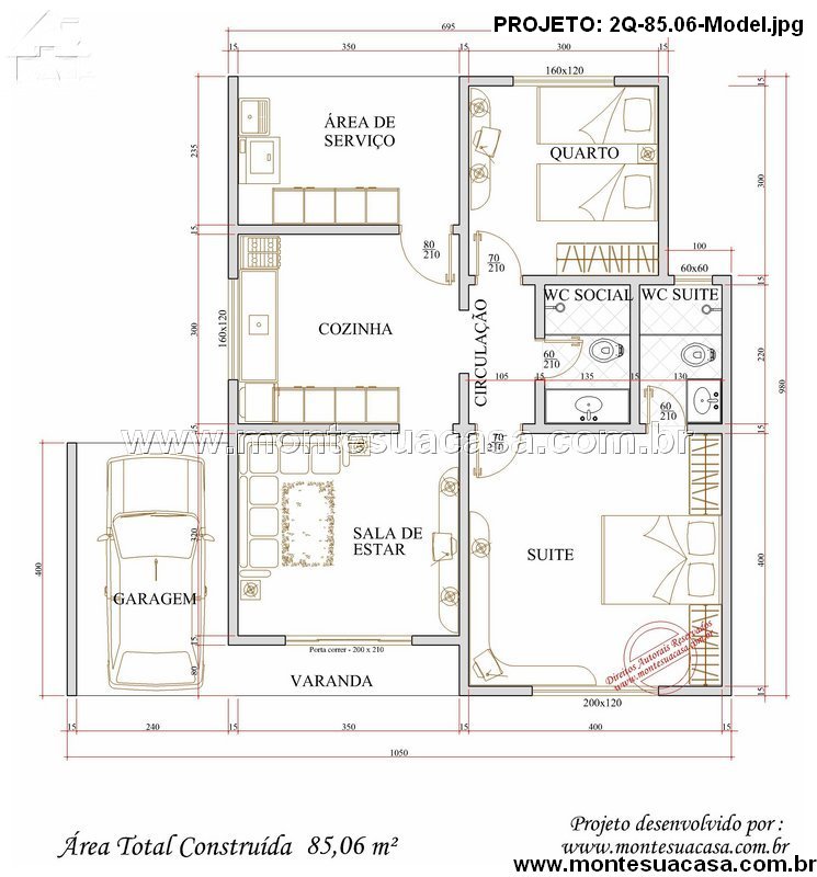
Este projeto de casa térrea com 85,06m² apresenta um design contemporâneo e funcional, pensado para oferecer conforto, praticidade e elegância. A planta foi cuidadosamente elaborada para atender famílias que valorizam o equilíbrio entre áreas sociais integradas e ambientes íntimos bem definidos.
Logo na entrada, destaca-se uma ampla varanda, ideal para receber visitas ou relaxar ao final do dia. Ela se conecta diretamente à sala de estar, um espaço aconchegante que integra sofisticação e conforto, tornando-se o coração da casa. O ambiente é iluminado por grandes aberturas, que proporcionam ventilação natural e luminosidade em abundância.
A cozinha possui disposição linear, o que otimiza o uso do espaço e facilita a circulação. Sua proximidade com a área de serviço garante praticidade no cotidiano, mantendo a organização e funcionalidade dos ambientes.
Na área íntima, o projeto conta com dois dormitórios, sendo um deles uma suíte espaçosa, que oferece privacidade e conforto ao casal. O segundo quarto é perfeito para filhos, hóspedes ou até mesmo para uso como escritório. O banheiro social, estrategicamente localizado, atende ao segundo dormitório e às visitas de forma prática e discreta.
A garagem coberta acomoda um carro e complementa a fachada moderna, marcada por linhas retas e proporções equilibradas. A distribuição inteligente dos cômodos garante o melhor aproveitamento do terreno, permitindo sua implantação em lotes a partir de 10,5 metros de frente.
Com excelente ventilação cruzada, iluminação natural e estética elegante, este projeto oferece baixo custo de construção e manutenção, sem abrir mão da beleza e do conforto. É a escolha ideal para quem busca uma casa térrea moderna, acessível e perfeita para o estilo de vida familiar.







Avaliações
Não há avaliações ainda.