Descrição
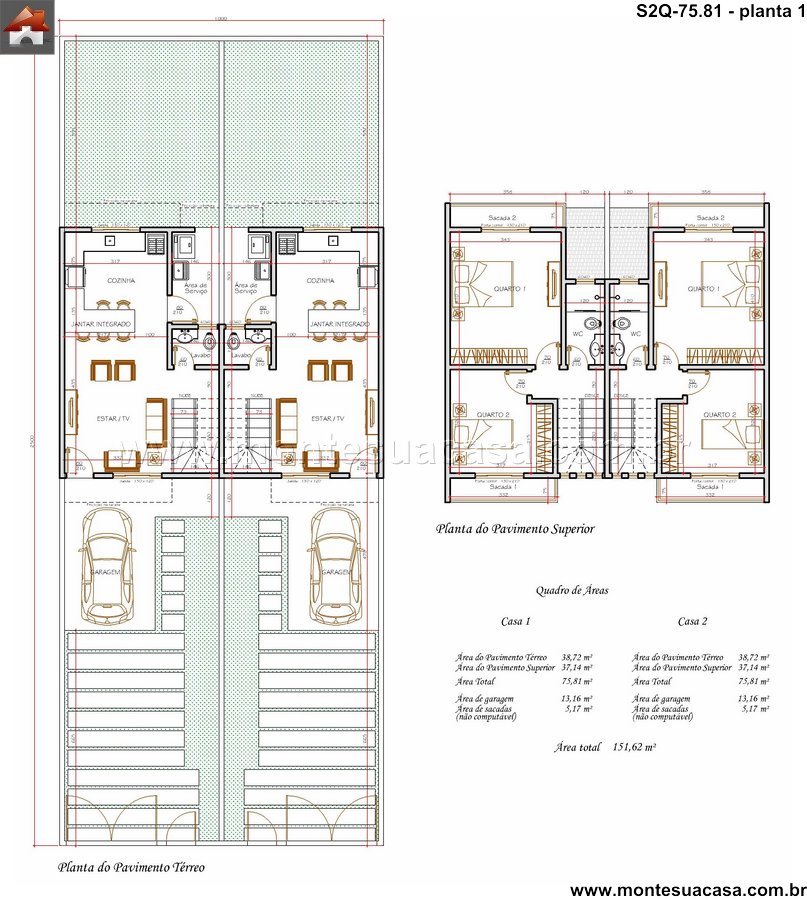
Este sobrado geminado de 75,81 m² foi desenvolvido para quem precisa de funcionalidade sem abrir mão de uma fachada marcante. A distribuição inteligente dos ambientes evita desperdício de área e garante praticidade no dia a dia. O pavimento térreo integra estar, jantar e cozinha, criando um fluxo contínuo que favorece a convivência. Além disso, cada unidade oferece garagem e um pequeno quintal nos fundos, garantindo privacidade e área externa utilizável.
Integração dos Ambientes no Térreo
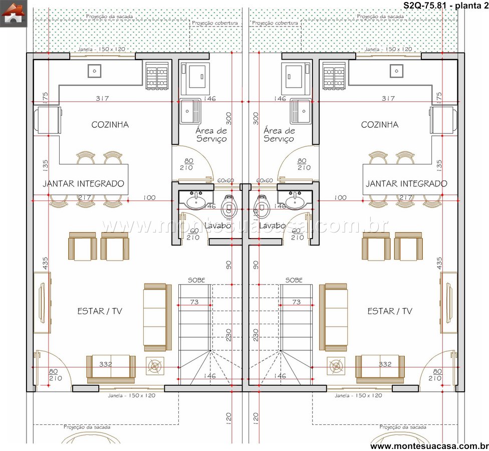
O térreo trabalha com um layout direto e eficiente. A sala de estar fica posicionada na frente, permitindo ventilação cruzada através da grande janela frontal. A área de jantar se conecta naturalmente à cozinha, criando um ambiente único que melhora a circulação e facilita o uso diário. O lavabo estrategicamente posicionado entre as unidades reduz custos hidráulicos, melhora a manutenção e organiza a planta. A área de serviço fica aos fundos, protegida da área social e com acesso rápido ao quintal.
Distribuição Inteligente no Pavimento Superior
No pavimento superior, o projeto oferece dois quartos bem dimensionados, ambos com acesso a sacadas independentes. Esse recurso aumenta iluminação natural, amplia a ventilação e melhora a sensação de amplitude dos ambientes. O banheiro social fica centralizado e atende aos dois dormitórios com máxima economia de instalações. A circulação é limpa e objetiva, exatamente como deveria ser em projetos compactos.
Fachada e Destaques Arquitetônicos
A fachada trabalha com volumes retos e uma composição simétrica forte. O bloco central utiliza revestimento diferenciado para criar profundidade visual e destacar o conjunto. As esquadrias verticais alongadas reforçam a sensação de altura e valorizam o projeto. As sacadas com guarda-corpo em vidro trazem leveza e modernidade ao conjunto. O resultado é um sobrado compacto, mas com presença arquitetônica que supera sua metragem.
Adequação e Implantação
Este projeto funciona muito bem em terrenos estreitos e pode ser utilizado tanto individualmente quanto em série, como mostrado nas imagens. A implantação frontal libera espaço para veículos e garante afastamento suficiente para conforto e estética. O quintal posterior, mesmo compacto, permite criar uma área íntima funcional para lazer ou pequenos jardins.















Avaliações
Não há avaliações ainda.