Descrição
Um Conceito Moderno de Morar
Este projeto de sobrado moderno, com 361.16m² de área construída, redefine o conceito de lar contemporâneo. A fachada imponente e as linhas arrojadas criam uma identidade visual única. Além disso, os materiais selecionados conferem durabilidade e um acabamento de alto padrão. A planta inteligente organiza os ambientes de forma harmoniosa, priorizando a funcionalidade. Cada detalhe foi meticulosamente planejado para oferecer o máximo em conforto e praticidade. A circulação fluida entre os cômodos é um dos grandes diferenciais deste projeto.
Integração e Convívio Social
Os ambientes sociais foram estrategicamente integrados para potencializar a vida em família e o entretenimento. A sala de estar ampla conecta-se perfeitamente com a sala de jantar e a cozinha, criando um grande espaço de convívio. A área gourmet, anexa à varanda, oferece o cenário ideal para receber amigos e familiares. Dessa forma, as reuniões tornam-se momentos ainda mais especiais. A varanda gourmet se estende para o deck, ampliando visualmente o ambiente e integrando a casa ao ar livre.
Privacidade e Produtividade
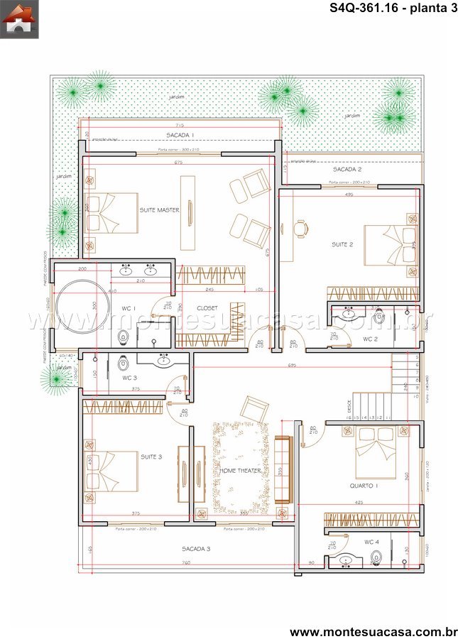
O projeto valoriza a privacidade dos moradores, localizando os quatro quartos em uma área mais reservada. O escritório independente proporciona um ambiente silencioso e propício para o trabalho ou estudos. Os dormitórios são amplos e cheios de luz natural, garantindo bem-estar. A área de serviço, com lavanderia e despensa, foi pensada para a máxima eficiência nas tarefas domésticas. Assim, a rotina da casa flui com organização e praticidade, separando perfeitamente os momentos de descanso das áreas de serviço.
Lazer e Conforto ao Ar Livre
O deck e a varanda são extensões naturais da sala, perfeitos para relaxar e apreciar momentos de tranquilidade. Esses espaços prometem ser o palco para cafés da manhã ensolarados e agradáveis tardes de conversa. A garagem garante comodidade e segurança para os veículos da família. A integração entre os ambientes internos e externos é uma característica marcante da arquitetura proposta. Por fim, este sobrado é a materialização de um estilo de vida moderno, dinâmico e repleto de conforto.
















Avaliações
Não há avaliações ainda.