Descrição
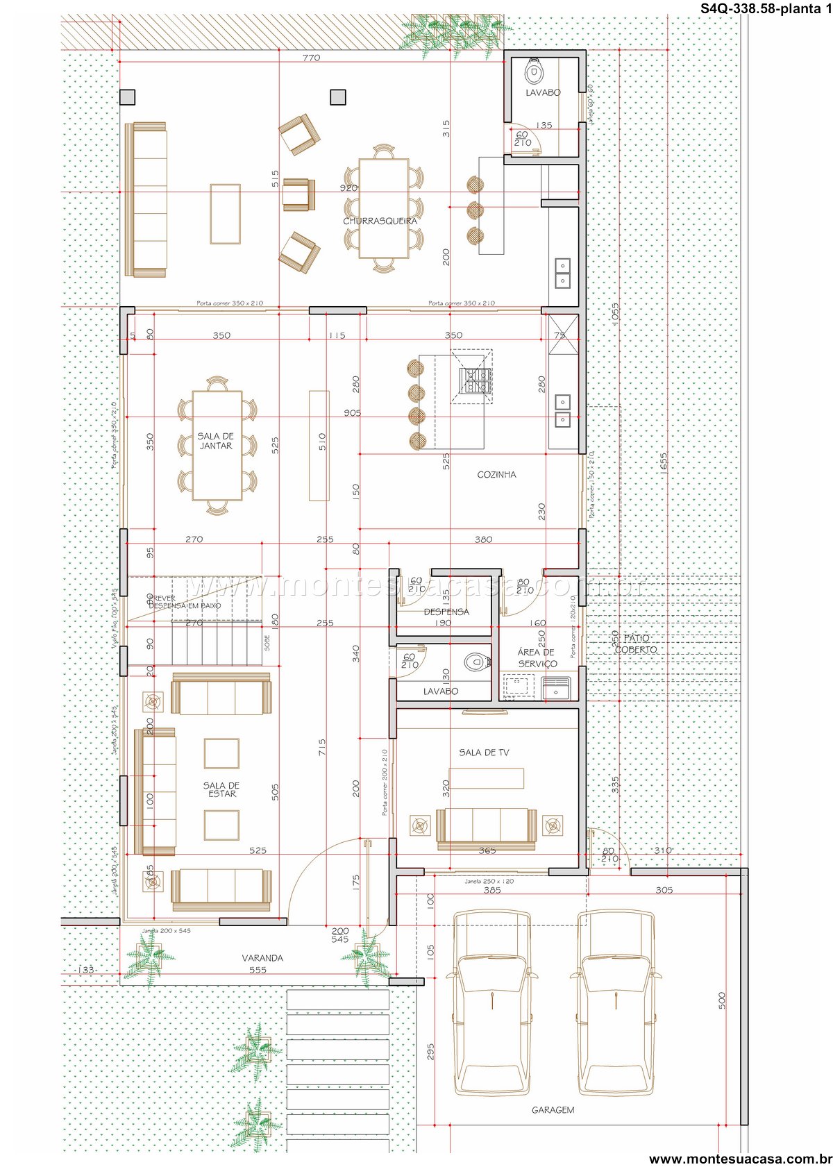
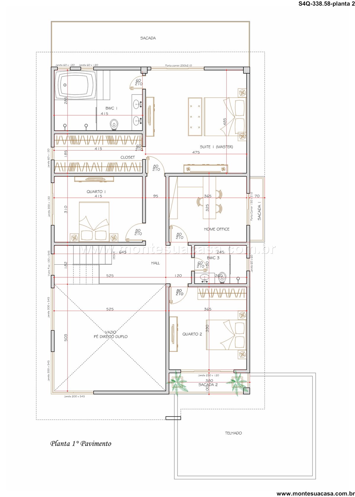
Este projeto arquitetônico de um sobrado com 338.58 m² materializa o conceito de moradia luxuosa e familiar em dois pavimentos. A planta é meticulosamente planejada para oferecer conforto, privacidade e uma fluidez excepcional entre os ambientes. A fachada, revelada nas imagens 3D, sugere uma linguagem arquitetônica contemporânea, com linhas clean e volumes bem definidos que conferem personalidade à construção.
Distribuição Inteligente dos Ambientes
A residência se destaca pela generosa área privativa, acomodando confortavelmente quatro quartos. A suíte master é um refúgio de tranquilidade, oferecendo um espaço exclusivo e amplo para os moradores. Os demais quartos, todos com dimensões padronizadas, garantem conforto e versatilidade, podendo servir como dormitórios, home office ou espaços de lazer. A integração entre a área gourmet, a sala de estar e a sacada cria o cenário perfeito para receber amigos e familiares, promovendo convívio e entretenimento.
Conexão com o Exterior e Lazer
A sacada representa uma extensão valiosa da área social, uma transição suave entre o interior e o exterior. Este espaço é ideal para momentos de descontração ao ar livre, pequenas refeições ou simplesmente para apreciar o entorno. A área gourmet, estrategicamente posicionada, está pronta para facilitar o serviço e o entretenimento, tornando-se o coração das reuniões sociais. A circulação entre os ambientes foi cuidadosamente estudada para garantir praticidade no dia a dia e um senso de continuidade espacial.
Praticidade e Conforto no Dia a Dia
Além dos espaços principais, o projeto atribui grande importância à funcionalidade. A previsão de uma área de serviço bem dimensionada assegura a organização das tarefas domésticas. A planta também demonstra uma clara hierarquia de espaços, separando as áreas de convívio social dos setores íntimos, o que garante privacidade e sossego para todos os ocupantes. Cada detalhe foi pensado para criar uma experiência de morar completa e sofisticada, resultando em um lar que combina estética moderna com absoluta funcionalidade para uma família contemporânea.














Avaliações
Não há avaliações ainda.