Descrição
Este sobrado contemporâneo de 327.97 m² redefine o conceito de moradia moderna, combinando sofisticação arquitetônica com funcionalidade familiar. A fachada imponente estabelece imediatamente um caráter distintivo, enquanto os volumes bem definidos criam um diálogo visual dinâmico. A planta inteligente distribui os ambientes em dois pavimentos, otimizando o fluxo e garantindo privacidade aos moradores. Cada detalhe foi cuidadosamente considerado para criar uma experiência residencial completa e harmoniosa.
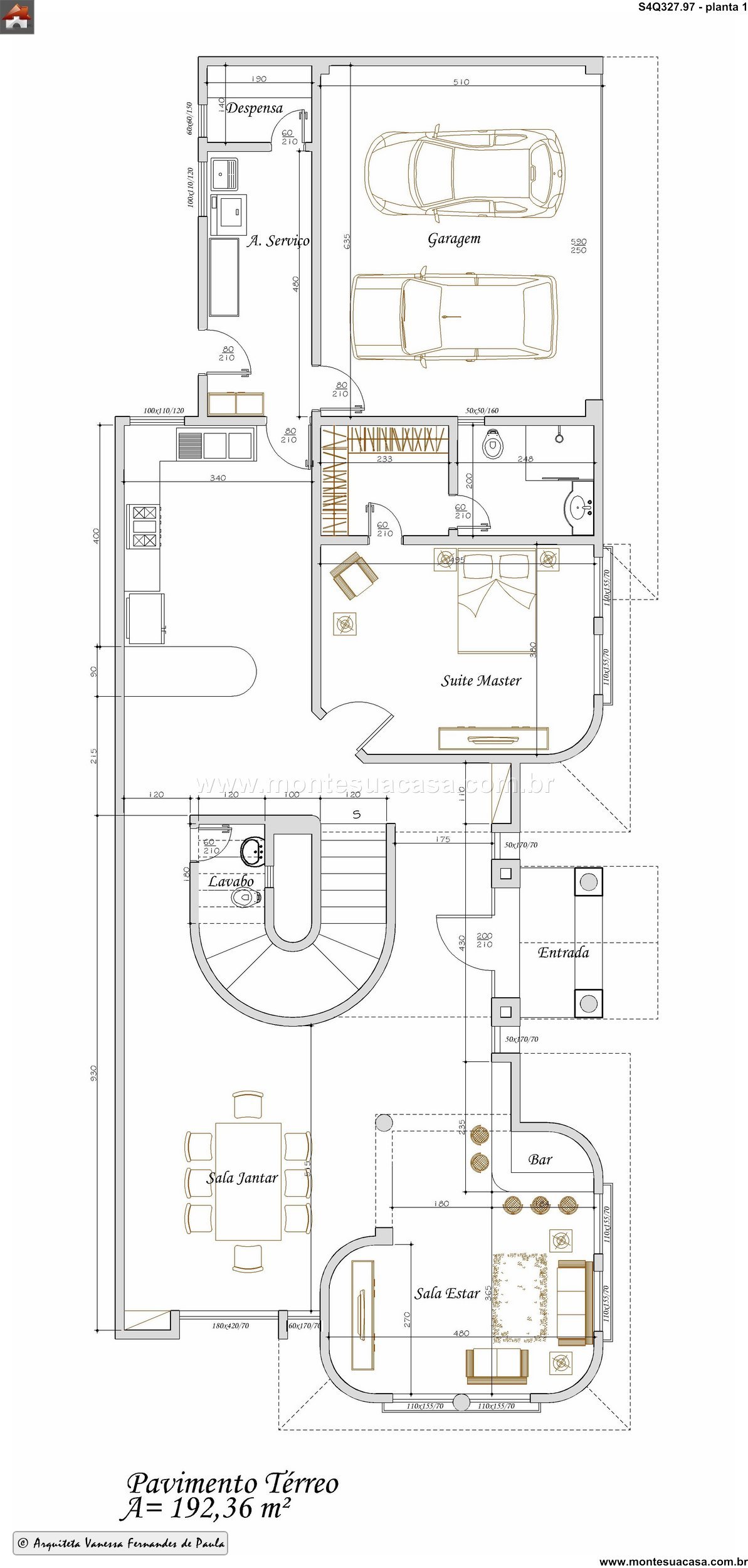
Acesso e Integração de Ambientes
Ao adentrar a residência, você é recebido por um hall de entrada que estabelece o tom do projeto. A garagem espaçosa oferece comodidade para múltiplos veículos, integrando-se perfeitamente à circulação principal. A área social foi concebida como um grande espaço integrado, onde sala de estar e jantar conversam diretamente com a área gourmet. Este ambiente se abre para o exterior, criando uma expansão visual e física que valoriza o contato com a natureza e a luz natural.
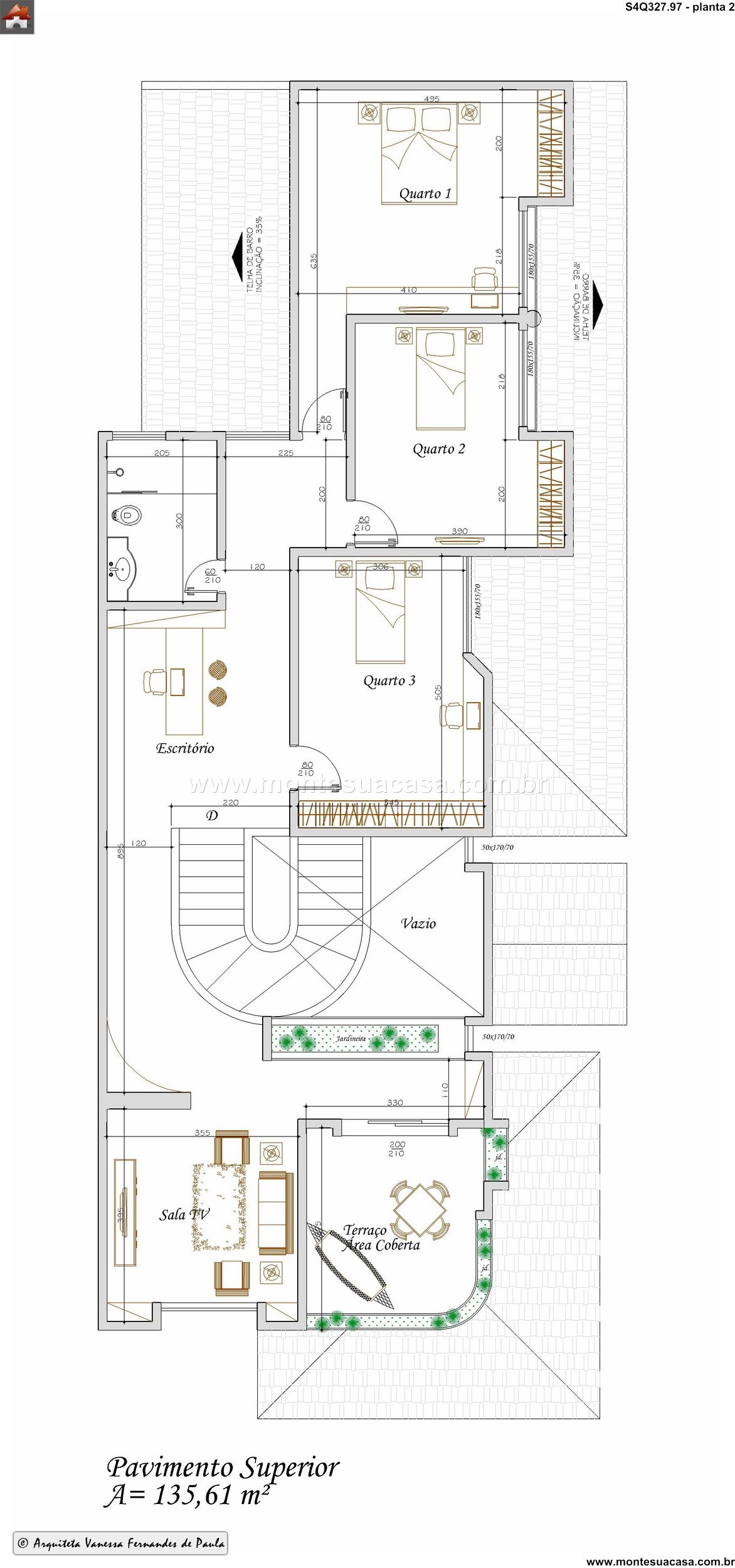
Conforto e Privacidade nos Dormitórios
Os quatro quartos representam o auge do conforto planejado, sendo três suítes que garantam autonomia e privacidade. A suíte master se destaca com seu ambiente generoso, armários embutidos e banheiro completo. Os demais dormitórios seguem o mesmo padrão de qualidade, com iluminação zenital e ventilação cruzada. O projeto preza pela intimidade familiar, posicionando os quartos em área reservada da residência, longe do movimento das áreas comuns.
Cozinha e Áreas de Serviço
A cozinha planejada surpreende pela ergonomia e acabamentos premium, integrando-se à área gourmet através de ilha ou balcão. A área de serviço completa oferece praticidade no dia a dia, com espaço otimizado para lavanderia e armazenamento. Os acabamentos selecionados unem durabilidade e estética, criando ambientes que são tanto funcionais quanto visualmente atraentes. A circulação entre esses espaços foi minuciosamente estudada para facilitar as rotinas domésticas.
Projeto Personalizado e Sustentável
Cada aspecto deste sobrado reflete um compromisso com a excelência arquitetônica e a qualidade de vida. O projeto incorpora princípios de sustentabilidade através de orientação solar otimizada e ventilação natural. Os materiais foram selecionados para garantir conforto térmico e acústico, reduzindo o consumo energético. Este residência representa não apenas um espaço físico, mas um estilo de vida equilibrado que valoriza tanto o convívio social quanto os momentos de recolhimento familiar.












Avaliações
Não há avaliações ainda.