Descrição
Este projeto de sobrado com 326,27m² combina sofisticação, funcionalidade e conforto em uma proposta arquitetônica ideal para famílias modernas. Com três quartos bem distribuídos no pavimento superior, a residência oferece ambientes amplos e integrados, além de uma área de lazer completa.
Design contemporâneo e fachada imponente A fachada apresenta volumes marcantes, revestimentos em pedra natural e pintura branca, além de um telhado cerâmico em múltiplos níveis. A varanda com guarda-corpo de vidro e os grandes vãos envidraçados garantem iluminação natural e valorizam a estética do projeto.
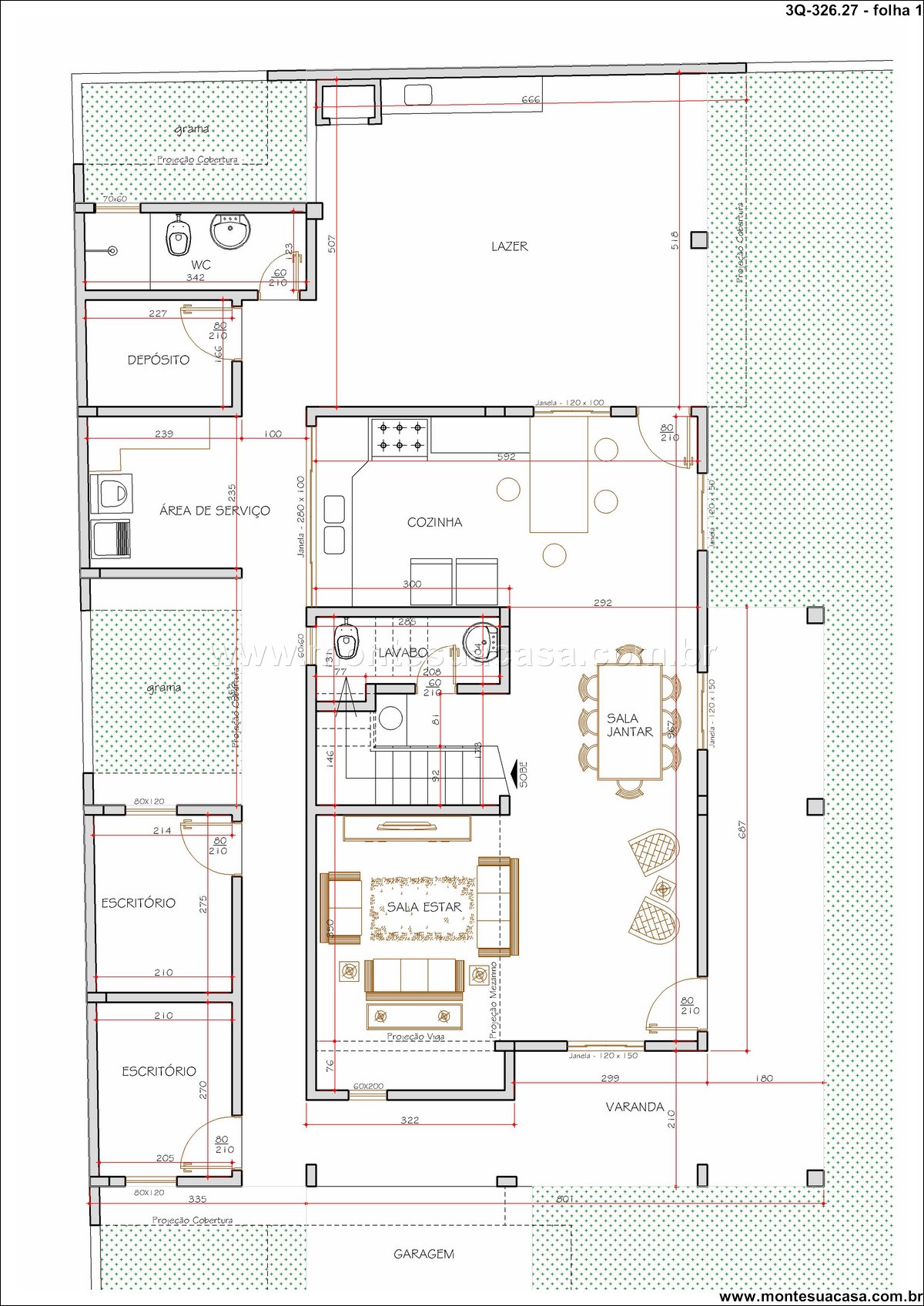
Ambientes sociais integrados e funcionais No térreo, os espaços são pensados para promover convivência e praticidade. A sala de estar se conecta à sala de jantar e à cozinha em conceito aberto. O lavabo, escritório, depósito e área de serviço completam os ambientes funcionais. A varanda gourmet e a piscina com deck ampliam a área social para momentos de lazer.
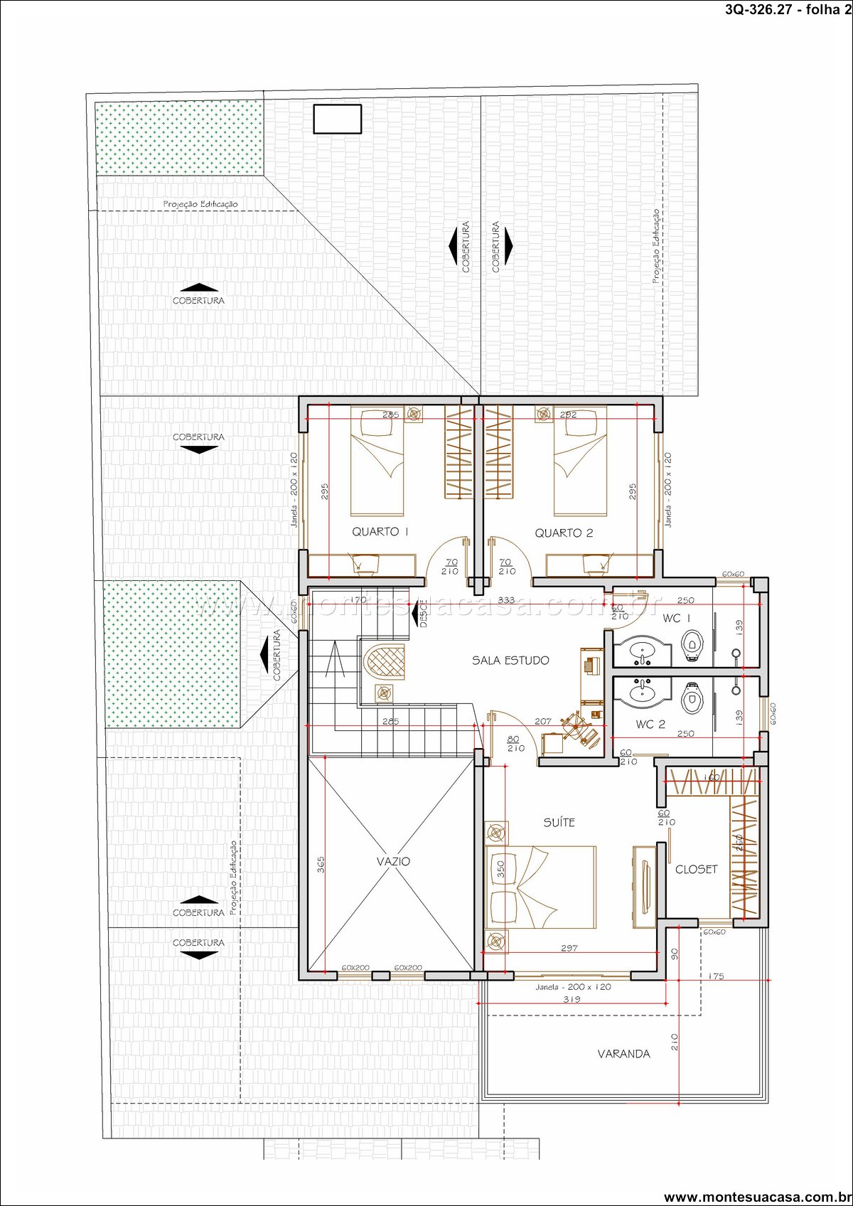
Área íntima com conforto e privacidade O pavimento superior abriga três dormitórios, sendo uma suíte com closet e varanda privativa. Há também uma sala de estudos e dois banheiros sociais. O vazio central proporciona ventilação cruzada e iluminação natural, elevando o conforto térmico e visual.
Lazer e paisagismo valorizado A área externa conta com piscina, jardim tropical com palmeiras e floreiras decorativas, além de um espaço gourmet equipado com bancada e pia. O ambiente é ideal para confraternizações e momentos de relaxamento.
Segurança e praticidade A garagem coberta comporta até três veículos. O muro perimetral com portão de alumínio garante segurança sem comprometer a estética. O projeto foi desenvolvido para otimizar o uso do terreno e proporcionar fluidez entre os ambientes internos e externos.
















Avaliações
Não há avaliações ainda.