Descrição
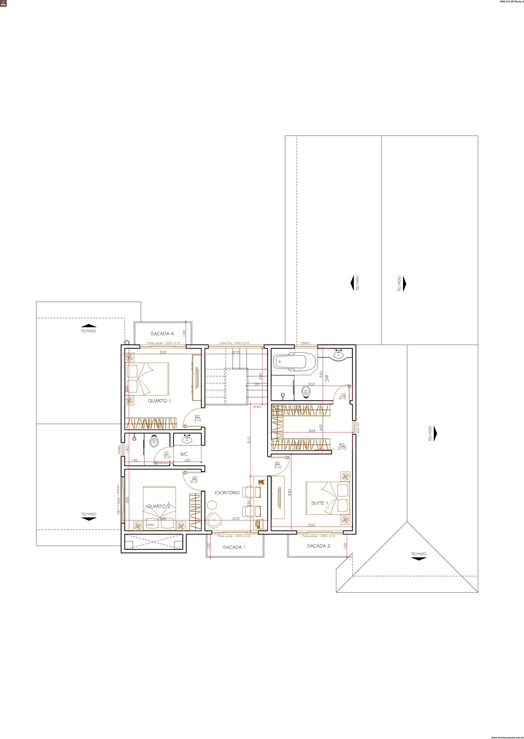
Este sobrado de 314.05 metros quadrados, distribuídos em dois pavimentos, incorpora os melhores princípios da arquitetura contemporânea. Com uma planta que inclui quatro quartos, o projeto foi meticulosamente desenhado para oferecer o máximo em conforto e funcionalidade para a família. A fachada dialoga com linhas clean e volumes bem definidos, criando uma identidade visual forte e atemporal.
A concepção espacial prioriza a fluidez e a integração entre os ambientes. A área social se conecta perfeitamente com a área gourmet e o espaço externo, promovendo uma sensação de amplitude e aconchego. Grandes esquadrias de vidro garantem uma iluminação natural abundante, além de frame views que integram a paisagem ao interior. Dessa forma, os moradores desfrutam de uma vivência completa e conectada com a natureza.
Os quatro quartos são estrategicamente posicionados para assegurar privacidade e tranquilidade. A suíte master, em particular, é um refúgio de luxo, com layout generoso e possibilidade de um closet amplo. Os demais dormitórios compartilham um banheiro bem distribuído, ideal para filhos ou hóspedes. Acima de tudo, os materiais escolhidos reforçam a personalidade do projeto, com acabamentos de alta qualidade que prometem durabilidade e um visual sofisticado.
A circulação interna foi planejada para ser intuitiva e eficiente, conectando os diferentes setores da casa sem obstáculos. O projeto de iluminação, pensado para complementar a luz natural, cria diferentes atmosferas durante o dia e a noite. Cada detalhe, do piso ao forro, contribui para uma experiência residencial única e personalizada. Este sobrado de 4 quartos é a materialização de um estilo de vida moderno e requintado.















Avaliações
Não há avaliações ainda.