Descrição
Projeto Arquitetônico Completo: Planta e Fachada de Residência Contemporânea
Este projeto arquitetônico residencial contemporâneo foi meticulosamente desenvolvido para oferecer conforto, funcionalidade e uma estética atemporal. A concepção prioriza a integração entre os ambientes internos e a natureza ao redor, criando um refúgio pessoal que atende a todas as necessidades da vida moderna. A fachada impressiona com linhas limpas e um equilíbrio harmonioso entre volumes. Este design não só define a identidade visual da casa, mas também garante privacidade e conforto térmico para os moradores.
Distribuição Espacial e Layout Interno
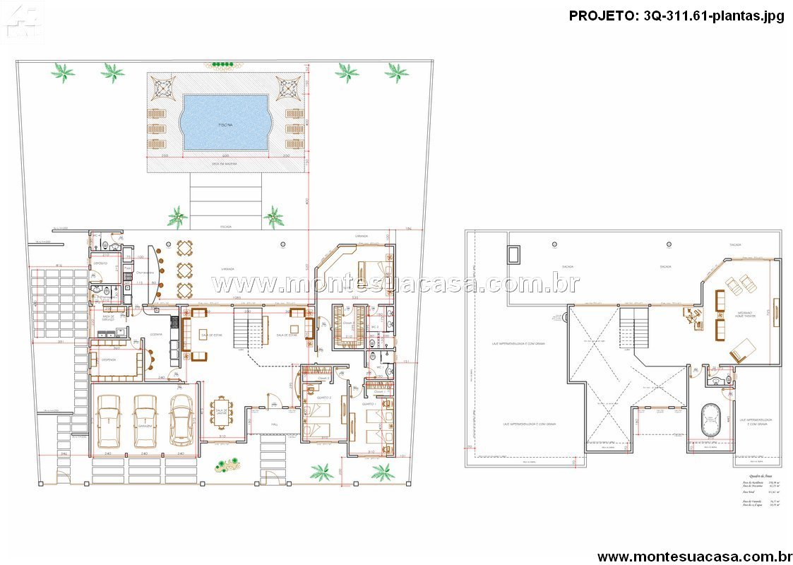
O layout interno de 311.61 m² foi planeado para promover uma fluidez perfeita entre os diferentes ambientes. A área social se expande de forma coesa, integrando sala de estar, jantar e gourmet em um único espaço generoso. Esta configuração é ideal para receber convidados e para o convívio familiar diário. Os ambientes privativos, localizados em alas estrategicamente separadas, oferecem total intimidade. Os quartos contam com amplas dimensões e armários embutidos, proporcionando conforto e praticidade.
Integração com a Natureza e Iluminação
Grandes janelas e portas de vidro são elementos centrais neste projeto, permitindo que a luz natural inunde todos os cômodos durante o dia. Esta estratégia não apenas reduz o consumo de energia elétrica, mas também cria uma sensação de amplitude e bem-estar. Os terraços e varandas funcionam como extensões dos ambientes internos, borrando os limites entre dentro e fora. Estes espaços intermediários são perfeitos para relaxar e apreciar o paisagismo integrado ao projeto.
Conceito da Fachada e Materiais
A fachada emprega uma paleta de materiais contemporâneos que incluem concreto aparente, madeira e grandes superfícies envidraçadas. A composição resulta em uma estética sólida e ao mesmo tempo aconchegante, com texturas que criam um jogo visual interessante. O projeto de fachada garante privacidade sem abrir mão da luminosidade, orientando as aberturas de forma estratégica. A entrada da residência é marcada por um elemento singular que confere personalidade e carácter único à construção.
Funcionalidade e Conforto no Dia a Dia
Cada metro quadrado foi optimizado para oferecer o máximo em funcionalidade e qualidade de vida. A cozinha, integrada à área gourmet, foi desenhada para ser tanto um espaço de preparação de refeições quanto um ponto de convívio. A área de serviço é ampla e bem posicionada, assegurando eficiência nas tarefas domésticas. Os banheiros seguem um padrão de alto nível, com revestimentos de qualidade e layouts que priorizam o conforto. A circulação interna foi planeada para evitar travessias, garantindo praticidade no quotidiano.







Avaliações
Não há avaliações ainda.