Descrição
Conceito e Integração com o Terreno
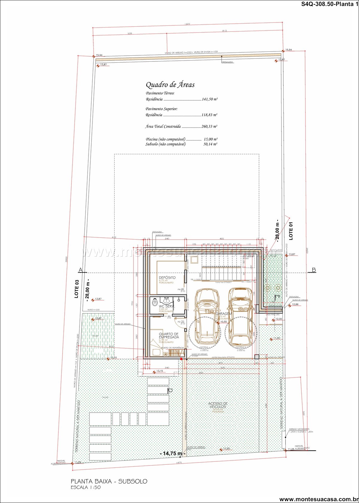
Este projeto de sobrado com 310.47m² foi meticulosamente planejado para se adaptar perfeitamente a um terreno em aclive. A arquitetura aproveita o desnível natural para criar volumes dinâmicos e espaços diferenciados. Dessa forma, a construção dialoga harmonicamente com a topografia, resultando em uma residência única e com personalidade marcante. A solução encontrada não apenas resolve o desafio do aclive, mas também agrega valor estético e funcional ao imóvel.
Distribuição de Ambientes e Privacidade
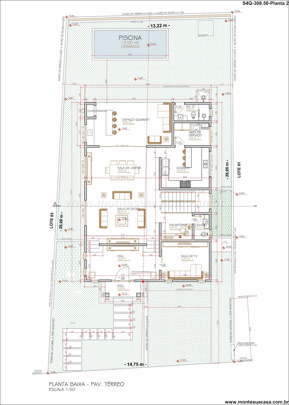
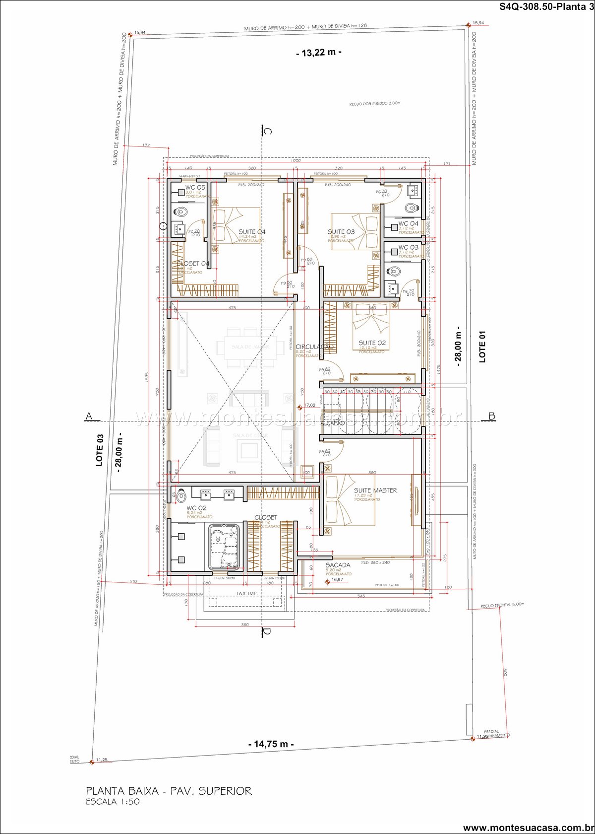
A planta funcional do sobrado é distribuída em dois pavimentos, organizando os ambientes de forma inteligente. O pavimento superior, conforme detalhado na planta baixa, abriga a área social e os quartos. Além disso, a residência conta com quatro quartos, garantindo amplo espaço para a família e visitas. Os ambientes são integrados para promover convívio, mas também são zonados para assegurar a necessária privacidade dos dormitórios. A circulação fluida entre os cômodos cria uma sensação de amplitude e conforto.
Linguagem Arquitetônica e Aproveitamento
A linguagem arquitetônica é contemporânea, com linhas clean e volumes bem definidos que se complementam. O desnível do terreno é vencido com precisão, criando possibilidades para áreas de estar externas ou um jardim escalonado. A integração entre interior e exterior é uma prioridade, maximizando a iluminação natural e a ventilação cruzada. O projeto demonstra como é possível transformar um desafio topográfico em uma vantagem exclusiva, gerando uma residência com caráter único.
Conforto e Valorização do Imóvel
Este sobrado de 4 quartos transcende a simples função de abrigo, tornando-se um refúgio moderno e aconchegante. Cada detalhe foi pensado para oferecer praticidade e bem-estar aos moradores. A solução inteligente para o aclive é um diferencial competitivo significativo que valoriza o imóvel. Em resumo, este projeto representa o equilíbrio ideal entre design ousado, funcionalidade familiar e uma implantação exemplar no terreno. Realize o sonho da casa própria com um projeto que entrega qualidade de vida e valorização a longo prazo.















Avaliações
Não há avaliações ainda.