Descrição
Casa Familiar em Múltiplos Níveis
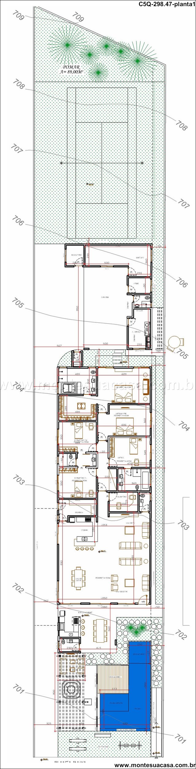
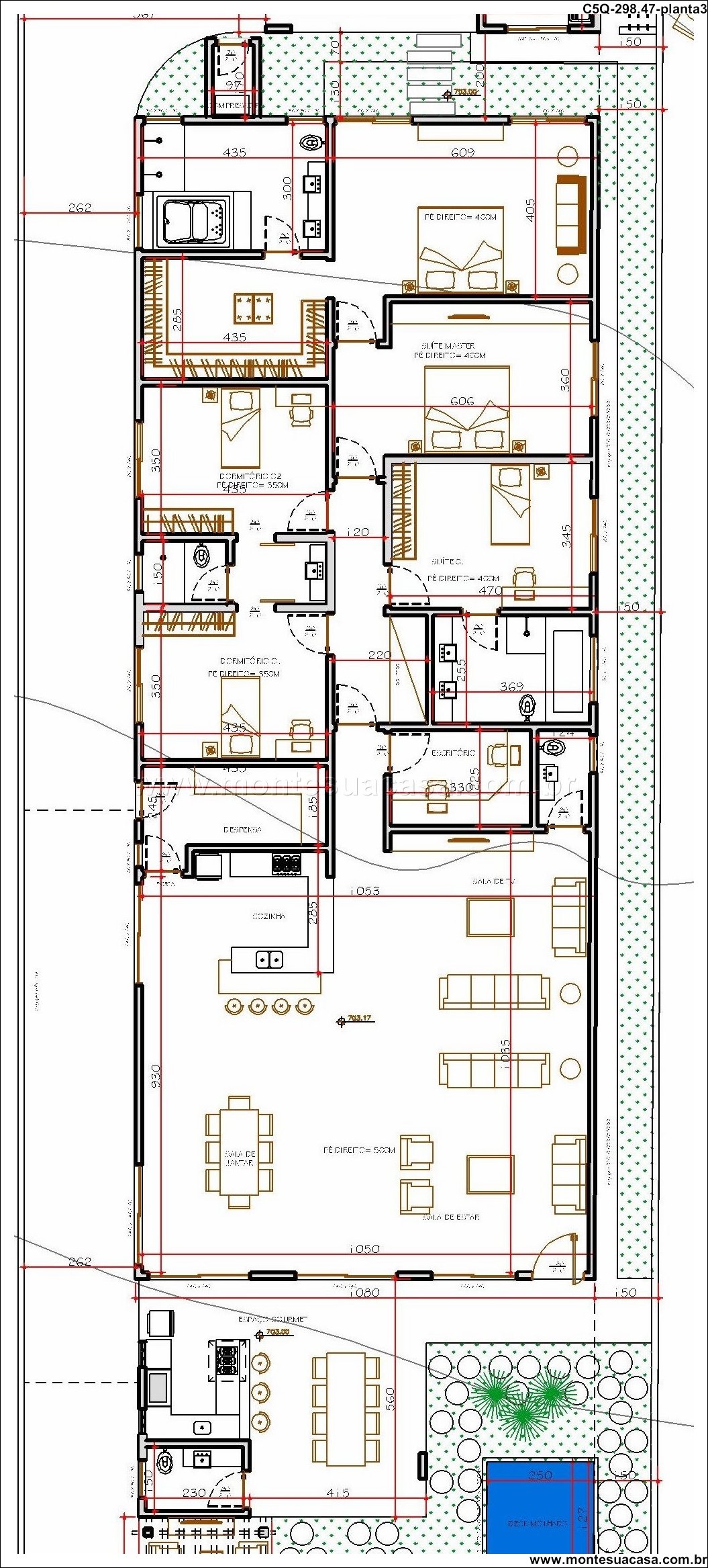
Esta residência de 298.47 m² foi especialmente desenvolvida para terreno em aclive, aproveitando o desnível natural para criar uma volumetria dinâmica e cheia de personalidade. O projeto distribui harmonicamente os cinco quartos em diferentes níveis, garantindo privacidade e vistas privilegiadas para todos os ambientes. Através de soluções técnicas inteligentes, a arquitetura dialoga constantemente com a topografia original, criando uma relação única entre construção e natureza. A fachada principal se apresenta com linhas contemporâneas que se adaptam perfeitamente à inclinação do terreno.
Integração com a Paisagem Natural
O grande diferencial deste projeto está na forma como ele se relaciona com o entorno. Grandes janelas e terraços estrategicamente posicionados permitem que os moradores desfrutem de paisagens diferenciadas em cada ambiente. A luz natural percorre todos os espaços de forma generosa, criando uma atmosfera acolhedora e integrada ao exterior. A circulação vertical foi cuidadosamente estudada para proporcionar conforto e praticidade no dia a dia, conectando os níveis de maneira fluida e acessível. Dessa forma, cada andar se torna um universo particular dentro da mesma residência.
Conforto e Funcionalidade em Destaque
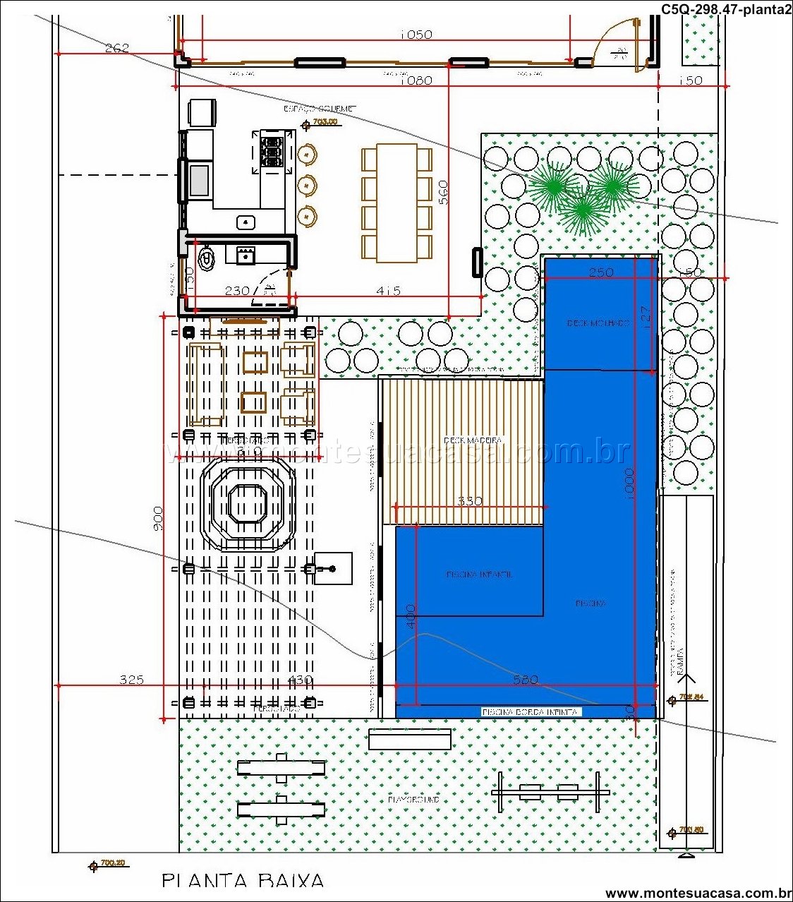
A área social ocupa posição privilegiada no projeto, com amplo living integrado à área gourmet e varanda de uso diário. Os cinco quartos, sendo três suítes, oferecem flexibilidade para famílias modernas, com espaços bem dimensionados e iluminação cuidadosamente planejada. A suíte master aproveita a localização mais alta do terreno para proporcionar maior privacidade e vistas panorâmicas. Os materiais escolhidos combinam durabilidade e sofisticação, criando ambientes aconchegantes que requerem pouca manutenção ao longo do tempo.
Soluções Técnicas para Terreno Acidentado
O projeto incorpora soluções estruturais inovadoras que respeitam e valorizam o aclive original. A fundação e os sistemas de contenção foram minuciosamente calculados para garantir segurança e estabilidade total da construção. A drenagem e o manejo de águas pluviais receberam atenção especial, assegurando o perfeito funcionamento em todas as condições climáticas. Esta abordagem técnica transforma um potencial desafio construtivo em uma oportunidade única de criar espaços diferenciados e cheios de personalidade arquitetônica.















Avaliações
Não há avaliações ainda.