Descrição
Uma Concepção Moderna de Viver
Este sobrado de 297.56 metros quadrados personifica o conceito de living moderno, onde cada detalhe arquitetônico foi meticulosamente planejado para criar uma experiência de vida fluida e luxuosa. O projeto se destaca pela sua planta inteligente, que distribui os ambientes sociais no pavimento térreo e os quartos no superior, harmonizando perfeitamente os espaços de convívio e privativos. A fachada, com suas linhas geométricas e S40 de TV, já anuncia o caráter contemporâneo da residência.
Integração e Convívio no Pavimento Térreo
A entrada leva você diretamente para um amplo hall de distribuição. À sua frente, a Sala de Estar e a Sala de Estar Juntar se integram, formando um generoso ambiente de convívio familiar. Este espaço converge elegantemente para a área gourmet, criando o coração da casa perfeito para receber amigos e familiares. A Piscina com Bordas Infinity e o deck ao ar livre estão estrategicamente posicionados para serem uma extensão natural da área social, promovendo uma conexão visual e física com o exterior.
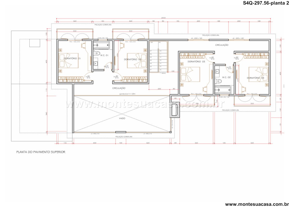
Conforto e Privacidade no Andar Superior
O pavimento superior é dedicado ao descanso e à privacidade, abrigando quatro quartos bem dimensionados. O sacada oferece um refúgio privativo, ideal para momentos de tranquilidade. Os demais quartos compartilham uma atmosfera aconchegante, garantindo conforto para todos os moradores. A planta garante uma separação clara entre as funções da casa, assegurando sossego nos ambientes de repouso.
Acabamentos e Conexão com a Natureza
Os materiais e acabamentos foram selecionados para conferir durabilidade e um astral sofisticado. Os amplos vidros emolduram a paisagem e permitem a entrada de luz natural, tornando os ambientes ainda mais aconchegantes e integrados ao jardim. A arquitetura valoriza a funcionalidade sem abrir mão do estilo, resultando em um lar que é ao mesmo tempo um refúgio pessoal e um espaço ideal para entreter.












Avaliações
Não há avaliações ainda.