Descrição
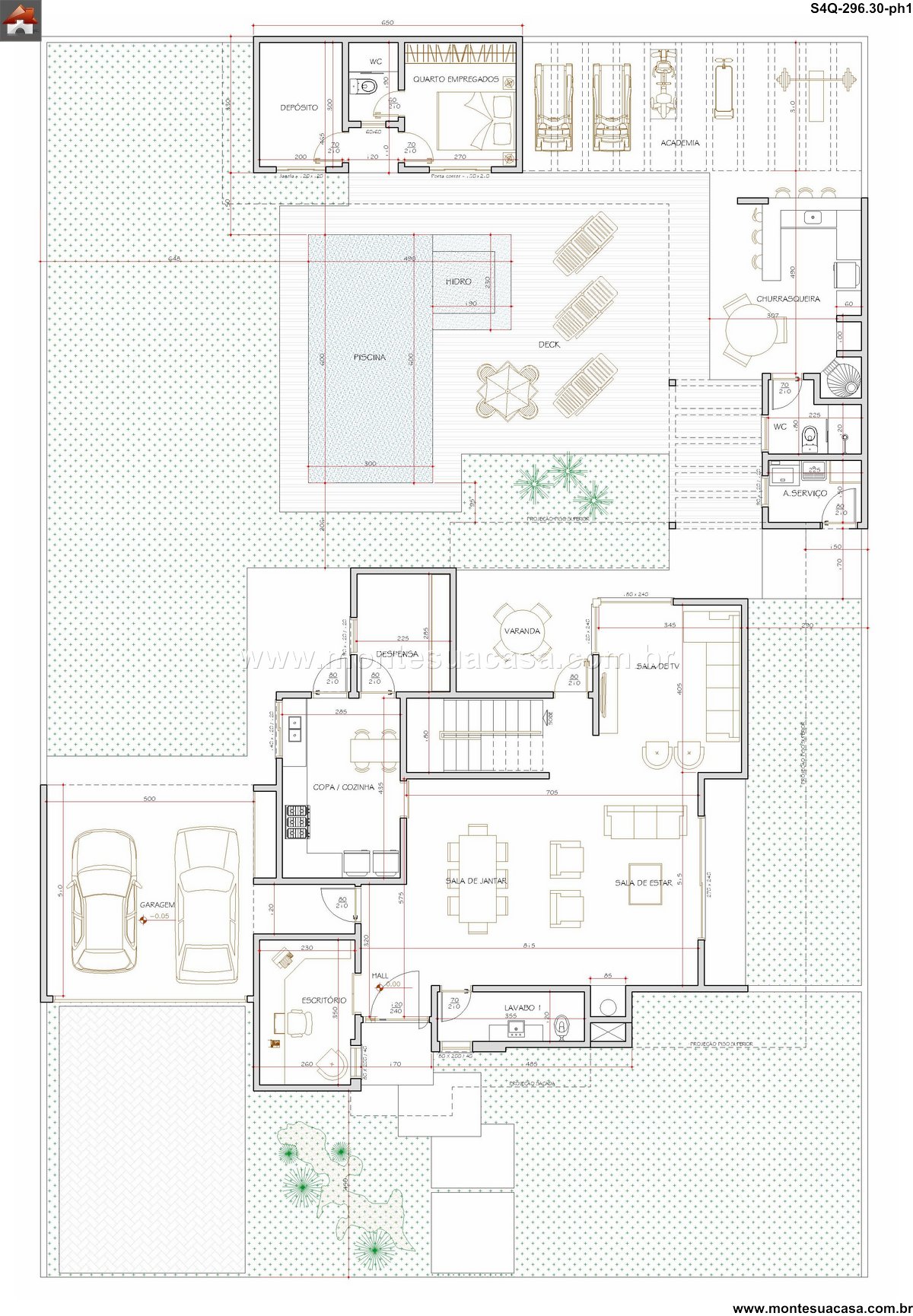
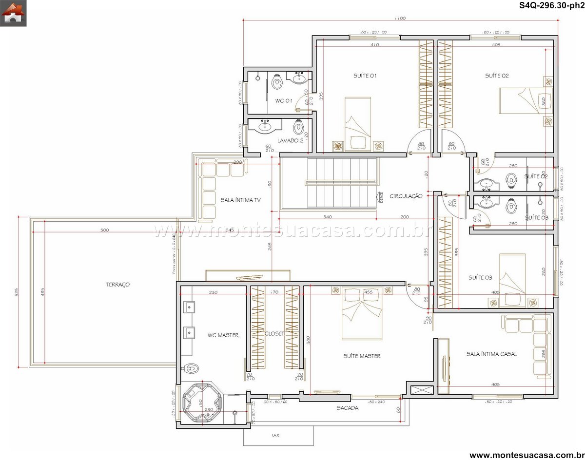
Este projeto de sobrado moderno, com 296.30 metros quadrados, é uma celebração do conforto contemporâneo e da funcionalidade familiar. A planta inteligente organiza os ambientes em diferentes níveis, garantindo privacidade e uma fluidez natural entre os espaços. A fachada, com linhas clean e grandes janelas, estabelece um diálogo elegante com o exterior, prometendo um interior igualmente impressionante. A circulação foi meticulosamente planejada para conectar as áreas sociais, íntimas e de lazer de forma harmoniosa, criando uma jornada visual e espacialmente agradável. Cada detalhe reforça a proposta de um lar que é, ao mesmo tempo, um refúgio acolhedor e um espaço ideal para receber amigos e familiares.
Ambientes Internos e Suítes
O térreo abriga a vibrante área social, integrando sala de estar e jantar em um ambiente amplo e arejado, que se abre generosamente para a sacada e a área gourmet. A cozinha, projetada para o chef da casa, conta com ilha e despensa, facilitando o preparo de refeições. A suíte master no pavimento superior oferece um retiro privativo, com closet e banheiro amplo, enquanto as outras duas suítes compartilham uma sala íntima, criando um espaço exclusivo para o casal. Um quarto de empregados com banheiro e um depósito garantem a praticidade do dia a dia, assegurando que tudo tenha seu lugar.
Área de Lazer e Externos
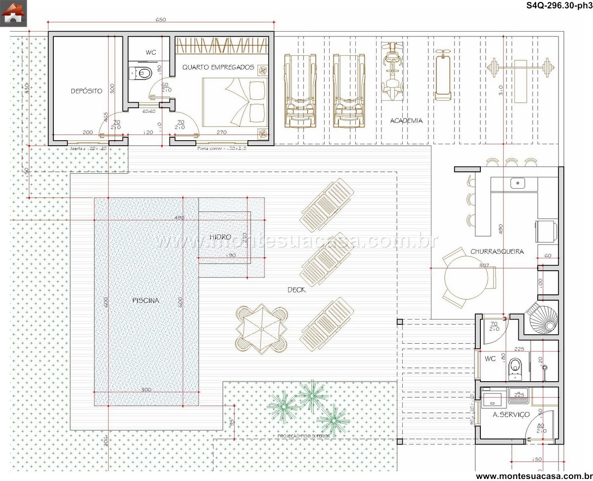
O lazer é prioridade neste projeto, com uma área dedicada que inclui uma revitalizante piscina e um espaço gourmet completo com churrasqueira e deck de madeira. Este ambiente é perfeito para encontros informais e fins de semana descontraídos. Uma hidro e uma academia privativa oferecem opções para o bem-estar e a saúde sem sair de casa. A varanda superior proporciona um local tranquilo para apreciar a brisa e a vista, complementando os espaços externos que se integram perfeitamente com a natureza, criando um oásis particular para a família.














Avaliações
Não há avaliações ainda.