Descrição
Este sobrado moderno, com um total de 295.41m² construídos, se desenvolve em dois pavimentos para oferecer o máximo em conforto e funcionalidade para a família. A planta inteligente distribui 4 quartos, sendo 3 suítes, harmonizando perfeitamente os espaços de convívio social com a privacidade dos ambientes de descanso. A arquitetura contemporânea prioriza a luminosidade natural e a integração entre os ambientes, criando uma sensação de amplitude e aconchego.
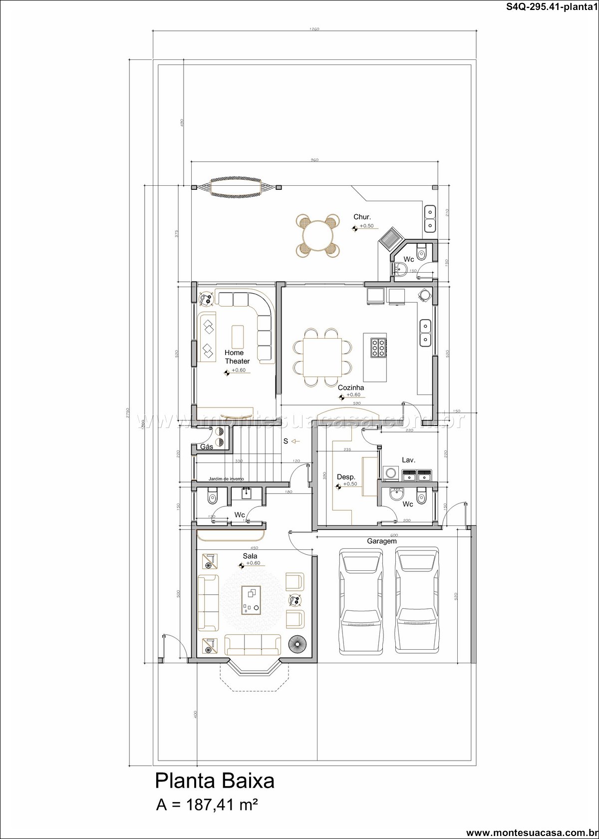
Planta Baixa: Área Social Integrada
No pavimento térreo, com 187.41m², a área social foi meticulosamente planejada para o dia a dia e o entretenimento. A sala de estar integra-se perfeitamente a um moderno home theater, proporcionando opções de lazer para todos os momentos. A área gourmet, anexa à cozinha, torna-se o coração da casa, ideal para receber amigos e familiares com praticidade. Este nível também abriga um quarto, um banheiro social e um depósito, oferecendo versatilidade de uso e conveniência.
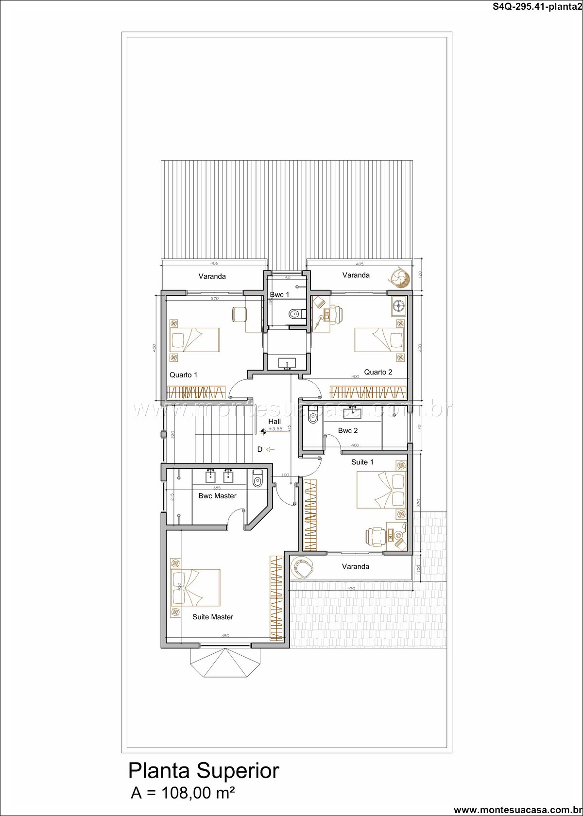
Planta Superior: Refúgio Privativo
O pavimento superior, com 108.00m², é um refúgio dedicado ao descanso. A suíte master é um destaque, oferecendo um amplo ambiente privativo. Ela é complementada por outras duas suítes, as quais compartilham acesso a uma varanda, garantindo ventilação e iluminação. Um hall de distribuição conecta todos os cômodos de forma fluida, assegurando privacidade e organização para todos os moradores. A presença de varandas adiciona um charme especial ao andar.
Conceito e Valorização
O projeto valoriza materiais modernos e linhas clean, resultando em uma estética atemporal. A circulação bem resolvida entre os ambientes potencializa a experiência de morar, promovendo bem-estar. Cada detalhe foi pensado para criar uma residência que é, ao mesmo tempo, um local de descanso e de encontro.









Avaliações
Não há avaliações ainda.