Descrição
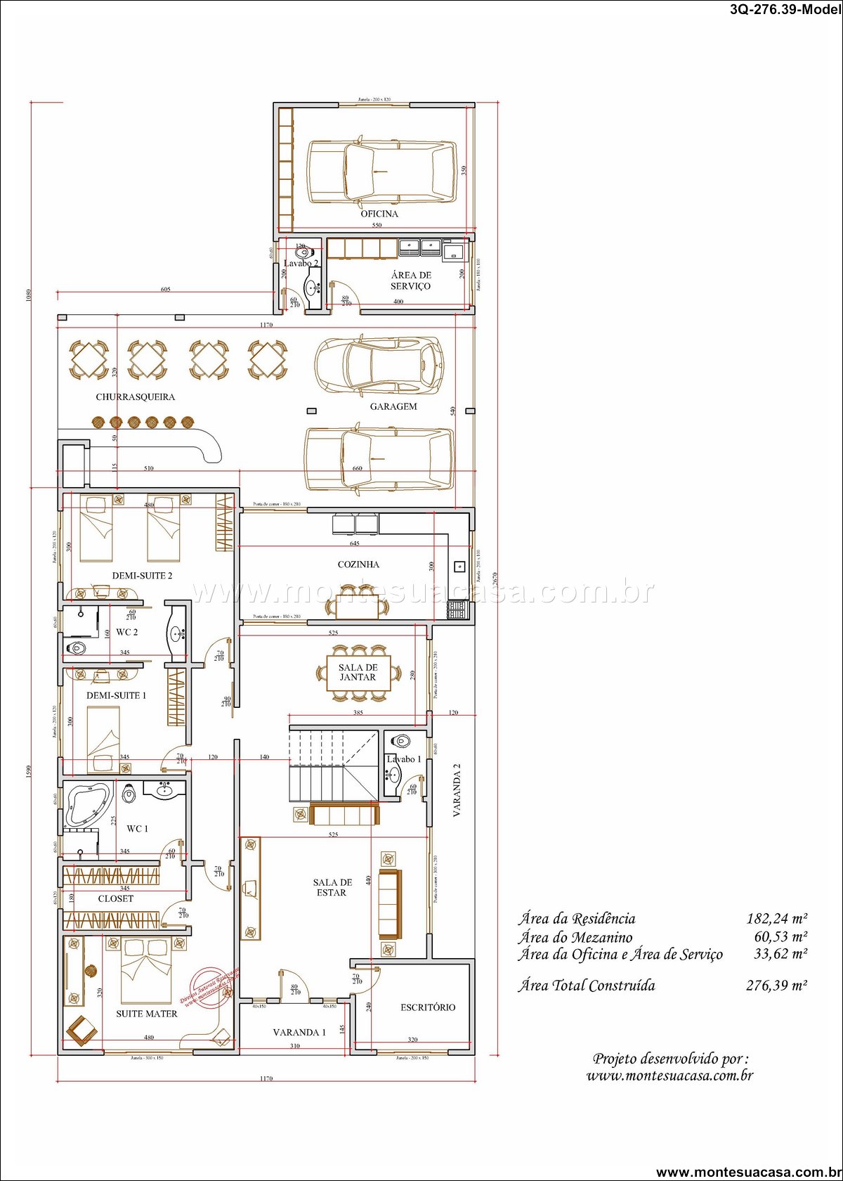
Esta casa térrea de 276,39m² foi projetada para oferecer conforto, funcionalidade e estilo em cada ambiente. Com três quartos bem distribuídos — incluindo uma suíte master e duas demi-suítes — o projeto atende perfeitamente famílias que valorizam privacidade e convivência.
Ambientes sociais amplos e integrados A sala de estar, sala de jantar e cozinha formam um núcleo social em conceito aberto, promovendo integração e fluidez. A varanda lateral com churrasqueira amplia o espaço de convivência, ideal para encontros e momentos de lazer. A presença de duas varandas favorece a ventilação cruzada e a iluminação natural, criando uma atmosfera acolhedora.
Área íntima com três dormitórios confortáveis A suíte master conta com closet e banheiro privativo (WC 1), oferecendo conforto e privacidade ao casal. As demi-suítes 1 e 2 compartilham banheiros individuais (WC 2 e WC 3), garantindo praticidade e bem-estar para os demais moradores. O escritório, estrategicamente posicionado, é ideal para trabalho remoto ou estudos.
Infraestrutura funcional e versátil A garagem para três veículos está conectada à oficina e à área de serviço, facilitando o cotidiano e a manutenção da residência. O lavabo atende à área social com discrição. O mezanino de 60,53m² adiciona versatilidade ao projeto, podendo ser usado como sala de TV, biblioteca ou espaço de convivência adicional.
Design inteligente e aproveitamento total da área Com uma área construída total de 276,39m², o projeto equilibra estética e funcionalidade. A circulação é fluida, os ambientes são bem posicionados e cada espaço foi pensado para atender às necessidades modernas de moradia. A presença da oficina e do mezanino torna este projeto único, ideal para quem busca uma casa com personalidade e múltiplas possibilidades de uso.







Avaliações
Não há avaliações ainda.