Descrição
Projeto residencial com implantação inteligente em terreno declive
Este sobrado de 255,22 m² foi desenvolvido para terrenos com declive acentuado, explorando esse desafio como vantagem arquitetônica. O acesso principal acontece pela parte alta do lote, enquanto a área social se abre totalmente para o nível inferior, garantindo privacidade, conforto térmico e integração visual com o jardim. A volumetria combina telhados inclinados, platibandas marcantes e destaque em cores quentes, criando identidade forte e elegante para quem deseja uma casa funcional e marcante.
Setorização eficiente para uma rotina organizada
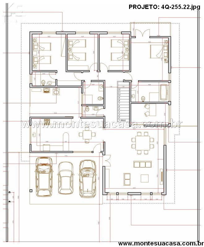
A planta distribui quatro quartos bem dimensionados na área íntima, garantindo circulação fluida e ambientes iluminados. Duas suítes oferecem praticidade, enquanto os quartos adicionais atendem com folga famílias grandes ou quem precisa de espaço para escritório. A proximidade dos dormitórios reduz deslocamentos e cria rotina mais prática. No centro do projeto, a cozinha se conecta diretamente com a sala de jantar, favorecendo o uso cotidiano e atividades familiares.
Integração total entre áreas sociais e lazer
O destaque do projeto está no pavimento inferior, onde o grande salão aberto forma uma área de convivência extremamente flexível. Este espaço se conecta ao terraço e ao jardim através de grandes aberturas, permitindo eventos familiares, refeições ao ar livre ou uso como área gourmet. A escada externa leva ao segundo patamar do terreno, criando um eixo visual contínuo entre pavimentos e reforçando a sensação de amplitude. O conjunto foi pensado para quem valoriza encontros e deseja usufruir plenamente do terreno em declive.
Garagem espaçosa e funcionalidade garantida
A garagem frontal para três veículos oferece acesso rápido ao interior da residência, além de espaço para motos ou equipamentos. A cobertura robusta garante proteção e praticidade no dia a dia. Ventilação lateral e circulação independente aumentam o conforto para quem entra e sai com frequência, evitando interferência nos demais ambientes.
Arquitetura moderna com personalidade
O uso de volumes assimétricos, telhados múltiplos e uma combinação equilibrada de cores e revestimentos reforça a estética contemporânea inspirada em casas modernas brasileiras. As grandes janelas garantem iluminação natural, enquanto a disposição lateral e posterior preserva a privacidade. O terraço superior e a varanda frontal completam o conjunto, criando pontos de observação privilegiados do entorno.













Avaliações
Não há avaliações ainda.