Descrição
Projeto de sobrado moderno para famílias que buscam amplitude e integração
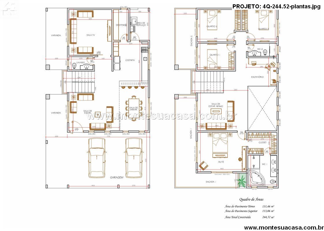
Este sobrado de 244,52 m² apresenta uma composição arquitetônica pensada para quem exige funcionalidade, conforto e integração entre ambientes sociais. O layout do pavimento térreo prioriza a convivência e oferece circulação fluida entre sala de estar, sala de jantar e cozinha. A varanda frontal e a varanda lateral complementam a área social, criando pontos de respiro visual e ampliando a sensação de espaço. Além disso, a sala de TV no térreo é uma solução estratégica para manter privacidade em atividades mais reservadas, sem interferir no movimento diário da casa.
Ambientes sociais integrados para uma rotina prática
A cozinha se conecta à sala de jantar com naturalidade, garantindo uma experiência contínua durante refeições e encontros familiares. A presença da despensa e da área de serviço posicionada de forma discreta reforça a eficiência do projeto. A escada central organiza a circulação vertical sem fragmentar a planta. A garagem para dois carros oferece praticidade e proteção.
Área de lazer completa e planejada para uso intenso
O destaque externo está na integração entre piscina, deck, área verde e o espaço gourmet com churrasqueira. O conjunto cria uma atmosfera ideal para eventos sociais, convivência familiar e momentos de relaxamento. Complementam a experiência a sala de jogos, a sauna e o espaço fitness, posicionados de forma a garantir uso contínuo sem interferir na privacidade da casa. A disposição inteligente desses ambientes aumenta o valor percebido do projeto.
Pavimento superior com quatro quartos e espaços íntimos bem definidos
O pavimento superior distribui quatro dormitórios, sendo três quartos amplos e uma suíte master completa, equipada com closet, banheiro espaçoso e sacada privativa. A sala de estar íntimo organiza a circulação, oferecendo um ambiente reservado para convivência familiar. O escritório posicionado próximo aos dormitórios atende perfeitamente quem trabalha em home office ou precisa de um espaço de estudo silencioso. A sacada nos fundos reforça ventilação natural e proporciona vista para a área de lazer.
Conforto, privacidade e sofisticação com distribuição eficiente
O projeto combina áreas amplas, iluminação natural abundante e circulação clara. O layout valoriza tanto o uso diário quanto os momentos de lazer. Esse equilíbrio torna o sobrado versátil para famílias que desejam um imóvel funcional, elegante e adaptado a rotinas modernas. A composição entre áreas sociais amplas, suítes bem posicionadas e um complexo de lazer completo transforma o projeto em uma proposta com excelente custo-benefício e alto potencial de valorização.









Avaliações
Não há avaliações ainda.