Descrição
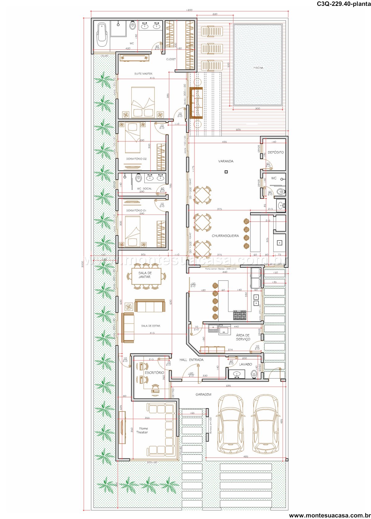
Este projeto de casa térrea com 229,40m² combina sofisticação, funcionalidade e conforto em um layout moderno e bem distribuído. Ideal para famílias que valorizam espaços integrados e áreas de lazer completas, o projeto contempla ambientes internos amplos e conectados com o exterior, promovendo bem-estar e praticidade no dia a dia.
Design contemporâneo e fachada imponente A fachada apresenta linhas retas e volumetria equilibrada, com destaque para o uso de materiais como pedra natural e pintura em tons neutros. Grandes esquadrias permitem excelente iluminação natural, enquanto o paisagismo frontal valoriza a entrada principal. A garagem coberta comporta dois veículos e ainda oferece espaço para moto e armazenamento decorativo.
Ambientes internos integrados e funcionais O interior da residência é composto por hall de entrada, lavabo, sala de estar, sala de jantar e cozinha americana com bancada funcional. Esses espaços se conectam de forma fluida, criando uma atmosfera acolhedora e perfeita para receber convidados. O escritório e o home theater garantem privacidade e conforto para trabalho e entretenimento.
Área íntima com três dormitórios A área íntima inclui três quartos bem distribuídos: dois dormitórios e uma suíte master com closet e banheiro privativo. O banheiro social atende aos dormitórios secundários com praticidade. A disposição dos quartos favorece o silêncio e a ventilação cruzada, proporcionando noites tranquilas e bem-estar aos moradores.
Lazer e convivência ao ar livre Nos fundos, a varanda gourmet com churrasqueira se integra à piscina e ao espaço de convivência, ideal para momentos de lazer em família. O projeto ainda contempla depósito, banheiro externo e área de serviço isolada, garantindo organização e praticidade.
Projeto ideal para terrenos urbanos Com layout inteligente e estética contemporânea, este projeto é perfeito para terrenos planos em regiões urbanas. A combinação entre funcionalidade e beleza torna esta casa uma excelente opção para quem busca morar com estilo e conforto.













Avaliações
Não há avaliações ainda.