Descrição
Este projeto arquitetônico de 228,47m² foi desenvolvido especialmente para terrenos em aclive, aproveitando o desnível natural para criar uma residência moderna, funcional e visualmente impactante. Com três pavimentos bem distribuídos, a casa oferece ambientes integrados, áreas de lazer completas e soluções inteligentes que valorizam o terreno.
Pavimento inferior: funcionalidade e acesso
A garagem coberta para dois veículos está posicionada estrategicamente no nível mais baixo, com acesso direto ao depósito e à escada principal. O paisagismo frontal inclui gramado, palmeiras e elementos decorativos que emolduram a entrada da casa com sofisticação.
Pavimento intermediário: integração e conforto
Neste nível, concentram-se os ambientes sociais. A cozinha funcional se conecta à sala de jantar e à sala de estar, ambas com acesso à sacada frontal. Um escritório reservado e um banheiro completo ampliam a versatilidade do andar. A circulação é fluida, com escada central que organiza os fluxos verticais de forma elegante.
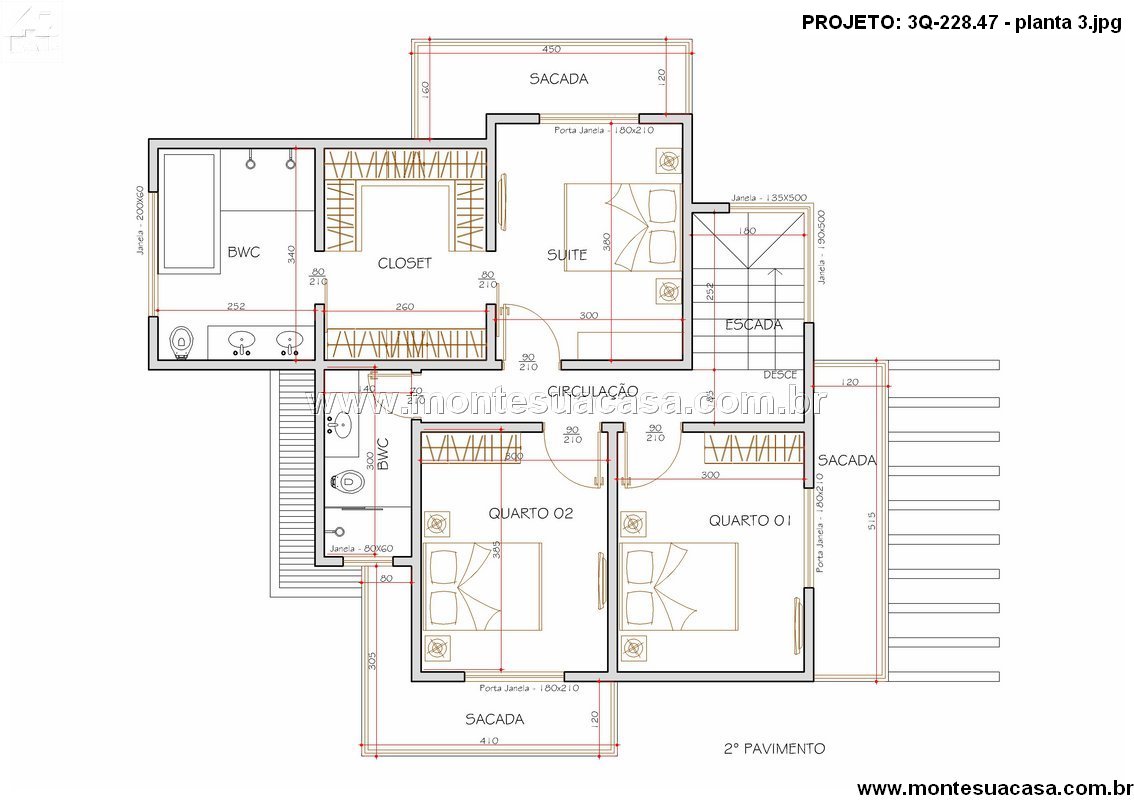
Pavimento superior: privacidade e descanso
Na parte superior, estão os dormitórios. A suíte principal conta com closet, banheiro privativo e sacada exclusiva. Dois quartos adicionais compartilham uma sacada ampla e um banheiro social. A distribuição garante conforto, privacidade e excelente aproveitamento da iluminação natural.
Área de lazer: bem-estar e convivência
A piscina com 5,95m de comprimento se integra ao espaço gourmet com churrasqueira, lavabo e sauna, criando um ambiente ideal para receber amigos e relaxar. O projeto valoriza a ventilação cruzada e o contato com a natureza, proporcionando bem-estar em todos os ambientes.
Este projeto é ideal para quem busca uma casa contemporânea, adaptada ao aclive do terreno, com soluções arquitetônicas que unem estética, funcionalidade e conforto.















Avaliações
Não há avaliações ainda.