Descrição
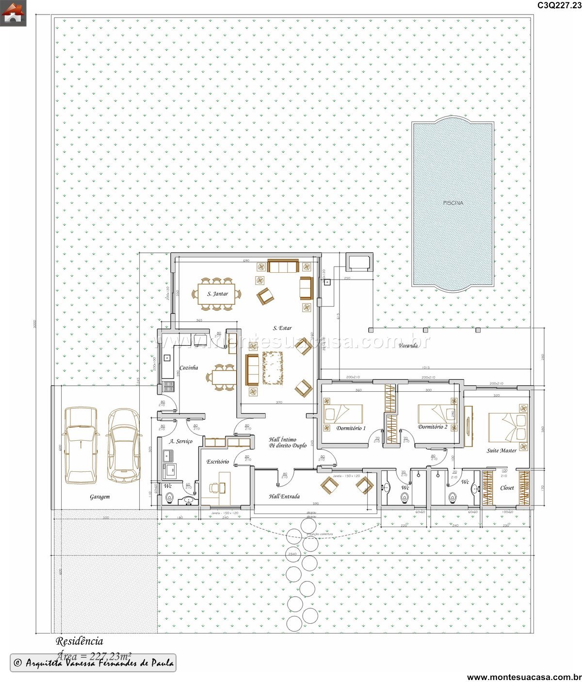
Este projeto de casa térrea de 3 quartos oferece uma solução arquitetônica moderna e funcional para famílias que valorizam conforto, integração e lazer. Com 227,23m² de área construída, a residência foi pensada para proporcionar bem-estar em todos os ambientes, combinando estética contemporânea com praticidade no dia a dia.
Ambientes sociais amplos e conectados A entrada principal leva ao hall que se abre para a sala de estar e a sala de jantar, ambas integradas e iluminadas naturalmente por grandes aberturas. A cozinha, posicionada de forma estratégica, conecta-se à área de serviço e à varanda coberta, facilitando a rotina doméstica e a recepção de convidados. A varanda funciona como extensão da área social, ideal para momentos ao ar livre com vista para a piscina.
Três dormitórios bem distribuídos A área íntima é composta por dois dormitórios confortáveis e uma suíte master com closet e banheiro privativo. O hall íntimo de acesso duplo garante fluidez entre os ambientes, mantendo a privacidade dos moradores. Os quartos foram projetados com janelas amplas, promovendo ventilação cruzada e iluminação natural.
Piscina e lazer valorizado A piscina é um dos destaques do projeto, posicionada para receber sol durante boa parte do dia. A integração com a varanda e o paisagismo ao redor cria um ambiente agradável para descanso e entretenimento.
Escritório funcional e garagem coberta O escritório oferece um espaço reservado para trabalho ou estudos, enquanto a garagem coberta comporta dois veículos com acesso direto à entrada de serviço. Essa configuração garante praticidade e segurança.
Fachada moderna com elementos naturais A fachada combina revestimentos em pedra, pintura branca e detalhes em verde, criando uma estética contemporânea e acolhedora. O telhado inclinado com telhas cerâmicas reforça o estilo tradicional com toque moderno.












Avaliações
Não há avaliações ainda.