Descrição
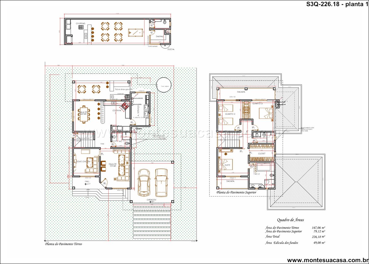
Este projeto arquitetônico de 226.18 metros quadrados apresenta um sobrado moderno e bem distribuído, com três quartos que aproveitam inteligentemente o espaço vertical. A divisão entre os pavimentos separa com eficiência as áreas sociais e íntimas, oferecendo tanto convívio quanto privacidade. A fachada dialoga com a linguagem contemporânea, utilizando volumes limpos e composições que valorizam a iluminação natural.
Distribuição e Verticalidade
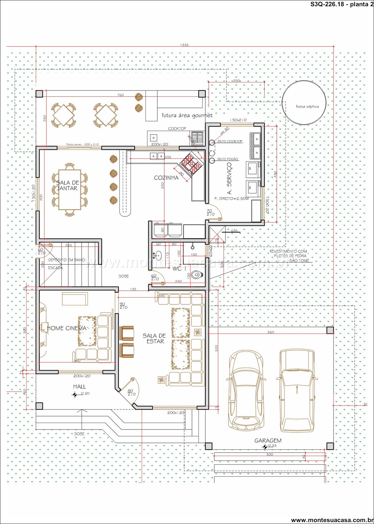
O projeto do sobrado explora a verticalidade para criar uma hierarquia clara de ambientes. O pavimento térreo é dedicado integralmente à vida social, concentrando living room, sala de jantar, cozinha gourmet integrada e um banheiro social. Essa configuração gera um amplo espaço de convivência, perfeito para receber visitas. A escada, posicionada de forma estratégica, serve como um elemento de transição e conexão entre os andares.
Área Íntima no Pavimento Superior
No andar superior, os três quartos encontram seu lugar, longe do burburinho das áreas comuns. O suíte master oferece um refúgio completo, enquanto os outros dois quartos compartilham um banheiro bem localizado. Esse arranjo garante conforto e privacidade para todos os moradores, criando uma zona de descanso verdadeiramente tranquila. A circulação no pavimento superior é fluida e eficiente.
Integração e Iluminação
A arquitetura prioriza a integração visual entre os ambientes do térreo, promovendo uma sensação de amplitude e continuidade. Grandes esquadrias permitem a entrada de luz natural, que banha os espaços internos e reduz o consumo de energia elétrica. O projeto também considera a ventilação cruzada, assegurando um ambiente sempre fresco e agradável em todos os cômodos da residência.
Modernidade Aplicada
A linguagem moderna se reflete na escolha de materiais, nas linhas retas e na ausência de ornamentos desnecessários. O sobrado apresenta uma estética atemporal, que pode ser personalizada com diferentes revestimentos e cores. Cada metro quadrado foi pensado para oferecer funcionalidade sem abrir mão do conforto e do apuro estético, resultando em um lar que é tanto prático quanto acolhedor.






































Avaliações
Não há avaliações ainda.