Descrição
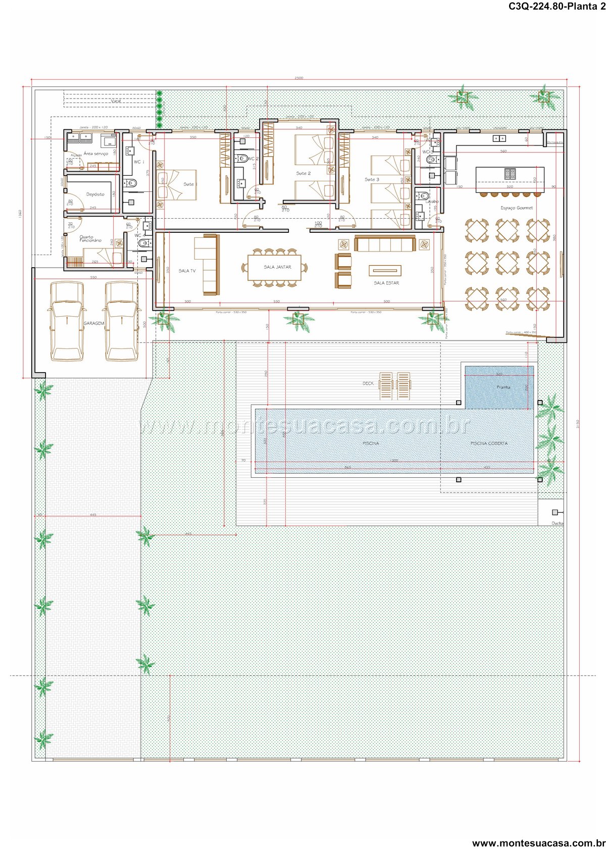
Este projeto de casa térrea moderna oferece uma combinação perfeita entre funcionalidade, conforto e estética contemporânea. Com 224,80m² de área construída, o layout foi cuidadosamente planejado para atender famílias que valorizam espaços integrados e momentos de lazer em casa.
Ambientes sociais integrados A área social é composta por sala de estar, sala de jantar e sala de TV, todas interligadas para promover convivência e fluidez. O destaque fica por conta do espaço gourmet, estrategicamente posicionado ao lado da piscina coberta e do deck, criando um ambiente ideal para receber amigos e familiares com estilo e praticidade.
Setor íntimo com suítes confortáveis A residência conta com três suítes amplas, cada uma com banheiro privativo, garantindo privacidade e conforto aos moradores. A suíte principal possui excelente iluminação natural e vista para o jardim, proporcionando tranquilidade e bem-estar.
Infraestrutura funcional e completa Além da garagem para dois veículos, o projeto inclui área de serviço, despensa, quarto de serviço e banheiro auxiliar. Esses espaços foram pensados para facilitar o dia a dia sem comprometer a estética do projeto. A circulação entre os ambientes é fluida, com destaque para o uso inteligente de materiais e acabamentos modernos.
Lazer e paisagismo valorizado A piscina coberta é um diferencial que permite o uso em qualquer estação do ano. O deck e as áreas verdes com palmeiras e plantas ornamentais complementam o cenário, criando uma atmosfera acolhedora e sofisticada. O paisagismo foi integrado ao projeto arquitetônico para valorizar cada metro quadrado do terreno.
Projeto ideal para quem busca qualidade de vida Este modelo é ideal para quem deseja morar com estilo, funcionalidade e contato com a natureza. A planta valoriza cada espaço, tornando o projeto uma excelente opção para terrenos planos em áreas urbanas ou residenciais.





















Avaliações
Não há avaliações ainda.