Descrição
Este sobrado contemporâneo de 221.03m² foi meticulosamente planejado para oferecer uma experiência de vida única, harmonizando espaços funcionais com um design arrojado. A planta baixa revela uma distribuição inteligente dos ambientes, promovendo fluidez e integração entre os setores sociais e privativos. A fachada, concebida com linhas modernas, estabelece um diálogo entre materiais e texturas, conferindo personalidade e valor estético ao conjunto.
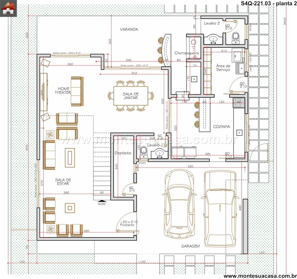
Integração e Convívio nos Ambientes Sociais
Ao adentrar a residência, você é recebido por uma ampla sala de estar, que se conecta perfeitamente à varanda gourmet. Esta área se torna o coração da casa, ideal para receber amigos e familiares com muito estilo. A varanda, um verdadeiro extensionista da sala, apresenta um espaço gourmet versátil, perfeito para refeições informais e momentos de descontração. O home theater dedicado oferece uma experiência cinematográfica imersiva, assegurando entretenimento de alta qualidade sem sair de casa.
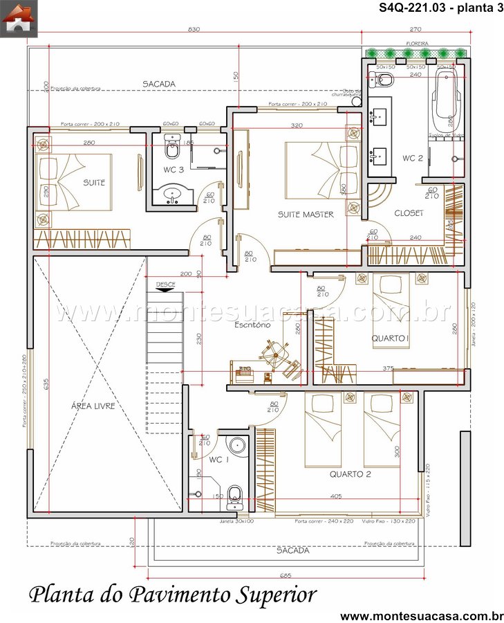
Privacidade e Conforto nos Ambientes Privativos
O pavimento superior abriga os quatro quartos, incluindo uma suíte master com closet integrado, garantindo privacidade e conforto para os moradores. Os demais quartos são igualmente aconchegantes e bem iluminados, compartilhando um banheiro social bem distribuído. Um escritório ou quarto de hóspedes complementa este andar, adicionando versatilidade ao layout. Os materiais de acabamento foram selecionados para promover durabilidade e um visual atemporal, com pisos de alto padrão e iluminação estrategicamente planejada.
Funcionalidade e Otimização de Espaços
O projeto prioriza a funcionalidade em cada detalhe, incorporando um depósito espaçoso para organização e uma área de serviço prática. A circulação foi otimizada para garantir fácil acesso a todos os cômodos, criando um fluxo natural e eficiente. A integração entre os ambientes internos e externos é potencializada por grandes esquadrias, que permitem a entrada abundante de luz natural e ventilação cruzada. Este sobrado representa o equilíbrio perfeito entre o requinte da arquitetura contemporânea e as necessidades de uma família moderna, criando um lar que é tanto um refúgio quanto um espaço para celebração.
















Avaliações
Não há avaliações ainda.