Descrição
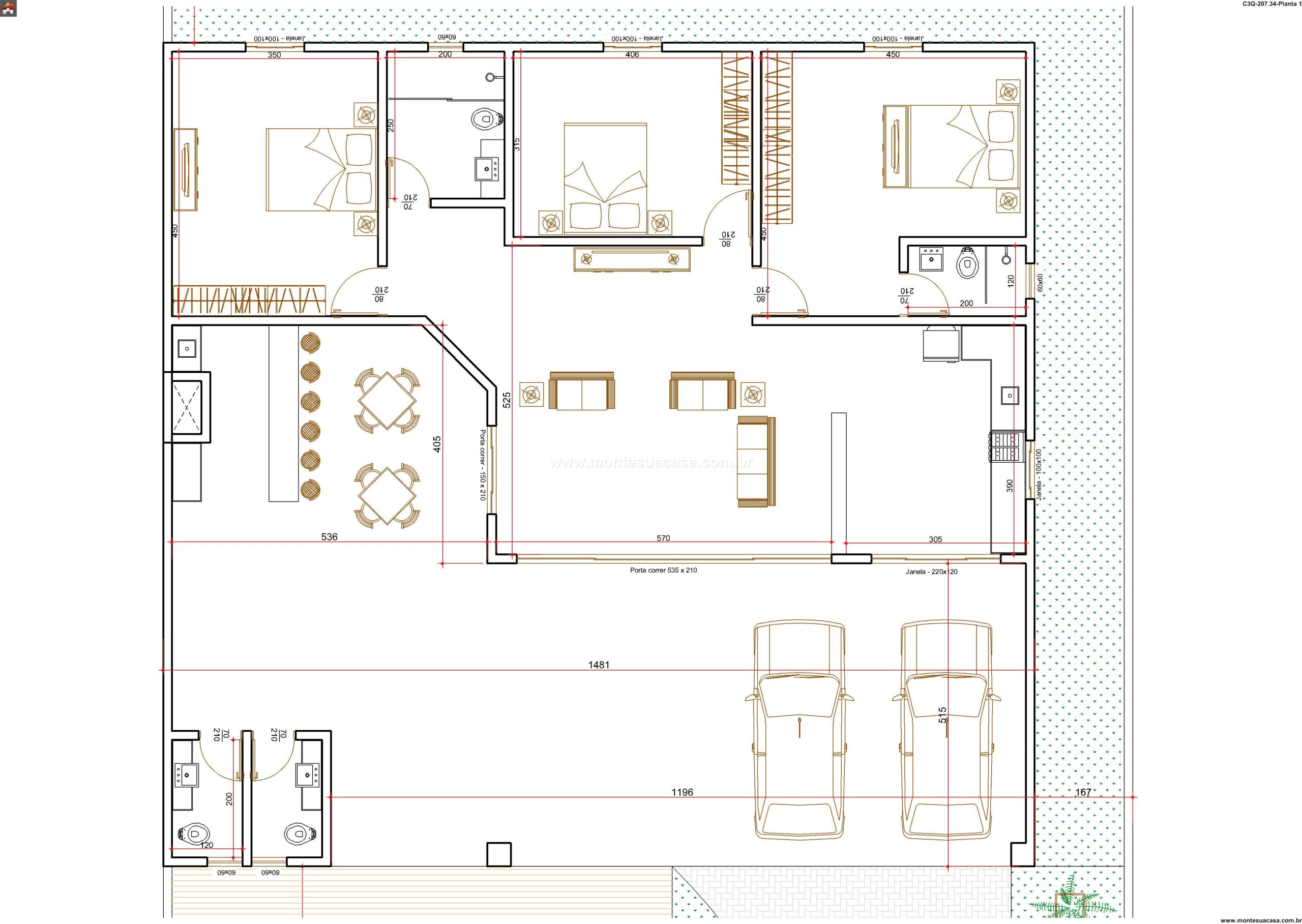
Esta casa térrea de 207,34m² combina funcionalidade, conforto e estética contemporânea em um projeto ideal para famílias que valorizam espaços bem distribuídos e integração entre ambientes. Com três dormitórios, sendo uma suíte, o layout privilegia a privacidade dos moradores sem abrir mão da convivência social.
Ambientes sociais integrados A área social é composta por sala de estar, sala de jantar e cozinha em conceito aberto. A disposição dos móveis favorece a circulação e a interação entre os ambientes. A cozinha conta com uma bancada funcional e espaço para refeições rápidas, enquanto a sala de jantar acomoda confortavelmente seis pessoas. Grandes aberturas proporcionam iluminação natural abundante e ventilação cruzada.
Área íntima e funcionalidade Os três quartos estão posicionados de forma estratégica, garantindo tranquilidade e conforto. A suíte principal possui armário embutido e banheiro privativo. Os outros dois dormitórios compartilham um banheiro social bem dimensionado. Todos os quartos têm janelas amplas voltadas para áreas externas ajardinadas.
Garagem e área externa A garagem coberta comporta dois veículos e uma motocicleta, com acesso direto à entrada principal. A área externa inclui um espaço gourmet com mesa para refeições ao ar livre, ideal para encontros familiares e momentos de lazer. O paisagismo complementa o projeto com vegetação ornamental e pátios revestidos.
Design moderno e otimizado O projeto apresenta linhas retas, cobertura plana e fachada com acabamentos em pedra e pintura lisa. A planta foi pensada para otimizar cada metro quadrado, oferecendo conforto térmico e praticidade no dia a dia. A circulação entre os ambientes é fluida, e os espaços foram planejados para facilitar a rotina dos moradores.
Ideal para terrenos de esquina Este modelo se adapta perfeitamente a terrenos de esquina, aproveitando a posição para valorizar a fachada e distribuir os ambientes de forma inteligente. A proposta é moderna, funcional e pensada para quem busca um lar acolhedor com estilo contemporâneo.















Avaliações
Não há avaliações ainda.