Descrição
Projeto arquitetônico moderno com 3 quartos e área de lazer completa
Design contemporâneo e funcional
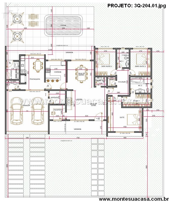
O projeto 3Q-204.01 é uma residência térrea com 204,01m², ideal para quem busca conforto, estética e integração com o exterior. A fachada combina branco, madeira e tons terrosos, criando uma composição elegante e acolhedora. O telhado plano reforça o estilo moderno. Grandes vãos envidraçados garantem iluminação natural em todos os ambientes.
Planta inteligente e bem distribuída
A planta oferece três dormitórios: uma suíte principal e duas demi-suítes que compartilham um banheiro funcional. A área social é integrada, com sala de estar, sala de jantar e cozinha em conceito aberto. Essa configuração favorece a convivência e amplia a sensação de espaço.
Além disso, o projeto inclui:
- Escritório reservado para trabalho remoto ou estudos
- Depósito funcional para organização
- Garagem coberta para dois veículos
Área externa com piscina e espaço gourmet
A área de lazer é um dos grandes diferenciais. A varanda se conecta à piscina oval e ao espaço gourmet com churrasqueira. Esse conjunto cria um ambiente perfeito para descanso e confraternização. O paisagismo tropical valoriza o terreno e proporciona frescor e beleza ao conjunto.
Ideal para terrenos urbanos
Com layout inteligente e proporções equilibradas, o projeto se adapta bem a terrenos urbanos com frente ampla. A circulação interna é eficiente. O aproveitamento do espaço externo amplia a sensação de liberdade e bem-estar.
Estilo e conforto em harmonia
Este projeto é uma excelente escolha para quem deseja uma casa moderna, funcional e com personalidade. A combinação entre estética contemporânea, ambientes integrados e área de lazer completa torna o 3Q-204.01 uma solução arquitetônica de alto padrão.










Avaliações
Não há avaliações ainda.