Descrição
Conceito geral do projeto
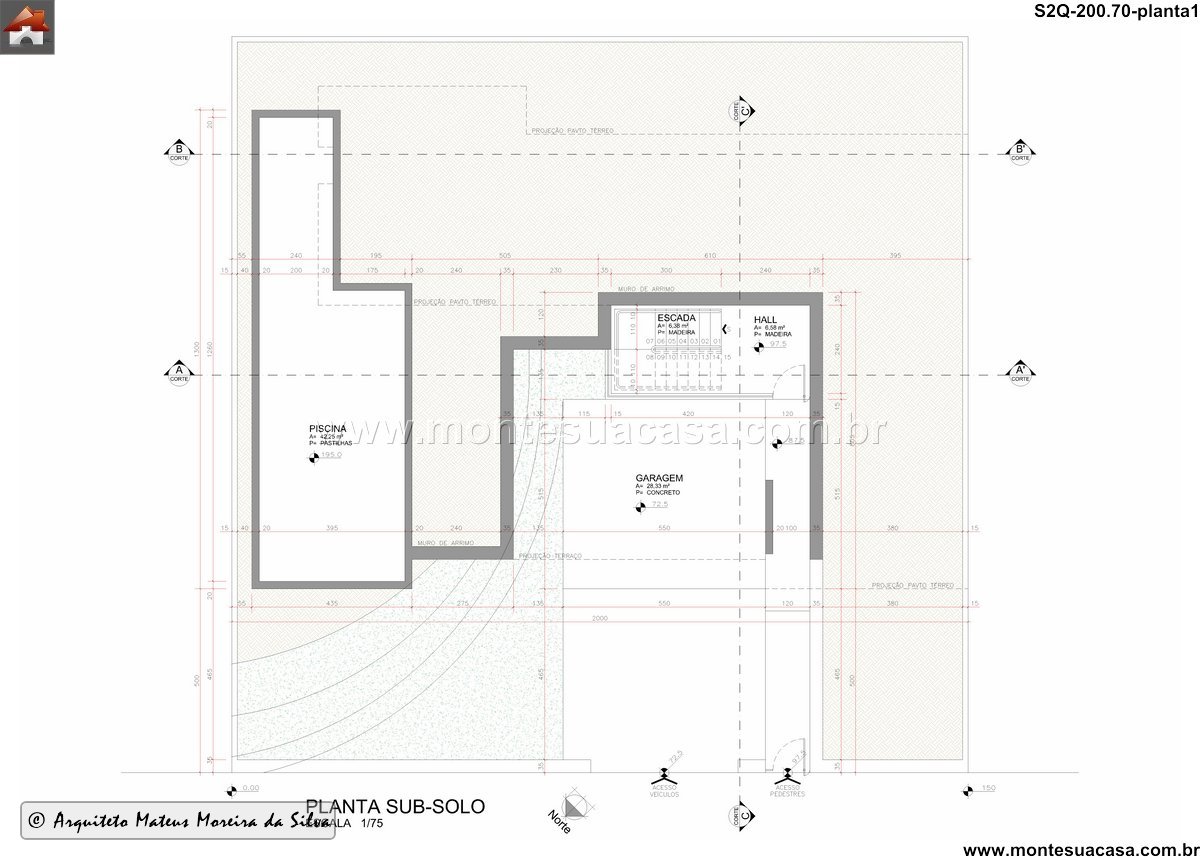
Esta casa moderna de 200,70 m² foi desenvolvida para um terreno em aclive acentuado, explorando desníveis como elementos arquitetônicos que valorizam a vista e ampliam a sensação de integração entre os pavimentos. A implantação distribui a garagem no subsolo e posiciona os ambientes principais no nível superior, oferecendo maior privacidade e uma relação direta com a área externa. O projeto utiliza linhas retas, grandes planos de vidro e volumes limpos, resultando em uma residência contemporânea e funcional.
Setorização inteligente dos pavimentos
O subsolo abriga a garagem com acesso independente, o hall de entrada e a escada principal. Essa organização garante circulação eficiente e uma transição natural até o pavimento térreo. No nível superior estão a área social, a área íntima e os espaços de lazer. A cozinha se conecta ao estar através de um layout aberto, permitindo fluidez visual e ampliando o espaço de convívio. Grandes esquadrias levam luz natural para o interior e abrem completamente para a área da piscina, criando continuidade entre interior e exterior.
Área íntima prática e confortável
A casa possui três dormitórios, sendo uma suíte com closet e banheiro amplo. Os outros quartos se distribuem ao longo da circulação, junto a um banheiro completo. A lavanderia está estrategicamente localizada próxima aos quartos, evitando deslocamentos desnecessários. Todos os ambientes íntimos receberam atenção à ventilação cruzada e iluminação natural.
Lazer completo no pavimento térreo
O destaque do projeto é a área externa. A piscina alongada acompanha o volume da casa e cria um eixo visual contínuo. O terraço central organiza o espaço e conecta piscina, sala e escada principal. Já o terraço verde funciona como área complementar de descanso, trazendo equilíbrio ao conjunto. O deck lateral oferece um ponto elevado para contemplação, reforçando a interação com o entorno.
Arquitetura voltada para o aclive
A fachada frontal expressa claramente o desnível do terreno. Os volumes superiores avançam levemente, enquanto a base em pedra natural ancora visualmente o subsolo. A escada envidraçada verticaliza a composição e se transforma em elemento marcante da fachada. A casa foi pensada para aproveitar o aclive sem excessos de corte, o que reduz custos e preserva a leitura natural do terreno.










Avaliações
Não há avaliações ainda.