Descrição
Conceito e Integração Espacial
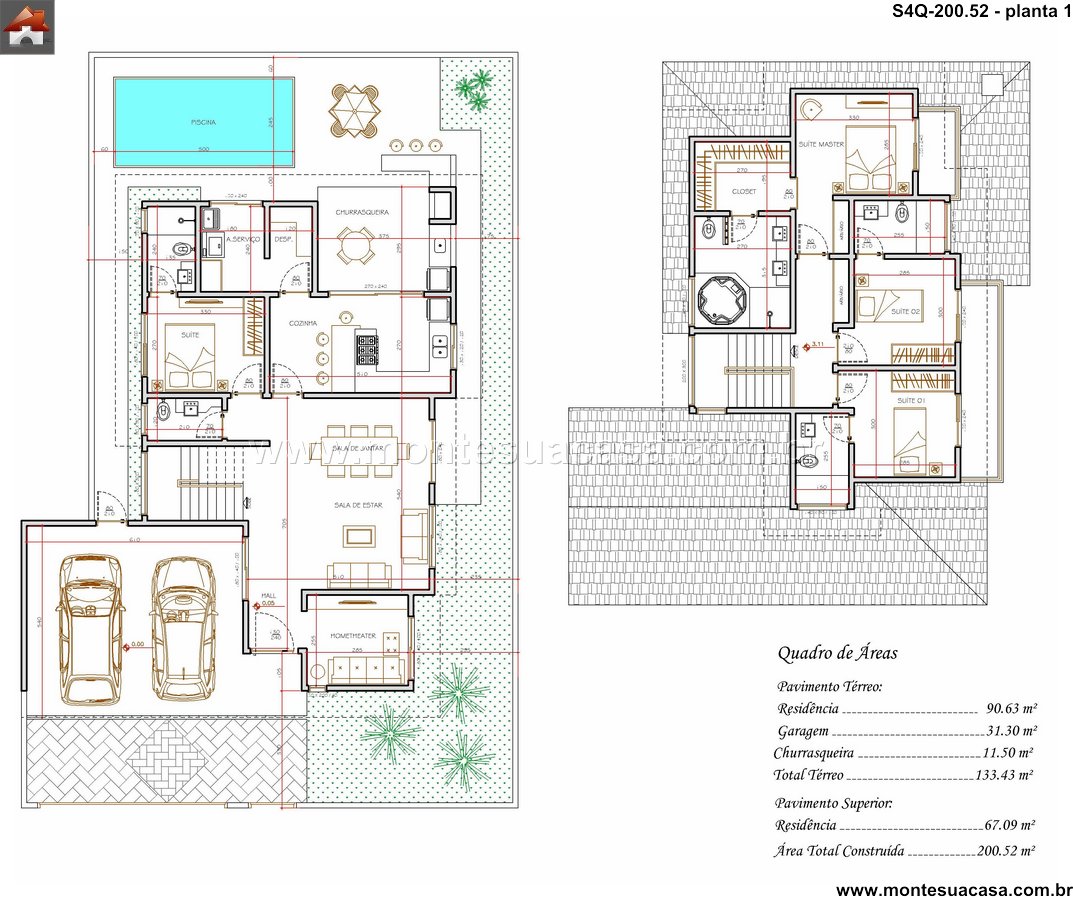
Este projeto de sobrado contemporâneo, com 200.52 metros quadrados, foi meticulosamente planejado para oferecer uma experiência de vida única. A arquitetura privilegia a integração entre os ambientes, promovendo uma fluidez que amplia a sensação de amplitude e aconchego. A fachada dialoga com o interior, criando uma transição suave e convidativa. A planta inteligente garante privacidade quando necessário, sem abrir mão da conexão visual e espacial que define o conceito moderno. Cada detalhe foi pensado para maximizar o conforto e a praticidade no dia a dia da família.
Ambientes Social e Lazer Integrados
A área social do sobrado se destaca pela sua configuração integrada. A sala de estar se conecta perfeitamente à sala de jantar e à área gourmet, formando um grande espaço de convivência. Este layout é ideal para receber amigos e familiares, promovendo interação e descontração. A cozinha, integrada ao ambiente, conta com ilha central e é totalmente funcional. A iluminação natural é aproveitada ao máximo, inundando os ambientes com luz e criando uma atmosfera acolhedora. A circulação foi otimizada para garantir conforto e praticidade.
Comforto e Privacidade nos Quartos
O projeto abriga quatro quartos, sendo uma suíte master com amplo closet e banheiro privativo. Os quartos são bem distribuídos pelo andar superior, assegurando privacidade e sossego para todos os moradores. Cada ambiente incorpora iluminação e ventilação naturais, contribuindo para o bem-estar. Os banheiros sociais e privativos seguem um padrão de acabamento de alta qualidade, com revestimentos que aliam durabilidade e sofisticação. O projeto de iluminação artificial complementa a atmosfera, criando ambientes aconchegantes à noite.
Projeto Arquitetônico Completo e Funcional
Este sobrado de 200.52m2 representa um projeto arquitetônico completo e funcional. A circulação vertical é resolvida com elegância, integrando os pavimentos de forma harmoniosa. A área externa pode ser complementada com um jardim ou espaço de churrasco, conforme a necessidade do cliente. O desenho das esquadrias e a escolha dos materiais priorizam a eficiência energética e a baixa manutenção. Este é um projeto que valoriza cada metro quadrado, entregando uma residência moderna, prática e perfeitamente adaptada ao estilo de vida contemporâneo.
















Avaliações
Não há avaliações ainda.