Descrição
Este projeto de sobrado contemporâneo, com 181.23 metros quadrados, foi meticulosamente planejado para oferecer conforto, praticidade e elegância para a família moderna. Com uma distribuição inteligente dos ambientes, a residência se destaca pela fluidez entre os espaços, promovendo uma convivência harmoniosa e acolhedora. A arquitetura valoriza a integração de áreas, criando um senso de amplitude e continuidade que encanta à primeira vista.
Integração e Convívio
O coração da casa é sem dúvida a área social, que une a sala de jantar a um moderno espaço gourmet. Este layout é perfeito para receber amigos e familiares, permitindo que o anfitrião interaja com todos enquanto prepara refeições sofisticadas. A cozinha, integrada ao ambiente, facilita o serviço e transforma cada jantar em uma experiência especial. A iluminação estratégica e a ventilação natural complementam a atmosfera aconchegante e convidativa.
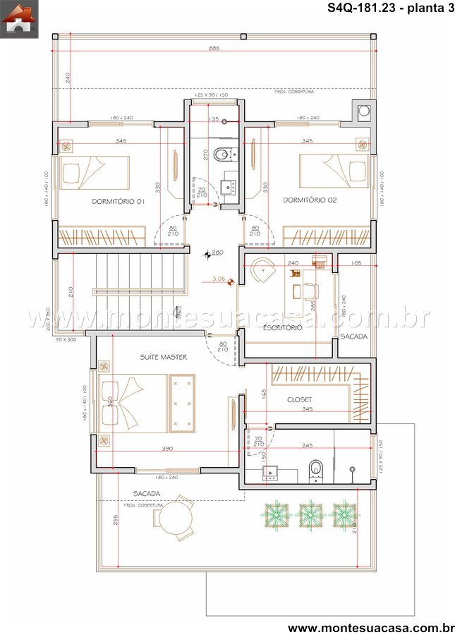
Conforto e Privacidade nos Quartos
A privacidade e o descanso são priorizados nos quatro quartos, localizados em setores mais reservados da residência. O projeto garante ambientes serenos, com amplas janelas que garantem iluminação natural e ventilação cruzada. Os dormitórios são verdadeiros refúgios, projetados para oferecer máximo conforto após um longo dia. O layout inteligente assegura que cada membro da família tenha seu espaço pessoal e funcional.
Funcionalidade e Praticidade
A funcionalidade é uma característica marcante deste projeto. A área de serviço, estrategicamente posicionada, oferece praticidade no dia a dia sem interferir na estética dos ambientes sociais. A circulação foi cuidadosamente estudada para conectar os diferentes setores da casa de forma lógica e eficiente. Dessa forma, o sobrado combina o melhor do design contemporâneo com a praticidade que a vida moderna exige, criando um lar que é ao mesmo tempo belo e extremamente funcional.















Avaliações
Não há avaliações ainda.