Descrição
Projeto moderno para duas famílias exigentes
Este sobrado moderno de 3 quartos foi pensado para quem busca conforto, integração total dos ambientes e uma área de lazer completa dentro de um terreno compacto. A proposta utiliza linhas retas, grandes aberturas e um equilíbrio entre estética e funcionalidade que garante uma residência elegante, prática e de alto desempenho espacial. Cada unidade foi planejada para oferecer privacidade, circulação fluida e áreas bem distribuídas, mantendo o visual contemporâneo característico das casas modernas californianas.
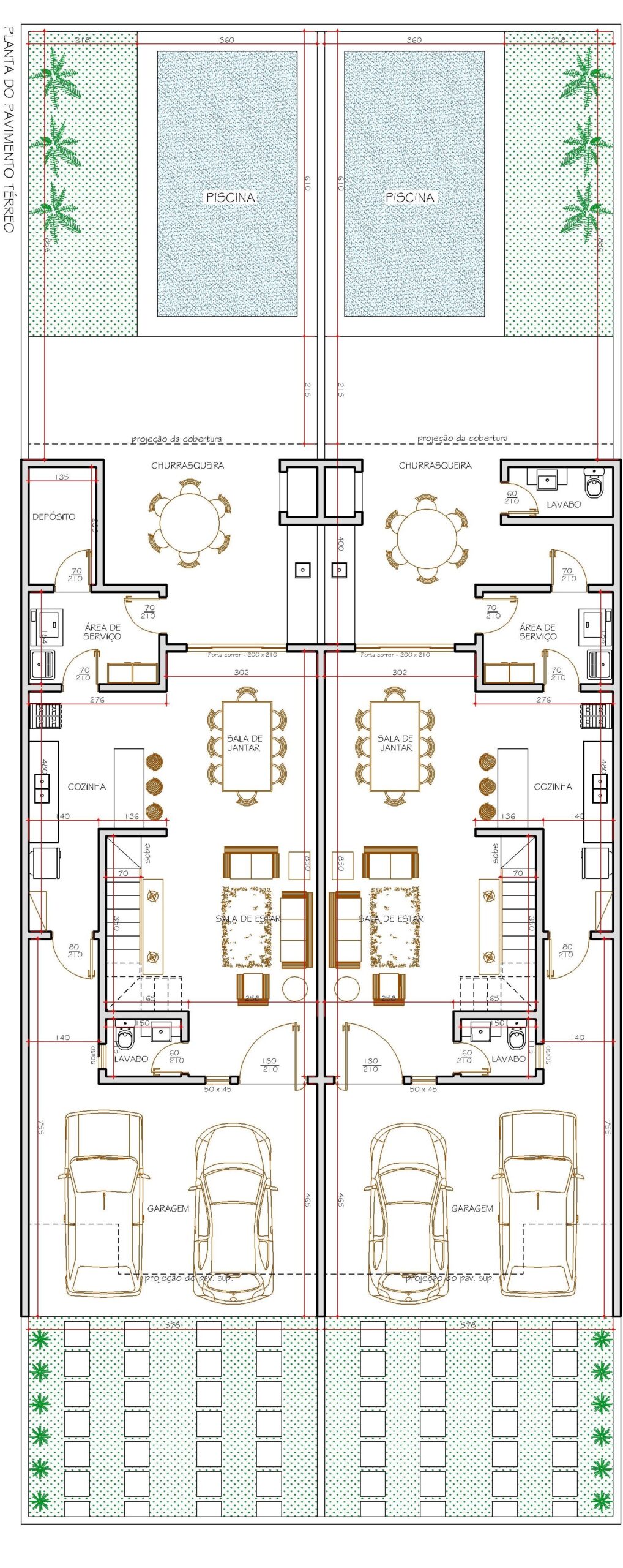
Pavimento térreo totalmente integrado
O pavimento térreo valoriza a convivência familiar. A entrada conduz diretamente à sala de estar, com ampla iluminação natural e espaço para receber confortavelmente. Logo ao lado, o ambiente de jantar conecta-se à cozinha em conceito aberto, fortalecendo a integração. A área de serviço fica discretamente posicionada, mantendo a organização do dia a dia. Um lavabo complementa o térreo e aumenta a praticidade da rotina.
A grande estrela do térreo é o espaço gourmet com churrasqueira, projetado para funcionar como extensão da sala e da cozinha. Essa área se abre diretamente para a piscina, criando o cenário ideal para reuniões com amigos, churrascos de fim de semana e momentos de descanso. A piscina possui dimensões generosas e posicionamento perfeito para garantir privacidade entre as unidades.
Garagem ao nível da rua
Diferente de muitos projetos compactos, aqui a garagem foi mantida no nível da rua. Isso elimina rampas internas desnecessárias e oferece acesso mais simples, ao mesmo tempo em que permite um jardim frontal bem distribuído com visual moderno e aconchegante.
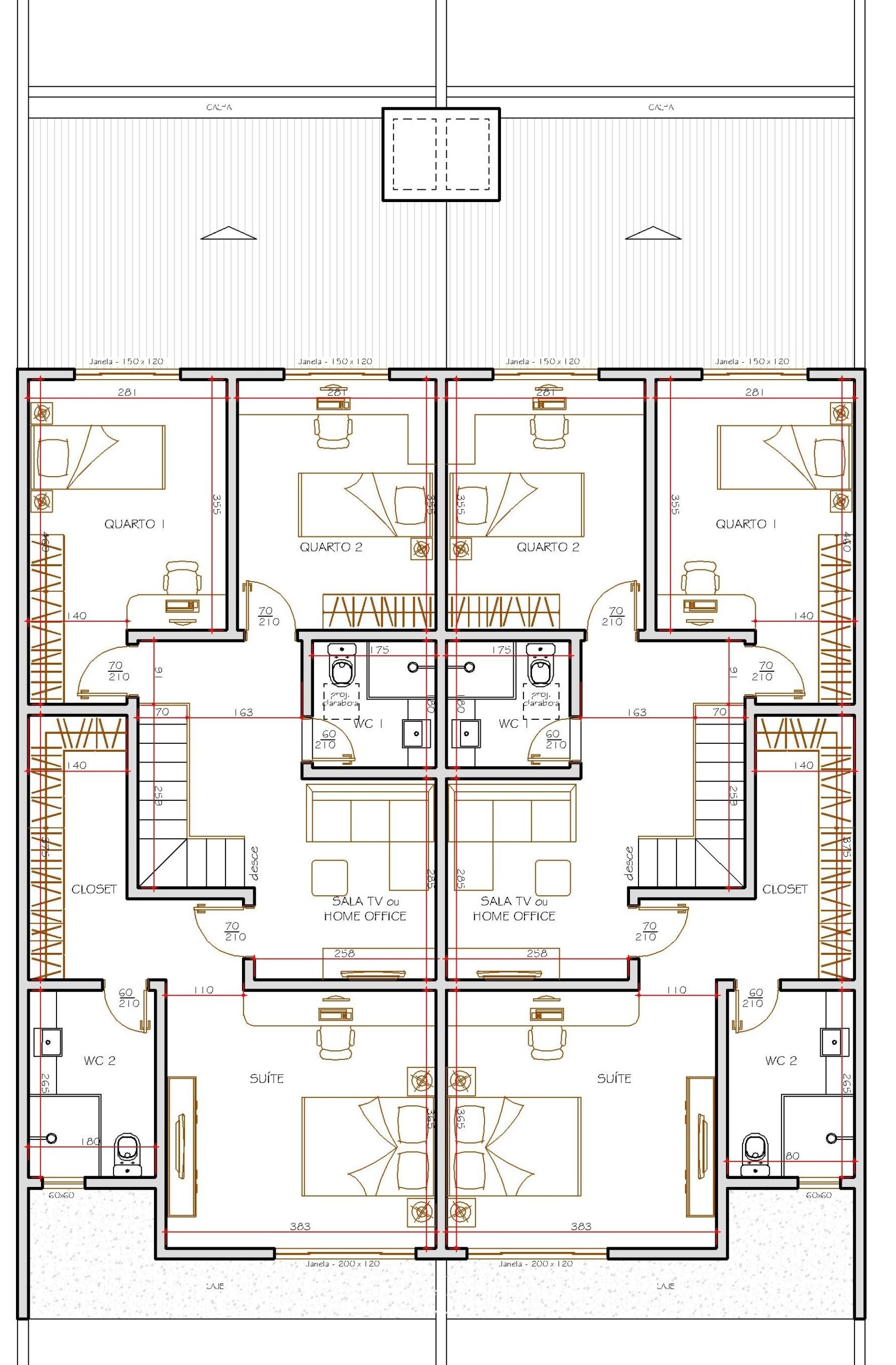
Pavimento superior funcional e confortável
O pavimento superior concentra a área íntima do sobrado. A suíte principal pode acomodar cama queen ou king, espaço para home office e amplo closet. Os outros dois quartos atendem perfeitamente crianças, hóspedes ou até um segundo escritório. Há também uma sala íntima centralizada que pode funcionar como sala de TV, escritório ampliado ou espaço de estudos.
O banheiro social foi projetado com ventilação eficiente e área de banho confortável. A circulação é direta, sem corredores excessivos, garantindo maior aproveitamento da metragem total.
Espaço, conforto e modernidade na medida certa
Com 172,26m² bem planejados, este sobrado moderno oferece todos os elementos desejados por famílias que valorizam integração, lazer privativo e ambientes funcionais. A fachada com varandas, platibandas marcantes e paleta moderna reforça a estética contemporânea enquanto a planta bem distribuída garante o uso inteligente de cada metro quadrado.
Esse projeto é ideal para ampliar o portfólio de construtoras, investidores ou clientes finais que buscam uma solução moderna, atrativa e altamente vendável.














Avaliações
Não há avaliações ainda.