Descrição
Implantação eficiente em terreno irregular
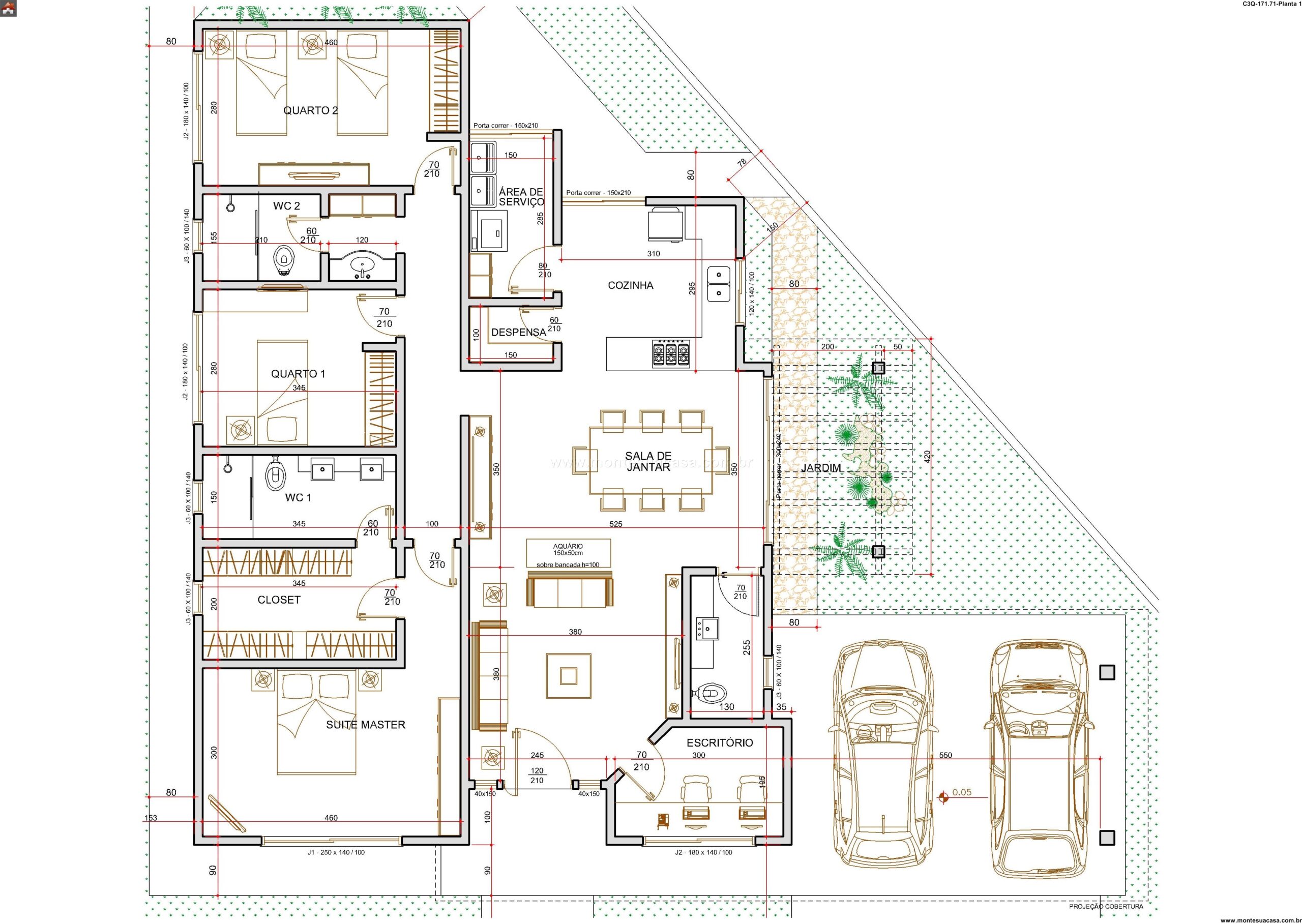
Este projeto de 171,71 m² foi desenhado para um lote triangular e inclinado, explorando cada metro disponível sem comprometer conforto. A implantação frontal acomoda garagem coberta para dois carros, garantindo praticidade imediata ao chegar. A circulação externa foi organizada para evitar desperdício de área, concentrando jardins laterais e fundos em faixas funcionais que valorizam a casa sem criar manutenção desnecessária.
Setor social totalmente integrado
A sala de jantar ocupa posição central e se conecta diretamente à cozinha ampla, criando fluxo contínuo e eficiente. Essa escolha elimina deslocamentos inúteis e melhora o uso diário do ambiente. A sala de estar se posiciona à frente, com abertura generosa para o jardim frontal, trazendo luminosidade e sensação de amplitude. A integração entre jantar, estar e cozinha transforma a rotina em algo mais funcional, sem excessos decorativos para compensar falhas de projeto.
Cozinha estratégica com apoio completo
A cozinha foi dimensionada de forma racional, com ilha central e acesso imediato à despensa e à área de serviço. Tudo fica ao alcance, evitando deslocamentos longos e improdutivos. A área de serviço externa, discreta mas ampla, garante organização sem interferir na área social.
Setor íntimo com distribuição lógica
A casa possui três quartos: suíte master, quarto 1 e quarto 2. A suíte oferece closet espaçoso e banheiro com cuba dupla, soluções que realmente impactam no uso diário, não apenas no visual. Os outros dois quartos compartilham banheiro bem dimensionado e posicionados em ala reservada, garantindo privacidade real — não apenas sugerida.
Escritório frontal funcional
O escritório próximo à entrada funciona de forma prática para quem trabalha em casa. O posicionamento evita circulação por áreas íntimas, reduz ruído e facilita atendimento profissional quando necessário.
Churrasqueira nos fundos com circulação independente
A área de churrasqueira, com 24,08 m², fica totalmente isolada do setor íntimo. Esse acerto evita cheiro, ruído e movimentação onde não deveria haver. O ambiente cobre refeições externas, lazer e convivência sem atrapalhar o restante da casa.
Paisagismo direto ao ponto
Os jardins foram distribuídos de maneira objetiva, complementando a fachada e criando respiros visuais sem excesso ornamental. A frente recebe vegetação baixa e controlada; os fundos abrigam área sombreada para lazer.















Avaliações
Não há avaliações ainda.