Descrição
Visão Geral do Projeto
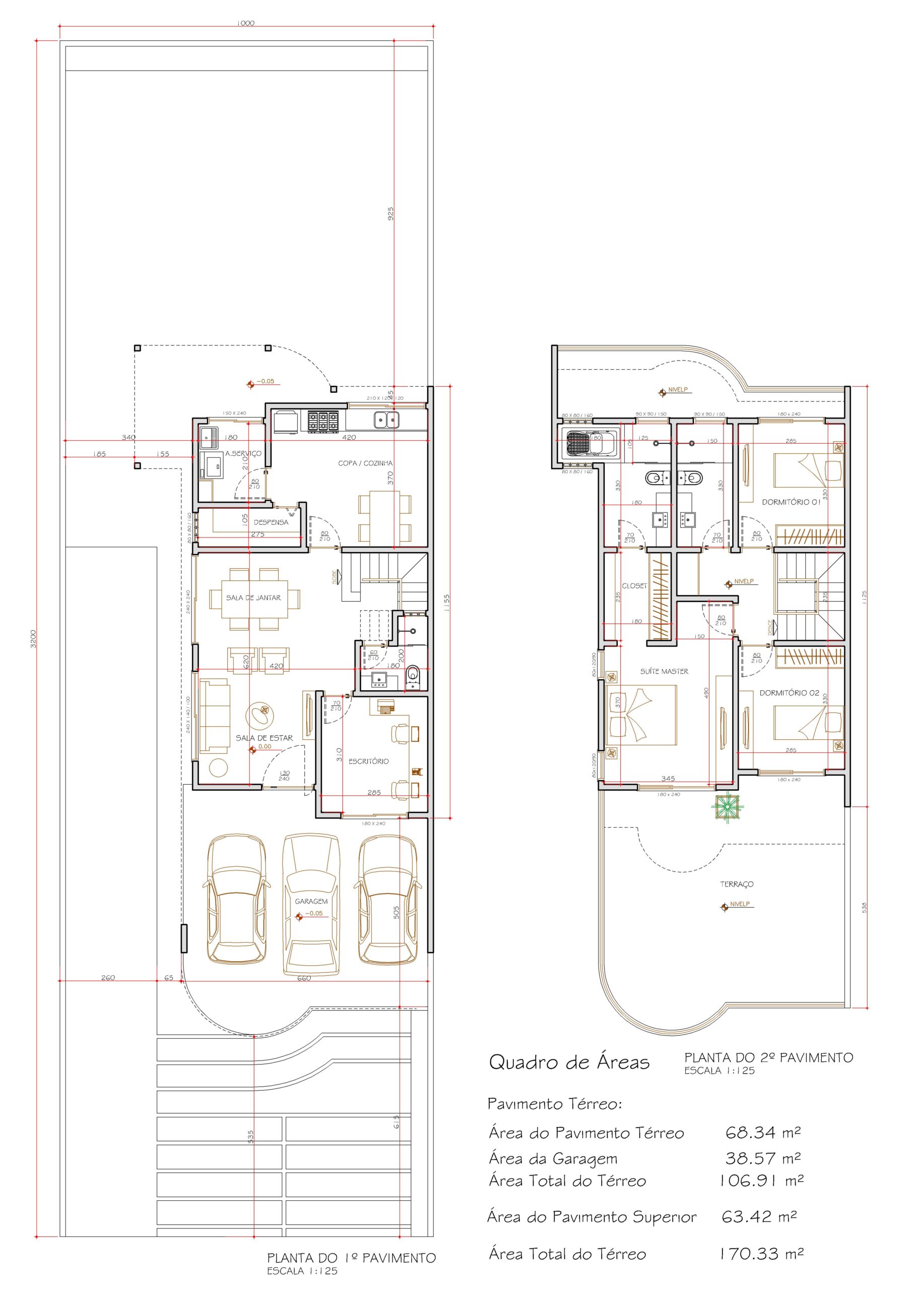
Este sobrado moderno de 170,33m² entrega exatamente o que compradores exigentes procuram: funcionalidade real, áreas integradas e uma arquitetura que valoriza cada metro do terreno. A composição combina garagem ampla para três veículos, um terraço imponente no pavimento superior e ambientes internos pensados para uso diário sem desperdício de espaço. O projeto resolve muito bem terrenos urbanos estreitos, garantindo excelente circulação interna e forte apelo comercial.
Distribuição Inteligente do Pavimento Térreo
A entrada principal conduz a uma sala de estar confortável, com integração direta à sala de jantar. Essa conexão cria fluxo contínuo e facilita o uso diário. A cozinha, posicionada de forma estratégica, conta com copa e acesso rápido à despensa, o que melhora a organização e mantém o ambiente funcional. O térreo ainda oferece lavabo e um escritório bem posicionado, ideal para quem trabalha de casa. A garagem coberta comporta dois carros confortavelmente, com área para um terceiro veículo logo à frente, tudo protegido e organizado.
Conforto e Privacidade no Pavimento Superior
No segundo pavimento, a circulação é objetiva e separa os ambientes de forma eficiente. A suíte master foi planejada com closet espaçoso e banheiro com duas cubas, reforçando praticidade e conforto. Os outros dois dormitórios possuem dimensões adequadas para rotina familiar, com janelas amplas para iluminação natural. O destaque absoluto é o terraço frontal, amplo e convidativo, perfeito para criar uma área de convivência sofisticada, seja com mesas, lounges ou até um spa externo.
Integração com o Exterior
O paisagismo complementa a arquitetura com áreas abertas amplas no térreo. O projeto permite criar um espaço gourmet, áreas de descanso ou ambientes de lazer sob pergolados ou ombrelones. A volumetria curva traz personalidade e suaviza a fachada, enquanto o terraço cria um segundo pavimento imponente, que valoriza o conjunto e aumenta o apelo comercial do imóvel.
Arquitetura Moderna com Forte Atração Visual
A fachada em linhas limpas, iluminação bem distribuída e telhado cerâmico garantem um visual elegante e atemporal. O sobrado transmite solidez, organização e cuidado no design — características que o tornam atraente tanto para uso próprio quanto para investimento.













Avaliações
Não há avaliações ainda.