Descrição
Casa sobrado de 3 quartos com varanda e churrasqueira – conforto e elegância em cada detalhe
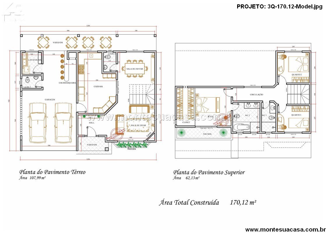
Este projeto de casa sobrado de 3 quartos com 170,12m² combina harmonia estética, conforto e funcionalidade, ideal para famílias que desejam viver com espaço e praticidade. Sua fachada moderna com telhado aparente em várias águas e varandas integradas transmite imponência e charme, enquanto o interior oferece ambientes bem distribuídos e uma excelente iluminação natural.
Design imponente e funcionalidade inteligente
A fachada se destaca pelas linhas simétricas e o telhado em diferentes níveis, que valorizam o estilo arquitetônico. A garagem coberta para dois carros integra-se à entrada principal, proporcionando comodidade no dia a dia. A varanda frontal e a varanda gourmet nos fundos reforçam a proposta de lazer e convivência familiar, criando áreas ideais para momentos de descanso e confraternização.
Ambientes amplos e integrados no pavimento térreo
O pavimento térreo, com 107,99m², conta com sala de estar aconchegante integrada ao hall de entrada, sala de jantar espaçosa e uma cozinha funcional que se conecta diretamente à área gourmet com churrasqueira. A lavanderia e o lavabo completam o pavimento, oferecendo praticidade e organização. Essa integração favorece a ventilação cruzada e permite que os espaços sejam amplos e convidativos.
Privacidade e conforto no pavimento superior
No andar superior, com 62,13m², estão distribuídos os três dormitórios, sendo uma suíte master com closet e sacada privativa. Os banheiros são bem posicionados, otimizando o uso da área e garantindo conforto à família. A circulação entre os quartos é ampla, e as aberturas favorecem a entrada de luz natural, criando um ambiente arejado e agradável.
Conforto e elegância para a família moderna
Com 170,12m² de área construída, este projeto valoriza cada metro quadrado, equilibrando estética, conforto e funcionalidade. A varanda gourmet, as varandas superiores e a fachada com destaque em volumes e telhados fazem desta casa uma escolha perfeita para quem busca um sobrado elegante, acolhedor e prático para o cotidiano.









Avaliações
Não há avaliações ainda.