Descrição
Este projeto arquitetônico contemporâneo, com 161.62m² de área construída, foi meticulosamente planejado para oferecer conforto, praticidade e integração entre os ambientes. A residência se desenvolve em dois pavimentos, apresentando uma distribuição espacial inteligente que prioriza a qualidade de vida de seus moradores. A fachada, limpa e com elementos visuais equilibrados, estabelece um diálogo harmonioso com a rua, enquanto os volumes bem definidos conferem personalidade ao conjunto.
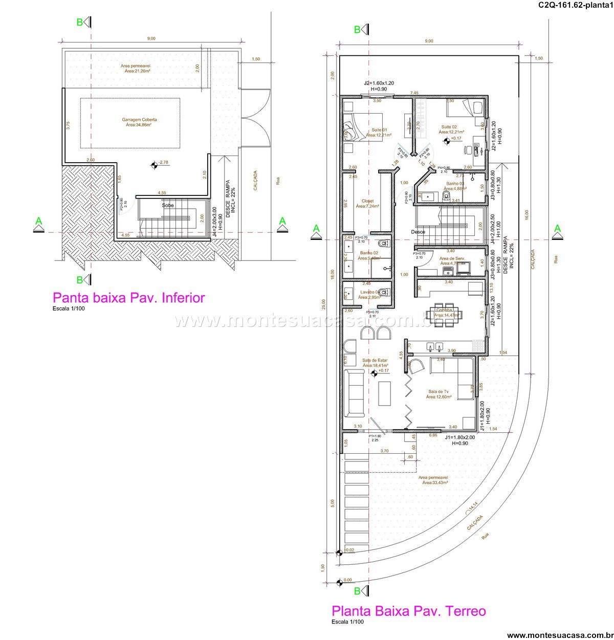
Acesso e Área de Serviços
O acesso à propriedade se dá de forma conveniente, com uma garagem coberta generosa, medindo 34.86m², capaz de abrigar veículos com segurança e conforto. A área permeável, de 21.26m², contribui para a drenagem natural do terreno. Adicionalmente, o pavimento inferior conta com uma área de serviço bem dimensionada, de 4.77m², assegurando a organização das tarefas domésticas diárias. Uma rampa com inclinação de 22% garante acessibilidade entre os diferentes níveis do terreno.
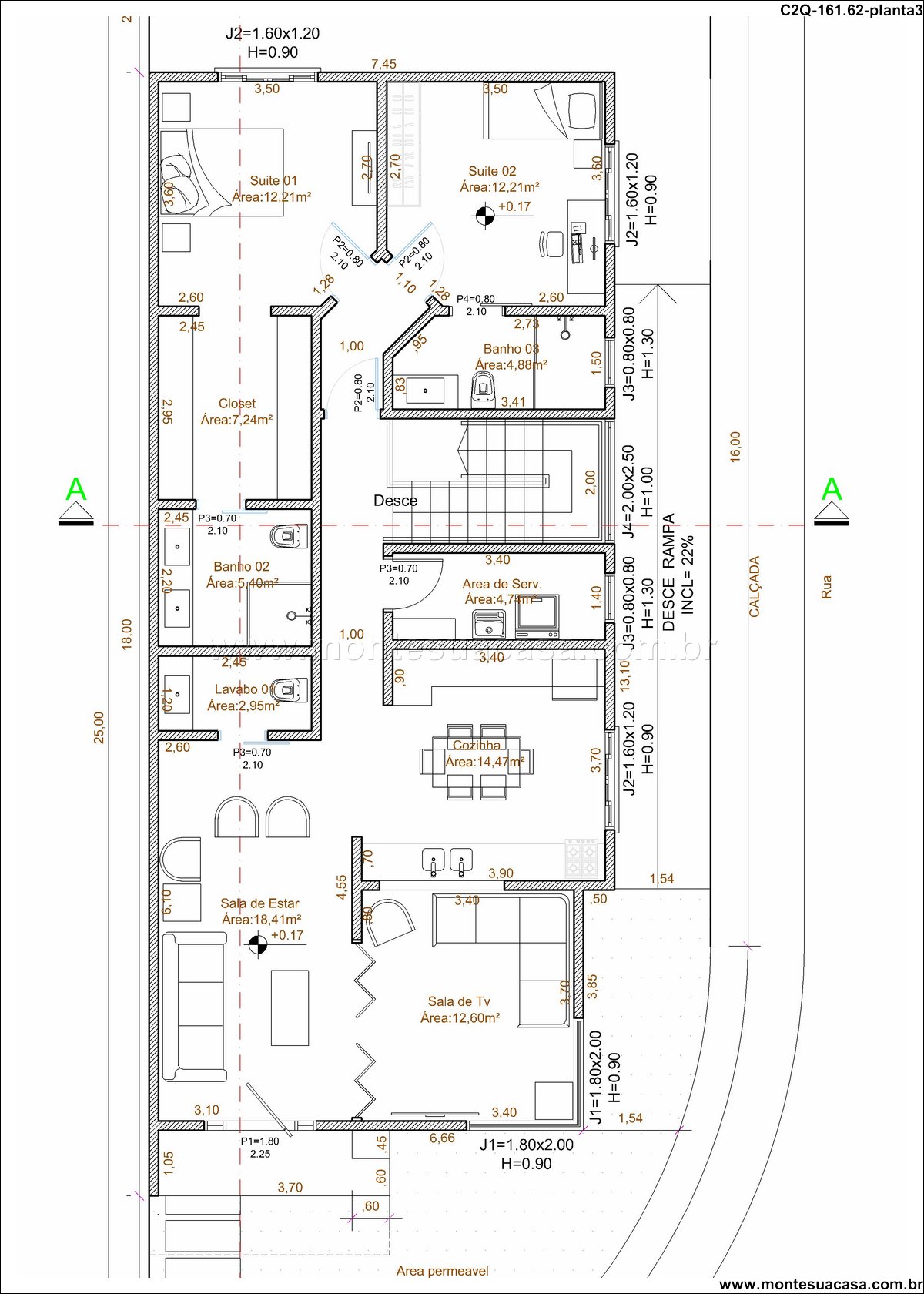
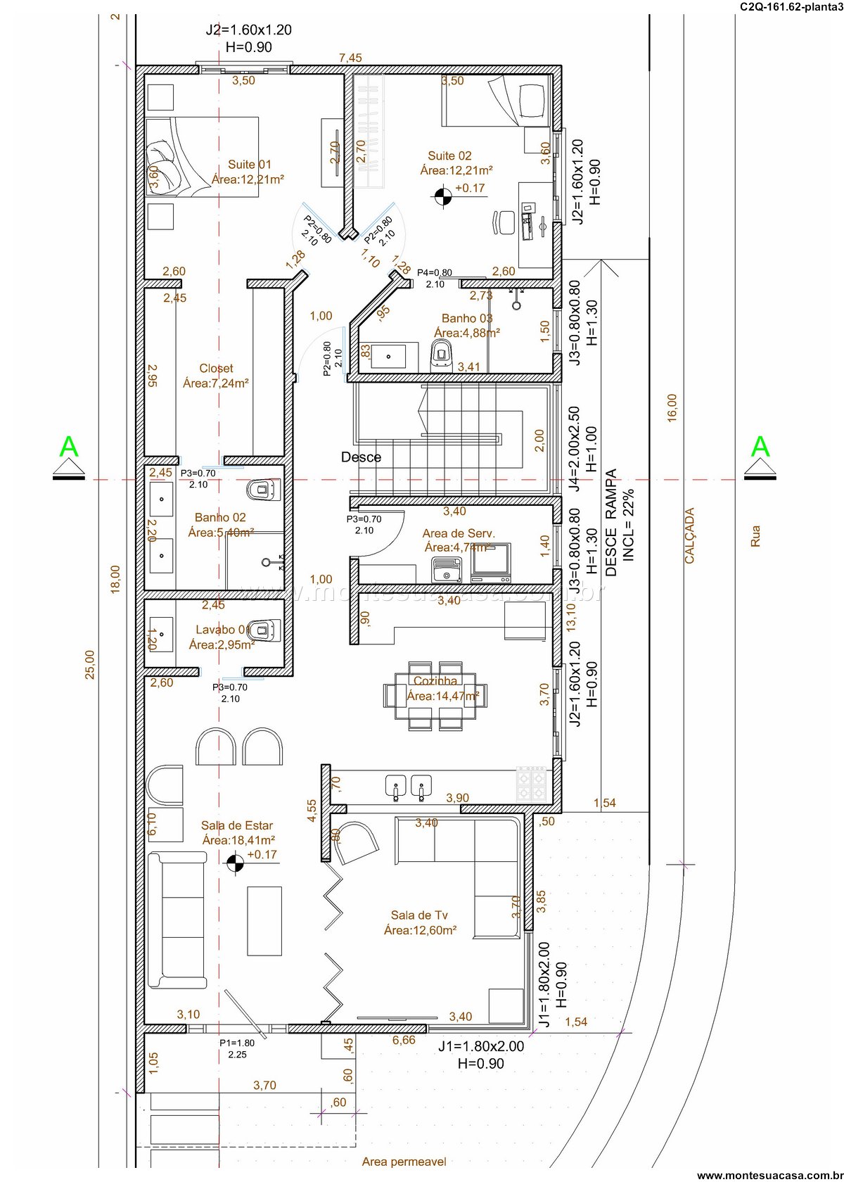
Ambientes Sociais Integrados
No pavimento superior, a planta se abre para um amplo e convidativo ambiente social. A Sala de Estar, com 18.41m², e a Sala de TV, com 12.60m², fluem naturalmente entre si, criando um espaço perfeito para o entretenimento e o convívio familiar. Este setor é integrado à Cozinha Americana, com 14.47m², equipada com uma ilha central (J2=1.60×1.20, H=0.90). Esta configuração promove uma experiência gastronômica única, permitindo interação completa durante o preparo de refeições.
Área Íntima e Conforto
A ala íntima da residência é composta por duas suítes bem providas. A Suite 01 e a Suite 02, cada uma com 12.21m², oferecem privacidade e conforto. Ambas são complementadas por banheiros privativos, sendo o Banho 02 com 5.46m² e o Banho 03 com 4.86m². Um lavabo de 2.95m², estrategicamente localizado próximo à área social, proporciona comodidade para os visitantes. As aberturas estrategicamente posicionadas, como as portas P1 (1.80×2.25) e P4 (0.80×2.10), garantem iluminação natural e ventilação cruzada em todos os cômodos, reforçando o conceito de uma habitação moderna, funcional e acolhedora.
































Avaliações
Não há avaliações ainda.