Descrição
Este sobrado de 155,50 m² foi desenvolvido para quem exige funcionalidade real, sem desperdício de área e sem decisões arquitetônicas que apenas “parecem boas no papel”. O projeto utiliza cada metro quadrado de forma direta, objetiva e eficiente, criando um layout fluido que melhora a rotina diária e elimina circulações inúteis. A casa atende famílias que desejam conforto, privacidade e organização interna, mantendo uma estética moderna com volumetria limpa e soluções simples de executar.
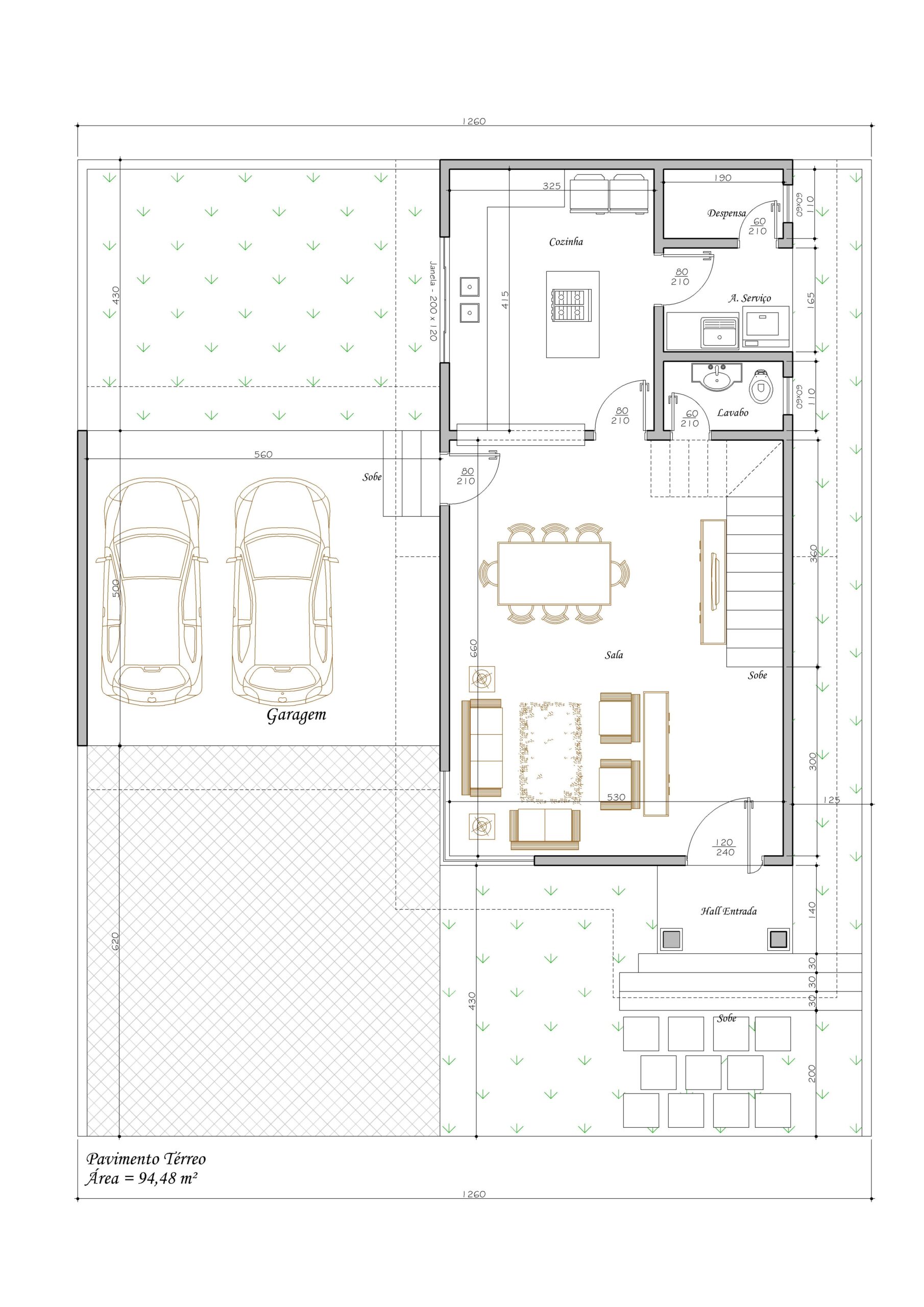
Pavimento Térreo Funcional
A entrada traz um hall protegido pelo pequeno pórtico frontal, garantindo transição confortável entre o exterior e o interior. A sala de estar se integra com a sala de jantar em um ambiente amplo, iluminado e preparado para receber. Essa integração não é apenas estética: ela facilita o uso diário e melhora a convivência.
A cozinha em formato inteligente oferece bancada extensa e conexão imediata com a área de serviço, o que elimina deslocamentos desnecessários. A despensa completa o conjunto e melhora o armazenamento.
A garagem para dois carros fica ao nível da rua, evitando rampas custosas e problemas futuros de manutenção. O acesso lateral garante praticidade ao entrar com compras ou circular até o fundo do terreno. O térreo inteiro é organizado para manter limpeza visual, funcionalidade e economia na obra.
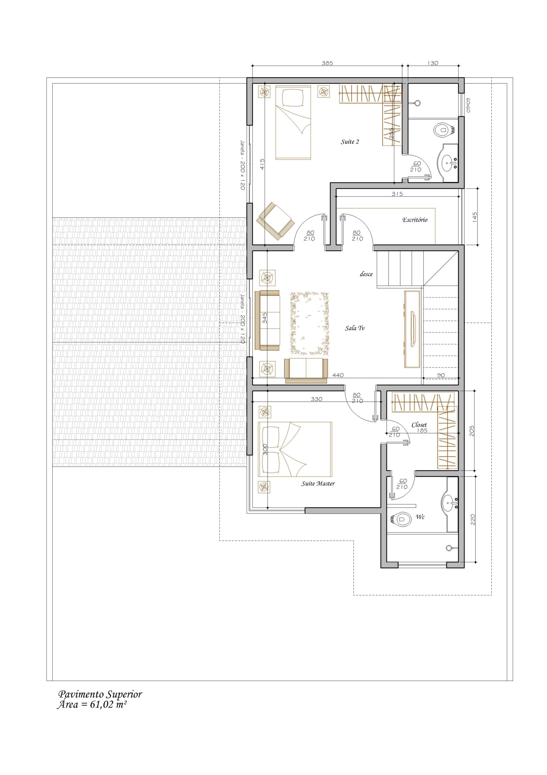
Pavimento Superior Bem Planejado
O piso superior apresenta duas suítes amplas, cada uma com boa área de circulação e espaços adequados para mobiliário real, não “móveis de planta”. A suíte master inclui closet independente e banheiro generoso, o que aumenta o conforto diário e valoriza o imóvel.
A sala de TV central evita corredores longos e oferece espaço adicional de convivência. O escritório complementa o pavimento e é útil para trabalho remoto, estudos ou organização pessoal. Essa distribuição evita improvisos e torna o uso da casa mais estratégico.
Arquitetura Externa
A fachada combina linhas simples, telhado tradicional e elementos contemporâneos. O grande pano de vidro vertical traz luz natural para as áreas internas e valoriza a estética sem exageros. A composição final transmite equilíbrio e facilidade de construção, evitando detalhes caros que quebram orçamento sem entregar benefícios reais.









Avaliações
Não há avaliações ainda.