Descrição
Projeto de Sobrado com 3 Quartos e 135,52m²
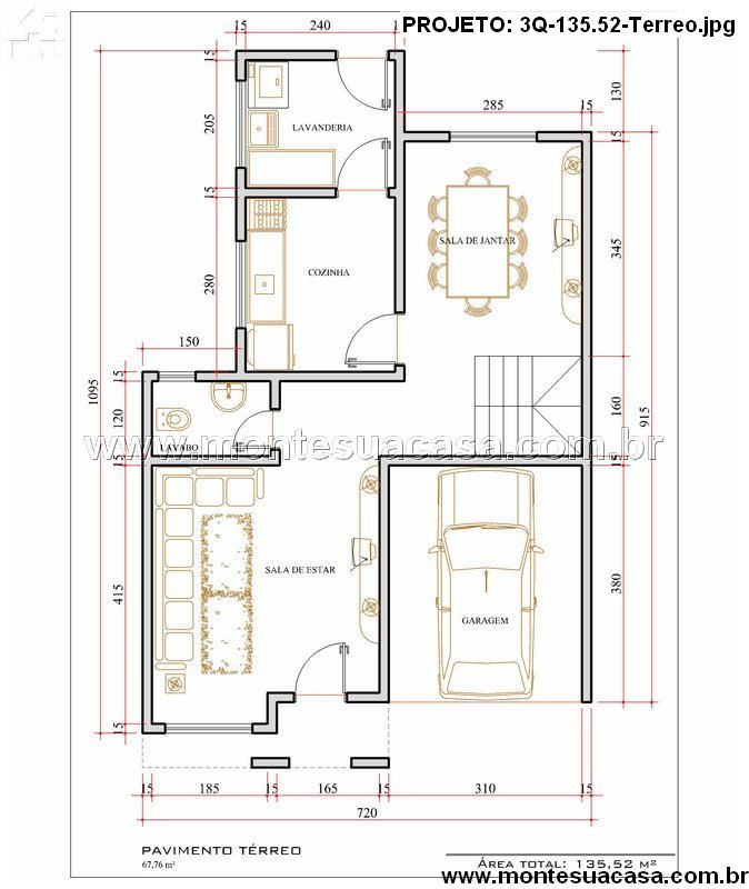
Este projeto de sobrado com 135,52m² apresenta uma planta moderna e funcional, ideal para famílias que buscam conforto e integração entre os ambientes. Com linhas retas e bem distribuídas, o projeto aproveita cada metro quadrado de forma inteligente, unindo elegância e praticidade em um design contemporâneo.
No pavimento térreo, o destaque vai para a sala de estar ampla, com acesso direto à garagem e excelente iluminação natural. Logo ao lado, o lavabo garante praticidade para o uso diário e para visitas. A cozinha é espaçosa e se conecta de forma fluida à sala de jantar, criando um ambiente perfeito para o convívio familiar. A lavanderia, discretamente posicionada, possui acesso independente, o que facilita as tarefas domésticas sem interferir nas áreas sociais.
Subindo ao pavimento superior, encontramos a área íntima da residência, composta por três dormitórios, sendo uma suíte com closet e dois banheiros completos. O destaque especial vai para a sala de estar íntima, um ambiente confortável e reservado para momentos de lazer, leitura ou TV em família. Essa configuração permite que cada integrante tenha seu espaço privado, mantendo ao mesmo tempo o sentimento de união e convivência.
A suíte principal conta com excelente ventilação e espaço generoso para armários, enquanto o closet se integra de forma elegante ao WC privativo, proporcionando funcionalidade e sofisticação. Os quartos adicionais são amplos e podem ser adaptados como escritórios ou quartos infantis, conforme a necessidade da família.
Além disso, o projeto valoriza a iluminação e ventilação natural, com janelas estrategicamente posicionadas e circulação eficiente. O sobrado 3Q-135.52 é ideal para terrenos a partir de 7,20 metros de frente, equilibrando design moderno, conforto e economia de construção.










Avaliações
Não há avaliações ainda.