Descrição
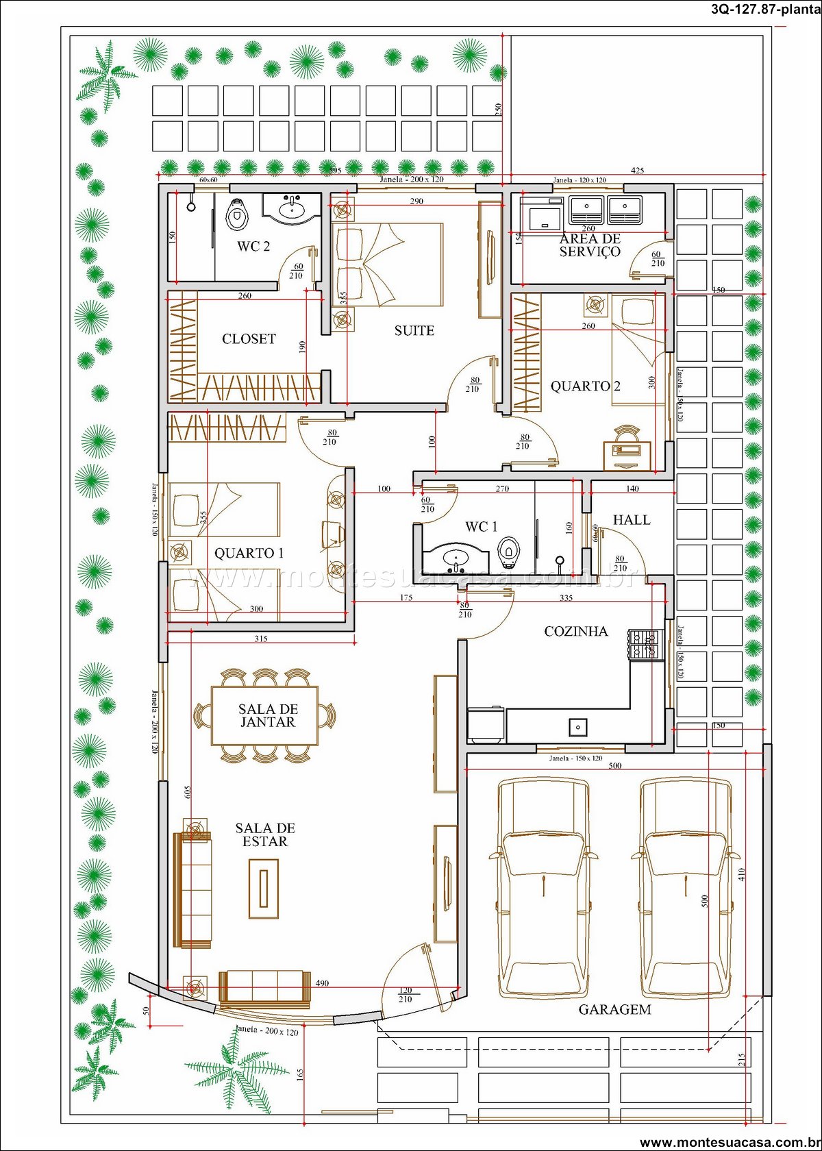
Projeto funcional e moderno para famílias exigentes Este projeto de casa térrea com 127,87m² combina funcionalidade, estética contemporânea e excelente aproveitamento de espaço. Ideal para famílias que valorizam conforto, privacidade e praticidade, a planta contempla três quartos, sendo uma suíte com closet, dois banheiros, sala de estar integrada à sala de jantar, cozinha funcional e área de serviço bem posicionada. A garagem coberta para dois carros garante comodidade e segurança no dia a dia.
Ambientes integrados e bem distribuídos A entrada principal leva ao hall que conecta os ambientes sociais e íntimos de forma fluida. A sala de estar é ampla e iluminada, com grandes janelas que favorecem a ventilação cruzada. A sala de jantar se integra à cozinha, criando um espaço ideal para receber amigos e familiares. A cozinha, por sua vez, é estrategicamente posicionada para facilitar o acesso à área de serviço, que é discreta e funcional.
Setor íntimo com conforto e privacidade O setor íntimo da casa é composto por dois quartos bem dimensionados e uma suíte espaçosa com closet e banheiro privativo. Os dormitórios são posicionados de forma a garantir tranquilidade e isolamento acústico, favorecendo o descanso dos moradores. O segundo banheiro atende aos quartos e visitantes com praticidade.
Fachada imponente e paisagismo acolhedor A fachada moderna combina elementos como telhado misto, volumes geométricos e revestimentos em pedra, criando uma estética sofisticada. O destaque fica por conta do cilindro lateral e das grandes aberturas envidraçadas, que valorizam a arquitetura e permitem entrada abundante de luz natural. O paisagismo frontal complementa o projeto com vegetação ornamental e caminhos bem definidos.
Ideal para terrenos urbanos Com dimensões otimizadas, este projeto se adapta perfeitamente a terrenos urbanos médios, oferecendo uma solução completa para quem busca morar bem sem abrir mão da estética e da funcionalidade.








Avaliações
Não há avaliações ainda.