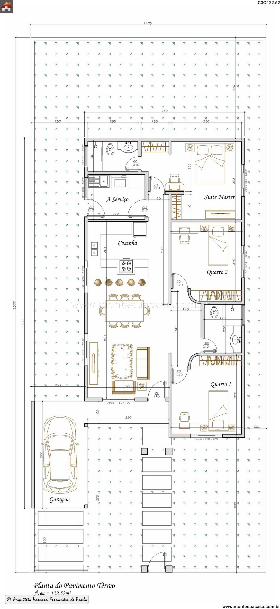
Descrição
Este projeto residencial de 122.52m2 redefine o conceito de convívio familiar ao integrar perfeitamente a cozinha, a sala de jantar e uma área gourmet. A planta inteligente promove um fluxo contínuo entre os ambientes, ideal para quem valoriza a praticidade e o entretenimento. A arquitetura prioriza a luminosidade natural e a sensação de amplitude, criando um espaço acolhedor e ao mesmo tempo sofisticado.
A Cozinha como Centro Social
A cozinha aberta é o coração da residência, projetada para ser não apenas um local de preparo de refeições, mas um ponto de encontro. Com ilha central ou balcão de apoio, ela se conecta visual e fisicamente à sala de jantar e à área gourmet. Esse layout incentiva a interação entre familiares e convidados, transformando qualquer reunião em uma experiência agradável e integrada. A escolha de materiais e acabamentos modernos garante durabilidade e um visual atemporal.
Integração e Funcionalidade
A área gourmet anexa amplia as possibilidades de lazer, oferec um espaço perfeito para churrascos e happy hours informais. A integração total com a sala de jantar permite que o anfitrião participe das conversas enquanto finaliza os preparativos. A praticidade é complementada pela presença de uma dependência de serviço bem localizada, com acesso independente. Este cômodo assegura que a funcionalidade da área social seja mantida sem interferir na estética e no conforto do ambiente principal.
Conceito e Conforto
O projeto adota uma linguagem arquitetônica contemporânea, com linhas clean e uma paleta de cores que pode variar entre tons neutros e acentos mais ousados. A iluminação, tanto natural quanto artificial, foi cuidadosamente planejada para destacar texturas e criar atmosferas diferentes conforme o horário e a ocasião. O resultado é uma casa que combina estilo, conforto e alta funcionalidade em cada um de seus 122.52m2, perfeita para uma vida moderna e dinâmica. O projeto garante um ambiente onde cada detalhe contribui para uma experiência de morar única e prazerosa.











Avaliações
Não há avaliações ainda.