Descrição
Casa térrea moderna com integração e conforto
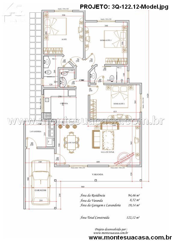
Este projeto de casa térrea com 122,12 m² combina funcionalidade, conforto e elegância em um layout pensado para famílias que valorizam espaços bem distribuídos e integração entre ambientes. A residência conta com três quartos, sendo uma suíte e duas demi-suítes, proporcionando privacidade e praticidade para todos os moradores.
Ambientes sociais integrados
A sala de estar, ampla e acolhedora, conecta-se diretamente à sala de jantar e à cozinha, criando uma atmosfera perfeita para receber amigos e familiares. Essa integração favorece a iluminação natural e a ventilação cruzada, tornando os espaços mais agradáveis e econômicos em energia.
A cozinha foi planejada de forma funcional, próxima à lavanderia e à garagem, o que facilita o dia a dia. A presença da varanda frontal amplia a área de convivência e proporciona um charme especial à fachada, valorizando o visual moderno do projeto.
Área íntima funcional e bem planejada
A área íntima da casa apresenta uma suíte espaçosa e duas demi-suítes com banheiro compartilhado, otimizando o uso dos espaços e oferecendo conforto ideal para famílias com filhos ou visitantes. Os dormitórios possuem excelente iluminação e ventilação natural, garantindo bem-estar e qualidade de vida.
Garagem e lavanderia integradas
A garagem para um veículo, com acesso direto à lavanderia, aumenta a praticidade da rotina, permitindo a circulação fluida entre os ambientes. Além disso, a área de serviço é discreta, mas eficiente, mantendo o estilo limpo e organizado da planta.
Ideal para terrenos compactos
Com 94,46 m² de área residencial útil, 8,52 m² de varanda e 19,14 m² destinados à garagem e lavanderia, este projeto adapta-se perfeitamente a terrenos a partir de 10 metros de largura, sendo uma excelente opção para quem busca um lar moderno, funcional e de fácil manutenção.
A arquitetura privilegia linhas retas, grandes aberturas envidraçadas e a sensação de amplitude, características marcantes dos projetos desenvolvidos pela Monte Sua Casa.







Avaliações
Não há avaliações ainda.