Descrição
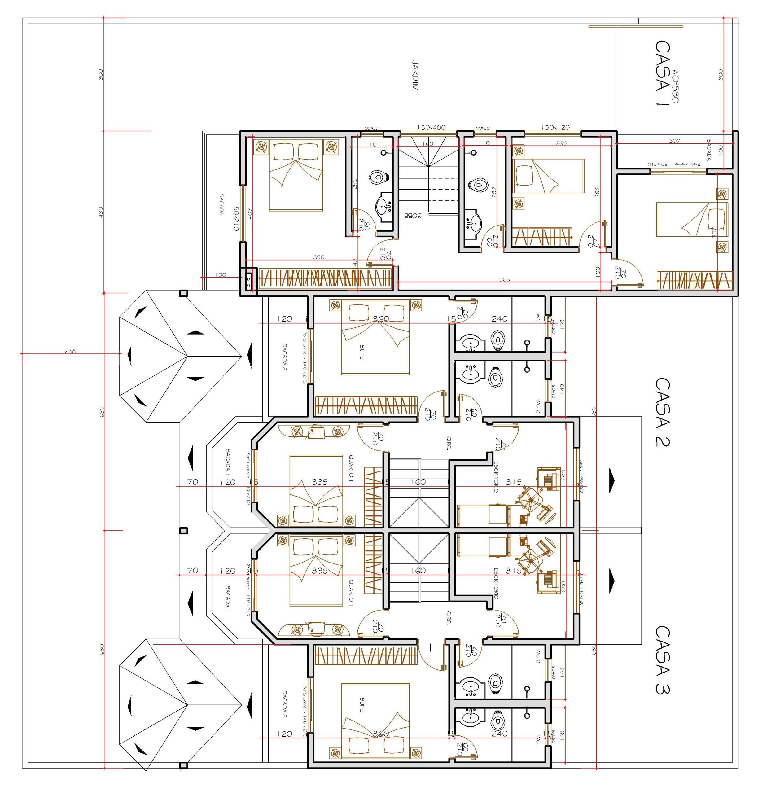
Projeto de sobrado moderno com três quartos e varanda integrada Este projeto de sobrado moderno, com 116,06m² de área construída, foi desenvolvido para oferecer conforto, funcionalidade e estética contemporânea em um terreno urbano. A fachada apresenta linhas limpas, telhado cerâmico em múltiplas águas e amplas janelas que favorecem a iluminação natural. O uso de cores neutras e elementos em vidro reforça a sofisticação do conjunto arquitetônico.
Distribuição inteligente dos ambientes No pavimento térreo, o layout prioriza a integração entre os espaços sociais. A sala de estar se conecta diretamente à sala de jantar e à cozinha, criando um ambiente fluido e acolhedor. A escada, posicionada de forma estratégica, separa a área íntima da circulação principal. Ainda no térreo, há uma garagem coberta e um lavabo funcional para visitas.
Conforto e privacidade no pavimento superior O andar superior abriga três quartos bem distribuídos, sendo um deles uma suíte com closet e acesso à varanda frontal. Os demais dormitórios compartilham um banheiro social, e todos contam com excelente ventilação cruzada. A varanda, com guarda-corpo em vidro, proporciona uma vista agradável e pode ser utilizada como espaço de leitura ou descanso.
Soluções sustentáveis e valorização do terreno O projeto contempla soluções sustentáveis como aproveitamento da luz natural, ventilação eficiente e possibilidade de instalação de painéis solares. A implantação em terreno de esquina valoriza a fachada dupla e permite melhor aproveitamento da área externa, com jardim frontal e lateral.
Ideal para famílias modernas Este sobrado é ideal para famílias que buscam um lar funcional, elegante e com excelente aproveitamento de espaço. A planta foi pensada para atender às necessidades do dia a dia, sem abrir mão do estilo e da qualidade construtiva.














Avaliações
Não há avaliações ainda.