Descrição
Este projeto de casa sobrado oferece uma solução inteligente e funcional para famílias que buscam conforto, privacidade e aproveitamento máximo do terreno. Com 113,30m² de área total distribuída entre pavimento térreo e superior, o layout foi cuidadosamente planejado para equilibrar estética, praticidade e bem-estar.
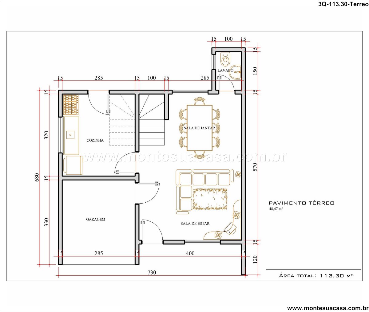
Ambientes sociais integrados no térreo O pavimento térreo conta com uma garagem coberta para um veículo, posicionada ao lado da cozinha, facilitando o descarregamento de compras. A cozinha é funcional e se conecta diretamente à sala de jantar, criando um ambiente fluido e acolhedor. A sala de estar, ampla e bem iluminada, proporciona conforto para momentos de lazer e convivência. Um lavabo discreto atende às necessidades dos visitantes, sem comprometer a privacidade dos moradores.
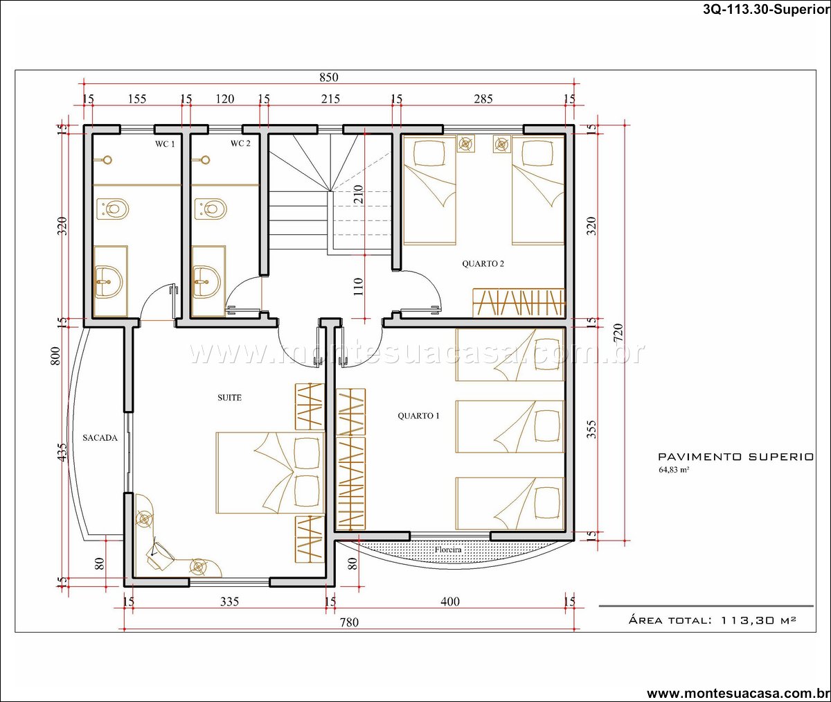
Área íntima bem distribuída no pavimento superior No andar superior, a casa apresenta três dormitórios bem dimensionados. A suíte principal possui sacada privativa e espaço para cama de casal e poltronas, oferecendo um refúgio tranquilo. Os quartos adicionais, Quarto 1 e Quarto 2, acomodam até cinco camas no total, sendo ideais para filhos, hóspedes ou até mesmo um home office. Dois banheiros completos (BWC 1 e BWC 2) atendem aos dormitórios com praticidade e conforto. A circulação entre os ambientes é facilitada por uma escada central, que organiza o fluxo interno da casa.
Design funcional e estética moderna A fachada e os ambientes internos refletem uma linguagem contemporânea, com destaque para elementos como floreiras externas e sacadas que valorizam a ventilação cruzada e a iluminação natural. O projeto é ideal para terrenos urbanos com frente a partir de 7,30 metros, otimizando o uso do espaço sem abrir mão da elegância.










Avaliações
Não há avaliações ainda.